Fnaim.fr
Menu

Exclusivité
Réf. A5474

Achat Appartement 3 pièces 59m² CHERBOURG OCTEVILLE 50100

112 600 Honoraires charge acquéreur inclus : 7,2% TTC (104448 € hors honoraires)

2 chambres Parking / Garage

Description du bien

L'agence immobilière ACT-IMMO, , vous propose :
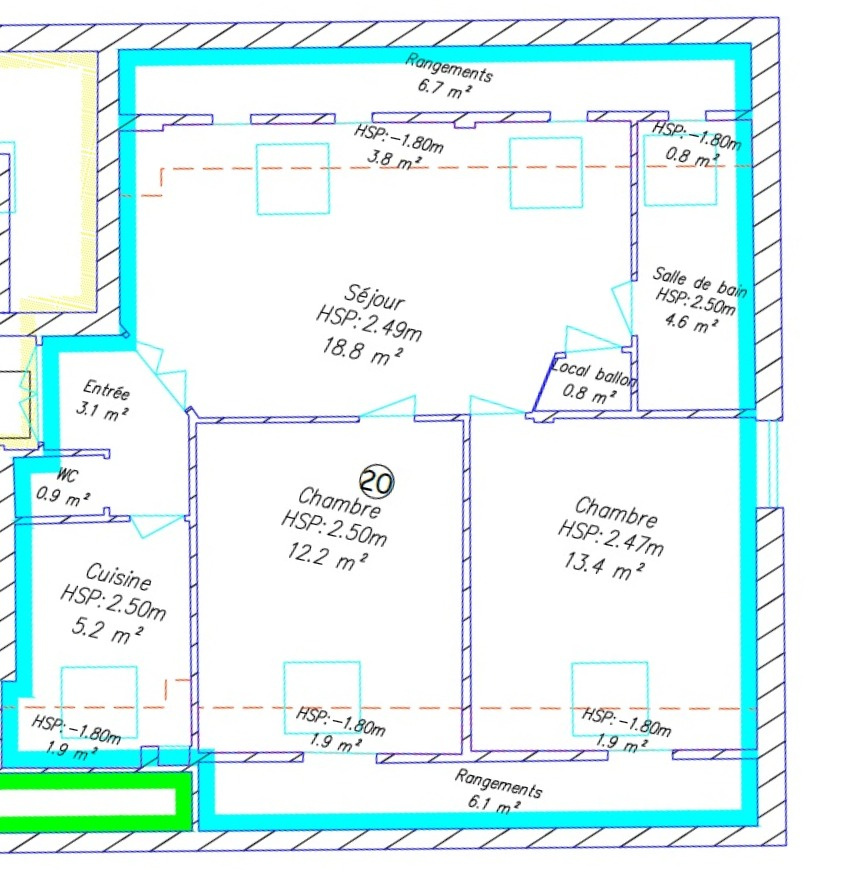
EN EXCLUSIVITE, CHERBOURG proximité centre, au 3èmer étage d'une petite copropriété sans ascenseur, appartement offrant sur environ 59 m2 (+23 m2 en sous-pente), côté jour, pièce de vie avec cuisine séparée et WC ; côté nuit, 2 chambres et SDB. Nombreux rangements, Place de stationnement privative en bas de l'immeuble. Cave de 6m2.
Actuellement loué pour un loyer de 450 euros (non réactualisé depuis12 ans)
A propos de la copropriété : Pas de procédure en cours Nombre de lots : 6 Charges prévisionnelles annuelles : 1518 EUR
Estimation des coûts annuels : entre 1 180 EUR et 1 640 EUR par an
Prix moyens des énergies indexés sur les années 2021,2022 et 2023.
Les informations sur les risques auxquels ce bien est exposé, sont disponibles sur le site : www.georisques.gouv.fr

Etat des risques et pollutions

Les informations sur les risques auxquels ce bien est exposé sont disponibles sur le site Géorisques : www.georisques.gouv.fr.

Caractéristiques du bien

Composition du bien

  • Type d'habitation : Appartement
  • Cuisine : Type de cuisine Non communique
  • Nombre de pièce(s) : 3
  • Nombre de chambre(s) : 2
  • Salles de bain : 1

Aménagement du bien

Extérieur

  • Terrasse : Non
  • Balcon : Non

Partie Commune

  • Ascenseur : Non
  • Surface habitable : 59 m²
  • Parking : Oui

Localisation du bien

CHERBOURG OCTEVILLE (50100) , MANCHE (50) - NORMANDIE

Ce bien n'est pas géolocalisé, pour connaitre sa géolocalisation, merci de contacter l'agence.

Consommation énergétique

  • D (207 kWh/m² an)
    B (8 kgCO2/m².an)
    Plus d'info
    207
    8
    8
  • DPE réalisé après le 1er juillet 2021.
  • Entre 1180 € TTC / an et 1640 € TTC / an
    01/01/2023

Nos professionnels vous accompagnent

Contactez notre agence !

12 RUE FRANCOIS LAVIEILLE 50130 CHERBOURG OCTEVILLE

Appeler l’agence Tél : 02 33 10 12 10

* Champs obligatoires

Nous vous informons de l’existence de la liste d’opposition au démarchage téléphonique « BLOCTEL » sur laquelle vous pouvez vous inscrire (https://www.bloctel.gouv.fr).

En complétant le formulaire «CONTACTEZ NOTRE AGENCE », je reconnais expressément que je consens au traitement de mes données personnelles et que je dispose du droit de retirer mon consentement à tout moment en m'adressant à support@fnaim.fr.
En savoir plus sur la gestion de vos données et droits : consulter nos mentions légales, « article 5/ Données à caractère personnel ».

En envoyant ce message, vous acceptez les conditions d'utilisation du site. Plus d'infos