Fnaim.fr
Menu

Achat Appartement 4 pièces 79m² MARSEILLE 5ème

292 639 Honoraires charge vendeur

3 chambres Balcon Ascenseur

Description du bien

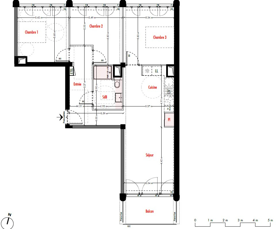
Vue sur Vert vous propose cet appartement neuf aménageable en T3 ou T4 de 79,24 m2 en vente sur plan personnalisable et évolutif, avec un balcon-terrasse de 6,4 m2, au 5e étage sur 6 d'un immeuble avec de nombreux espaces partagés (jardin de 135 m2, salle commune de 28 m2, local vélo de 31 m2 et toit-terrasse accessible de 198 m2) qui sera construit à proximité de la gare de la Blancarde.
L'aménagement intérieur est personnalisable et offre des pièces avec de grands volumes, baignés de lumière et avec des matériaux de qualité.
Entre les quartiers Blancarde et Ste Thérèse, à 2 minutes à pied du tramway [T1 & T2], à 5 minutes du métro [M1] et de la gare de la Blancarde, avec des commerces, écoles et services à proximité quand un quartier calme, loin des grands axes et à taille humaine.

Accessible en Bail Réel Solidaire (BRS : https://www.service-public.gouv.fr/particuliers/actualites/A17559) sous conditions de ressources et pour un usage de résidence principale. Grâce au dispositif BRS, vous accédez à la propriété à prix maîtrisé avec une TVA réduite à 5,5%, et des frais de notaires réduits.
Plafonds de revenus BRS 2026 en Zones A & Abis :
Foyer d'1 personne : 38 844 EUR
Foyer de 2 personnes : 58 057 EUR
Foyer de 3 personnes : 76 105 EUR
Foyer de 4 personnes : 90 863 EUR
Foyer de 5 personnes : 108 107 EUR
Foyer de 6 personnes : 121 650 EUR

Pour plus d'infos ou organiser une visite, contactez-nous par téléphone ou message.

Etat des risques et pollutions

Les informations sur les risques auxquels ce bien est exposé sont disponibles sur le site Géorisques : www.georisques.gouv.fr.

Caractéristiques du bien

Composition du bien

  • Type d'habitation : Appartement
  • Cuisine : Américaine
  • Nombre de pièce(s) : 4
  • Nombre de chambre(s) : 3

Aménagement du bien

Extérieur

  • Terrasse : Non
  • Balcon : Oui

Partie Commune

  • Ascenseur : Oui
  • Surface habitable : 79 m²

Localisation du bien

MARSEILLE 05 (13005) , BOUCHES-DU-RHONE (13) - PROVENCE-ALPES-COTE-D-AZUR

Ce bien n'est pas géolocalisé, pour connaitre sa géolocalisation, merci de contacter l'agence.

Consommation énergétique

DPE non soumis
mention indiquée sous la responsabilité de l’agence immobilière

Nos professionnels vous accompagnent

Contactez notre agence !

51 PLACE JEAN JAURES 13005 MARSEILLE 05

Appeler l’agence Tél : +33698706467

* Champs obligatoires

Nous vous informons de l’existence de la liste d’opposition au démarchage téléphonique « BLOCTEL » sur laquelle vous pouvez vous inscrire (https://www.bloctel.gouv.fr).

En complétant le formulaire «CONTACTEZ NOTRE AGENCE », je reconnais expressément que je consens au traitement de mes données personnelles et que je dispose du droit de retirer mon consentement à tout moment en m'adressant à support@fnaim.fr.
En savoir plus sur la gestion de vos données et droits : consulter nos mentions légales, « article 5/ Données à caractère personnel ».

En envoyant ce message, vous acceptez les conditions d'utilisation du site. Plus d'infos