Fnaim.fr
Menu

Exclusivité
Réf. 107

Achat Appartement 6 pièces 110m² PARIS 10ème

865 000 Honoraires charge acquéreur inclus : 5,5% TTC (817425 € hors honoraires)

4 chambres Parking / Garage

Description du bien

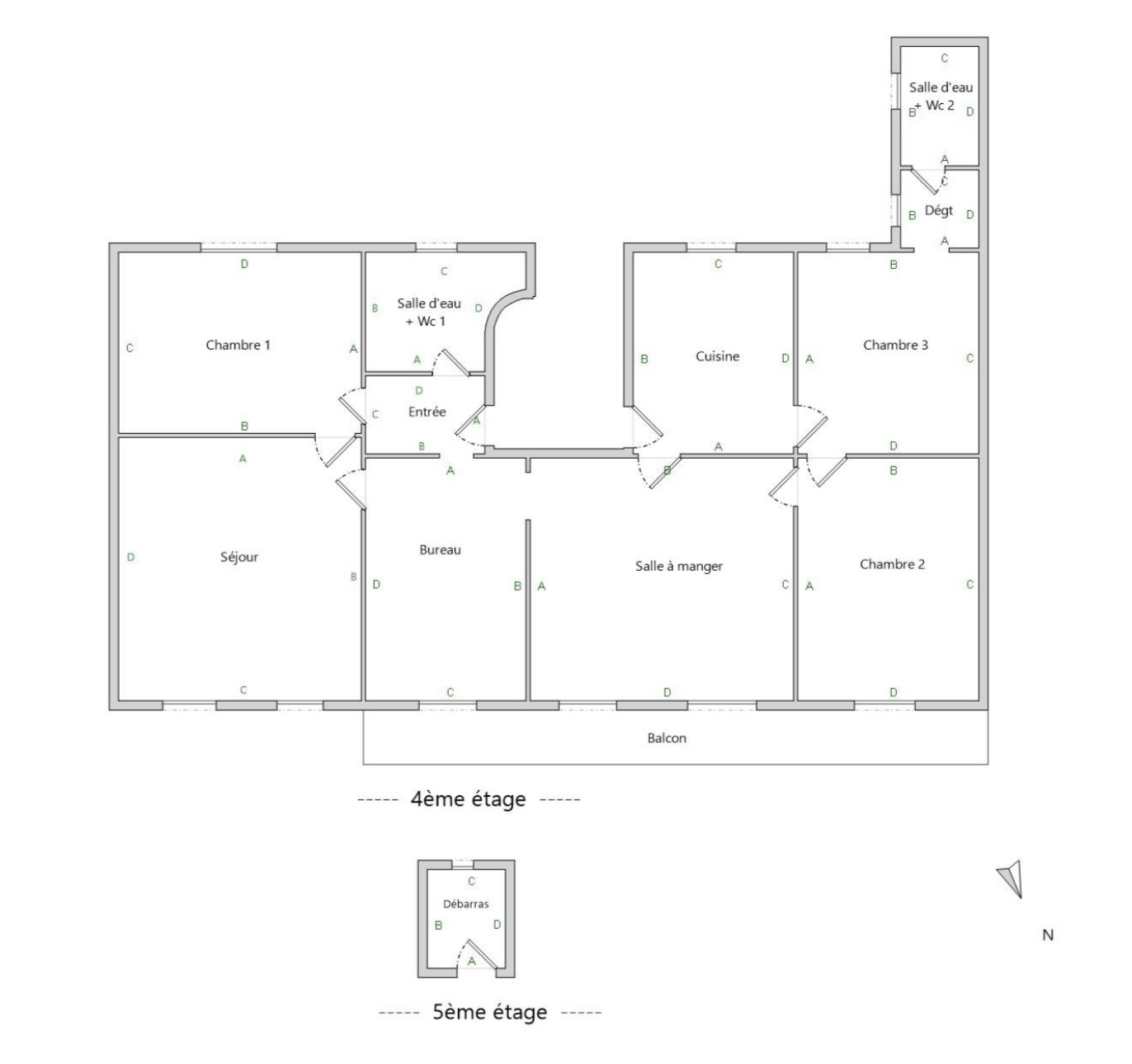
Division possible ! - Appartement 6 pièces - étage élevé - balcon - parking

Paris 10e, quartier Porte-Saint-Martin. Proche toutes commodités.
Quartier emblématique qui s’impose comme un haut lieu de la vie festive et culturelle parisienne.

Petite rue calme, immeuble ancien, sécurisé, s’élevant sur 5 étages sans ascenseur.
Appartement familial né d’un regroupement de 2 appartements T3, s’étendant seul sur le palier du 4e étage. Surface totale d’environ 110m2. Il se compose d’un salon, une salle à manger, 4 chambres, une cuisine et 2 SDE avec WC. A cela s’ajoute un balcon filant sur rue, 2 caves en sous-sol ainsi qu’une pièce petite mansardée au 5e étage.

De part son étage élevé et sa double exposition, l’appartement jouit d’une grande luminosité.
Ensemble à rafraîchir. Chauffage individuel au gaz. DPE E.
Travaux de ravalement de façade à prévoir.
Procédures en cours.
Possibilité de garer sa voiture, vélo ou moto dans la cour sécurisée de l’immeuble.

Investisseurs : Opportunité de division de l’ensemble immobilier pour s’adapter au marché.

Prix : 820 000 € net vendeur (soit 7 430 €/m2)
Mise en vente de l’ensemble : 865 000 € honoraires inclus (soit 5,5% TTC charge acquéreur)

Etat des risques et pollutions

Les informations sur les risques auxquels ce bien est exposé sont disponibles sur le site Géorisques : www.georisques.gouv.fr.

Caractéristiques du bien

Composition du bien

  • Type d'habitation : Appartement
  • Cuisine : Equipée
  • Nombre de pièce(s) : 6
  • Nombre de chambre(s) : 4

Aménagement du bien

Extérieur

  • Terrasse : Non
  • Balcon : Non

Partie Commune

  • Ascenseur : Non
  • Surface habitable : 110 m²
  • Parking : Oui

Informations sur la copropriété

  • Bien soumis au statut de la copropriété
  • Nombre de lots : 27
  • Quote part charges courantes : 101 €/an
  • Procédure en cours : Oui

Localisation du bien

PARIS 10 (75010) , PARIS (75) - ILE-DE-FRANCE

Ce bien n'est pas géolocalisé, pour connaitre sa géolocalisation, merci de contacter l'agence.

Consommation énergétique

  • E (273 kWh/m² an)
    E (55 kgCO2/m².an)
    Plus d'info
    273
    55
    55
  • DPE réalisé après le 1er juillet 2021.
  • Entre 2660 € TTC / an et 3670 € TTC / an
    01/01/2022

Nos professionnels vous accompagnent

Contactez notre agence !

6 CHE DES PETITES GARENNES 17740 STE MARIE DE RE

Appeler l’agence Tél : 06 01 39 22 26

* Champs obligatoires

Nous vous informons de l’existence de la liste d’opposition au démarchage téléphonique « BLOCTEL » sur laquelle vous pouvez vous inscrire (https://www.bloctel.gouv.fr).

En complétant le formulaire «CONTACTEZ NOTRE AGENCE », je reconnais expressément que je consens au traitement de mes données personnelles et que je dispose du droit de retirer mon consentement à tout moment en m'adressant à support@fnaim.fr.
En savoir plus sur la gestion de vos données et droits : consulter nos mentions légales, « article 5/ Données à caractère personnel ».

En envoyant ce message, vous acceptez les conditions d'utilisation du site. Plus d'infos