Fnaim.fr
Menu

Exclusivité
Réf. 602

Achat Appartement 4 pièces 92m²

280 900 Honoraires charge vendeur

3 chambres Ascenseur Parking / Garage

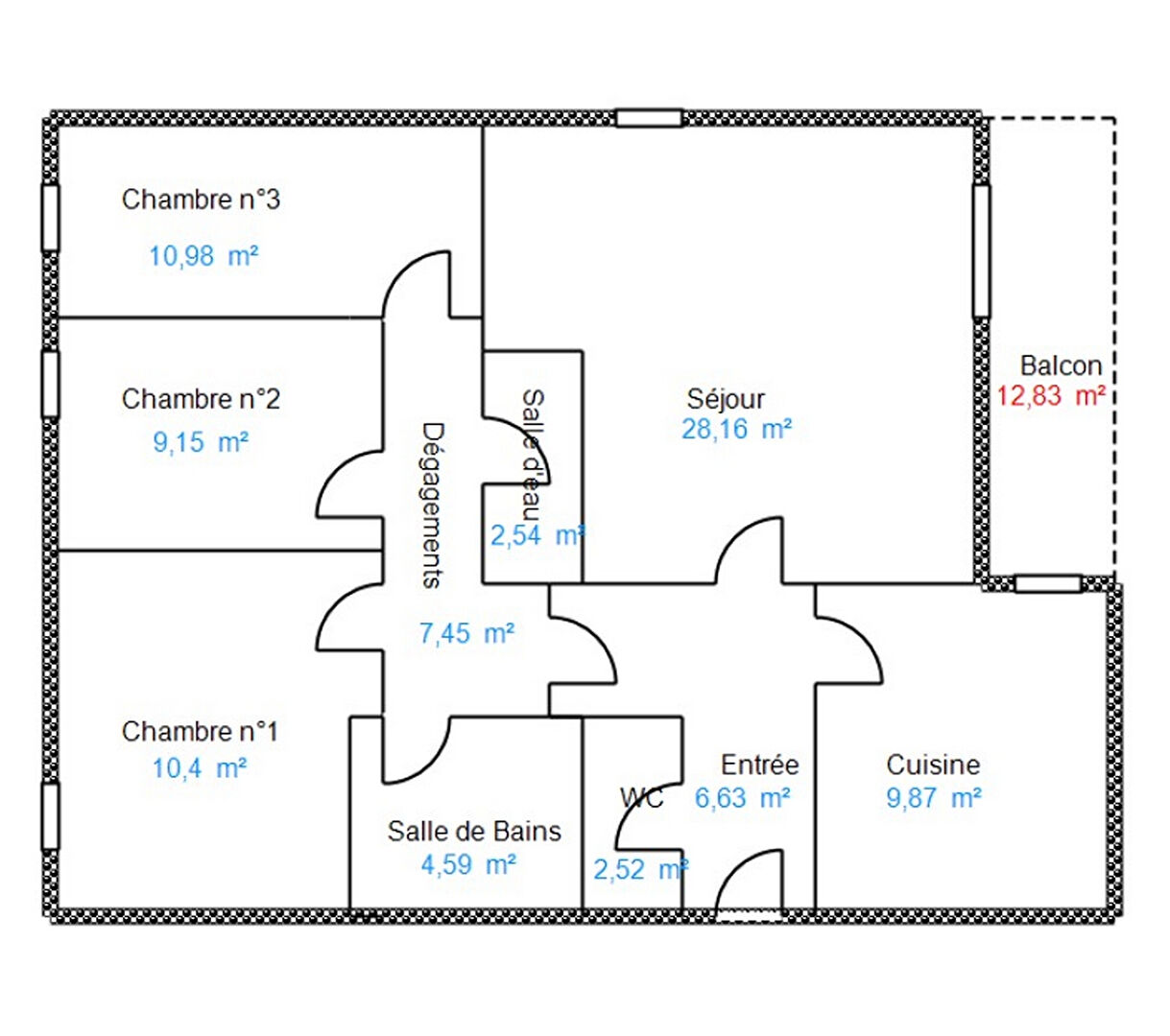
Description du bien


A quelques pas de nombreux commerces, écoles et des transports en commun ainsi que du jardin de la Grenouillère.
Bel appartement en dernier étage avec ASCENSEUR d'une résidence récente.

Il se compose d'une entrée, grande pièce à vivre exposée SUD avec TERRASSE, cuisine aménagée et équipée, trois chambres, salle de bains, salle d'eau.

2 PARKINGS en sous-sol, côté à côte, larges et faciles d'accès.
2 locaux à vélos.

Environnement calme, vue dégagée, beaux volumes... à découvrir !

Copropriété de 54 lots.
Charges annuelles : 2867 euros (comprenant eau chaude, chauffage, ascenseur, entretien...).
280.900 euros

Les informations sur les risques auxquels ce bien est exposé sont disponibles sur le site Géorisques : www.georisques.gouv.fr

Etat des risques et pollutions

Les informations sur les risques auxquels ce bien est exposé sont disponibles sur le site Géorisques : www.georisques.gouv.fr.

Caractéristiques du bien

Composition du bien

  • Type d'habitation : Appartement
  • Cuisine : Type de cuisine Non communique
  • Nombre de pièce(s) : 4
  • Nombre de chambre(s) : 3
  • Salles de bain : 1

Aménagement du bien

Extérieur

  • Terrasse : Non
  • Balcon : Non

Partie Commune

  • Ascenseur : Oui
  • Surface habitable : 92 m²
  • Parking : Oui

Localisation du bien

Ce bien n'est pas géolocalisé, pour connaitre sa géolocalisation, merci de contacter l'agence.

Consommation énergétique

  • C (124 kWh/m² an)
    C (25 kgCO2/m².an)
    Plus d'info
    124
    25
    25
  • DPE réalisé après le 1er juillet 2021.
  • Entre 977 € TTC / an et 1321 € TTC / an
    Non communiqué

Nos professionnels vous accompagnent

Contactez notre agence !

73, RUE MARCEAU 37000 TOURS

Appeler l’agence Tél : 0974087434

* Champs obligatoires

Nous vous informons de l’existence de la liste d’opposition au démarchage téléphonique « BLOCTEL » sur laquelle vous pouvez vous inscrire (https://www.bloctel.gouv.fr).

En complétant le formulaire «CONTACTEZ NOTRE AGENCE », je reconnais expressément que je consens au traitement de mes données personnelles et que je dispose du droit de retirer mon consentement à tout moment en m'adressant à support@fnaim.fr.
En savoir plus sur la gestion de vos données et droits : consulter nos mentions légales, « article 5/ Données à caractère personnel ».

En envoyant ce message, vous acceptez les conditions d'utilisation du site. Plus d'infos