Fnaim.fr
Menu

Achat Appartement 4 pièces 105m² GIF SUR YVETTE 91190

339 000 Honoraires charge acquéreur inclus

3 chambres Parking / Garage

Description du bien

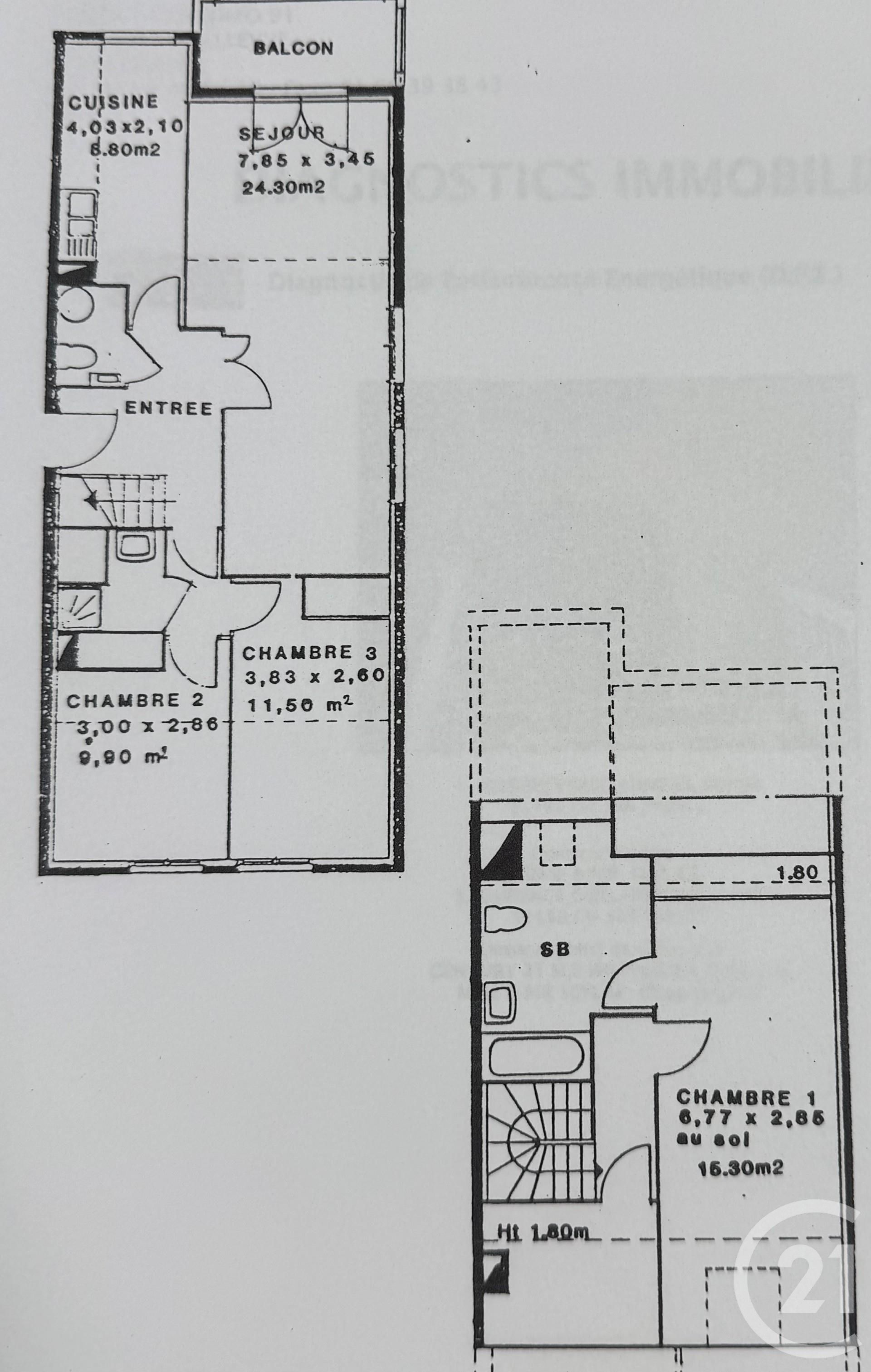
Centre ville de CHEVRY à Gif-sur-Yvette, TOP QUARTIER, dans une résidence recherchée au calme, au 2ème et 3ème dernier étage, un duplex de 4 pièces comprenant : entrée, séjour de 24,37 m² avec balcon, cuisine US possible afin de profiter d'un espace de 34 m², 2 chambres, salle de douche. A l'étage chambre spacieuse de 14 m², salle de bains, dressing. Cave et 2 parkings en sous-sol. Chauffage individuel électrique. Prix : 339000.0 euros, Net vendeur : 323000.0 euros , Honoraires charge acquéreur : 4.96 %TTC. Copropriété :
Nb de lots : 328
Budget prévisionnel (dépenses courantes) : 2424.0 euros/an Montant estimé des dépenses annuelles d'énergie pour un usage standard entre 1880.0 ¤ et 2580.0 ¤ indexées aux années 2021, 2022, 2023 (abonnements compris).

Etat des risques et pollutions

Les informations sur les risques auxquels ce bien est exposé sont disponibles sur le site Géorisques : www.georisques.gouv.fr.

Caractéristiques du bien

Composition du bien

  • Type d'habitation : Appartement
  • Cuisine : Type de cuisine Non communique
  • Nombre de pièce(s) : 4
  • Nombre de chambre(s) : 3
  • Salles de bain : 1

Aménagement du bien

Extérieur

  • Terrasse : Non
  • Balcon : Non

Partie Commune

  • Ascenseur : Non
  • Surface habitable : 105 m²
  • Parking : Oui

Localisation du bien

GIF SUR YVETTE (91190) , ESSONNE (91) - ILE-DE-FRANCE

Ce bien n'est pas géolocalisé, pour connaitre sa géolocalisation, merci de contacter l'agence.

Consommation énergétique

  • D (220 kWh/m² an)
    B (8 kgCO2/m².an)
    Plus d'info
    220
    8
    8
  • DPE réalisé après le 1er juillet 2021.
  • Entre 1880 € TTC / an et 2580 € TTC / an
    Non communiqué

Nos professionnels vous accompagnent

Contactez notre agence !

SLP

20 Bd Eugène Deruelle Immeuble Le Britannia Bât B 69003 LYON 03

Appeler l’agence Tél : 0164466518

* Champs obligatoires

Nous vous informons de l’existence de la liste d’opposition au démarchage téléphonique « BLOCTEL » sur laquelle vous pouvez vous inscrire (https://www.bloctel.gouv.fr).

En complétant le formulaire «CONTACTEZ NOTRE AGENCE », je reconnais expressément que je consens au traitement de mes données personnelles et que je dispose du droit de retirer mon consentement à tout moment en m'adressant à support@fnaim.fr.
En savoir plus sur la gestion de vos données et droits : consulter nos mentions légales, « article 5/ Données à caractère personnel ».

En envoyant ce message, vous acceptez les conditions d'utilisation du site. Plus d'infos