Fnaim.fr
Menu

Exclusivité
Réf. 845

Achat Appartement 3 pièces 77m²

92 000 Honoraires charge vendeur

2 chambres

Description du bien


Situé au rez-de-chaussée d'un immeuble cossu du XVIIIe siècle, au coeur de la vieille ville de Wissembourg, dans un environnement calme et à proximité immédiate du centre-ville, cet appartement 3 pièces de 77,8 m² saura séduire les amateurs de biens de caractère.

Il s'adresse tout particulièrement aux acquéreurs en quête de rentabilité, notamment à travers un projet de rénovation valorisant, mais conviendra également parfaitement à une personne recherchant un logement de plain-pied dans le centre historique de Wissembourg.

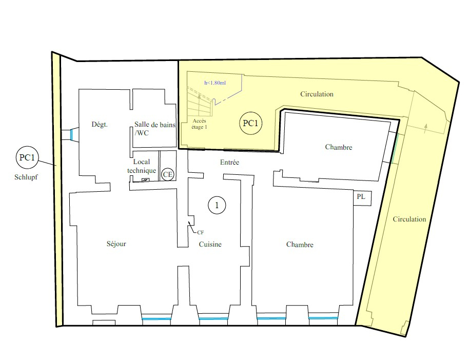
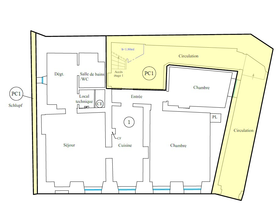
L'appartement se compose d'une entrée en couloir desservant, d'un côté, une première chambre et, de l'autre, un espace cuisine. Le bien offre également deux espaces de vie distincts, comprenant un salon ainsi qu'une seconde pièce pouvant faire office de chambre, de bureau ou d'espace de vie supplémentaire. Cette dernière est ouverte sur un espace cellier ainsi que sur la salle de bain, apportant un potentiel d'aménagement intéressant.

Le chauffage est assuré par des convecteurs électriques.

Ce bien vous est proposé en exclusivité.

Etat des risques et pollutions

Les informations sur les risques auxquels ce bien est exposé sont disponibles sur le site Géorisques : www.georisques.gouv.fr.

Caractéristiques du bien

Composition du bien

  • Type d'habitation : Appartement
  • Cuisine : Type de cuisine Non communique
  • Nombre de pièce(s) : 3
  • Nombre de chambre(s) : 2

Aménagement du bien

Extérieur

  • Terrasse : Non
  • Balcon : Non

Partie Commune

  • Ascenseur : Non
  • Surface habitable : 77 m²

Localisation du bien

Ce bien n'est pas géolocalisé, pour connaitre sa géolocalisation, merci de contacter l'agence.

Consommation énergétique

  • G (464 kWh/m² an)
    C (18 kgCO2/m².an)
    Plus d'info
    464
    18
    18
  • DPE réalisé après le 1er juillet 2021.
  • Entre 2590 € TTC / an et 3520 € TTC / an
    Non communiqué
  • Logement à consommation énergétique excessive : classe G

Nos professionnels vous accompagnent

Contactez notre agence !

12, Rue de la 1ère Armée 67630 LAUTERBOURG

Appeler l’agence Tél : 03 88 94 35 37

* Champs obligatoires

Nous vous informons de l’existence de la liste d’opposition au démarchage téléphonique « BLOCTEL » sur laquelle vous pouvez vous inscrire (https://www.bloctel.gouv.fr).

En complétant le formulaire «CONTACTEZ NOTRE AGENCE », je reconnais expressément que je consens au traitement de mes données personnelles et que je dispose du droit de retirer mon consentement à tout moment en m'adressant à support@fnaim.fr.
En savoir plus sur la gestion de vos données et droits : consulter nos mentions légales, « article 5/ Données à caractère personnel ».

En envoyant ce message, vous acceptez les conditions d'utilisation du site. Plus d'infos