Fnaim.fr
Menu

Exclusivité
Réf. 0601813158

Achat Maison 6 pièces 190m² AURON 06660

1 735 000 Honoraires charge vendeur

5 chambres Jardin Balcon Parking / Garage

Description du bien

AURON - Chalet d'exception neuf 190 m² | Luxe, volumes & art de vivre alpin
Programme rare - Promoteur expérimenté

Plaquette de présentation
https://online.fliphtml5.com/mlonp/a-vetta/
www.confianceimmobiliere.com

Les informations sur les risques auxquels ce bien est exposé sont disponibles sur le site Géorisques http://www.georisques.gouv.fr
Toute l'équipe Confiance Immobilière vous remercie.
Bien soumis au régime de la copropriété (2 lots). Surface Carrez 163m². Honoraires d'agence à la charge du vendeur.

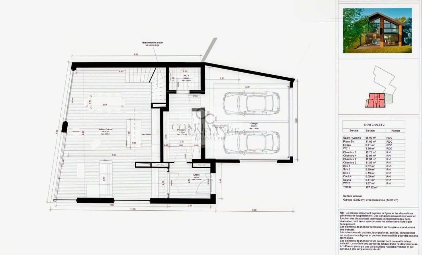
À quelques pas du téléski du Riou, au c?ur de l'un des secteurs les plus prisés d'Auron, découvrez ce chalet neuf aux prestations haut de gamme, subtilement jumelé par le garage. Implanté sur un terrain de 1 081 m², exposé plein sud, il offre lumière, confort et intimité dans un cadre naturel privilégié.

Des volumes remarquables et un confort absolu

Rez-de-chaussée

Entrée élégante avec ski-room
WC indépendant
Magnifique pièce de vie de 60 m² : salon avec cheminée, cuisine ouverte, larges ouvertures
Accès direct à une grande terrasse pour profiter pleinement de l'extérieur et du panorama ??

À l'étage

4 à 5 chambres selon vos besoins
Deux salles de bain, WC séparés
Balcon offrant une vue dégagée sur l'environnement montagnard ??

Prestations premium

Double garage d'environ 30 m² avec mezzanine
Sauna privatif
Stationnement extérieur
Personnalisation complète des espaces et finitions selon vos envies

Un bien rare, idéal en résidence principale, secondaire ou investissement patrimonial d'exception, au c?ur d'une station emblématique des Alpes du Sud.

Prix : 1 735 000 €

Plaquette de présentation
https://online.fliphtml5.com/mlonp/a-vetta/
www.confianceimmobiliere.com

Etat des risques et pollutions

Les informations sur les risques auxquels ce bien est exposé sont disponibles sur le site Géorisques : www.georisques.gouv.fr.

Caractéristiques du bien

Composition du bien

  • Type d'habitation : Maison
  • Nombre de chambres : 5
  • Nombre de salles de bain : 2
  • Cuisine : Nue

Aménagement du bien

  • Cave : Non
  • Garage / Parking : Oui
    • Surface habitable : 190 m²
    • Parking : Oui

    Localisation du bien

    AURON (06660) , ALPES-MARITIMES (06) - PROVENCE-ALPES-COTE-D-AZUR

    Consommation énergétique

    DPE non soumis
    mention indiquée sous la responsabilité de l’agence immobilière

    Nos professionnels vous accompagnent

    Contactez notre agence !

    22 BIS BD DUBOUCHAGE 06000 NICE

    Appeler l’agence Tél : 0493882032

    * Champs obligatoires

    Nous vous informons de l’existence de la liste d’opposition au démarchage téléphonique « BLOCTEL » sur laquelle vous pouvez vous inscrire (https://www.bloctel.gouv.fr).

    En complétant le formulaire «CONTACTEZ NOTRE AGENCE », je reconnais expressément que je consens au traitement de mes données personnelles et que je dispose du droit de retirer mon consentement à tout moment en m'adressant à support@fnaim.fr.
    En savoir plus sur la gestion de vos données et droits : consulter nos mentions légales, « article 5/ Données à caractère personnel ».

    En envoyant ce message, vous acceptez les conditions d'utilisation du site. Plus d'infos