Fnaim.fr
Menu

Réf. 441641LELO

Achat Maison 4 pièces 99m² MONT PRES CHAMBORD 41250

117 000 Honoraires charge acquéreur inclus : 6.4% TTC (109559 € hors honoraires)

3 chambres Jardin

Description du bien

A vendre - Lot hors d'eau / hors d'air à aménager - Centre de Mont-près-Chambord

Idéalement situé en plein centre de Mont-près-Chambord, ce lot vendu hors d'eau / hors d'air offre une belle opportunité de créer un logement neuf à votre image.
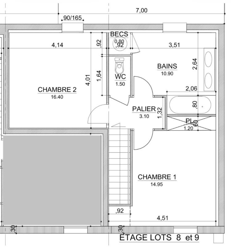
Le projet prévoit une maison d'environ 75 m² habitables pouvant être aménagée selon deux configurations :
Un espace de vie plus spacieux,
ou
Une chambre au rez-de-chaussée avec salle d'eau, permettant une accessibilité pour personne à mobilité réduite.
A l'étage, le bien pourra accueillir deux chambres, ainsi qu'une salle de bain et un WC séparé.
Le budget estimatif restant pour finaliser l'aménagement est d'environ 60 000 euros, permettant d'obtenir à terme une maison entièrement rénovée et moderne, avec un DPE projeté entre A et B selon le système de chauffage choisi.

Le stationnement est facile aux abords des lots et l'environnement est particulièrement agréable : commerces, écoles et services accessibles dans le village, tout en restant à quelques minutes de Blois.
Un projet idéal pour :
-Primo-accédants
- Personnes souhaitant un logement évolutif ou accessible
- Famille monoparentale
- Investisseurs cherchant un bien personnalisable
Une belle opportunité de créer un logement neuf, performant et sur mesure, dans un secteur recherché.

Léa LOYAU
0632167112
l.loyau@proprietes-privees.com

************************

Prix du bien : 117 000 euros
Honoraires 6,36 % à la charge de l'acquéreur 7 000 euros
soit 110 000 euros Hors honoraires

*******************************
Selon l'article L.561.5 du Code Monétaire et Financier, pour l'organisation de la visite, la présentation d'une pièce d'identité vous sera demandée.

Cette présente annonce a été rédigée sous la responsabilité éditoriale de Léa LOYAU agissant sous le statut d'agent commercial immatriculé au RSAC BLOIS 818291312 auprès de SAS PROPRIETES PRIVEES, au capital de 44 920 euros, ZAC LE CHÊNE FERRÉ - 44 ALLÉE DES CINQ CONTINENTS 44120 VERTOU; SIRET 487 624 777 00040, RCS Nantes. Carte Professionnelle Transactions sur immeubles et fonds de commerce (T) et Gestion immobilière (G) n°CPI 4401 2016 000 010 388 délivrée par la CCI Nantes - Saint Nazaire. Compte séquestre n°30932508467 BPA SAINT-SEBASTIEN-SUR-LOIRE (44230). Garantie GALIAN-SMABTP - 89 rue de la Boétie, 75008 Paris - n°28137 J pour 2 000 000 euros pour T et 120 000 euros pour G. Assurance responsabilité civile professionnelle par GALIAN-SMABTP n° de police 28137.J

Mandat réf :
441641_La professionnelle garantit et sécurise votre projet immobilier (6.36 % honoraires TTC à la charge de l'acquéreur.)

Léa LOYAU (EI) Agent Commercial - Numéro RSAC : BLOIS 818291312 - .

Etat des risques et pollutions

Les informations sur les risques auxquels ce bien est exposé sont disponibles sur le site Géorisques : www.georisques.gouv.fr.

Caractéristiques du bien

Composition du bien

  • Type d'habitation : Maison
  • Nombre de chambres : 3
  • Nombre de salles de bain : 1
  • Cuisine : Simple

Aménagement du bien

  • Cave : Non
  • Garage / Parking : Non
    • Surface habitable : 99 m²

    Localisation du bien

    MONT PRES CHAMBORD (41250) , LOIR-ET-CHER (41) - CENTRE-VAL-DE-LOIRE

    Ce bien n'est pas géolocalisé, pour connaitre sa géolocalisation, merci de contacter l'agence.

    Consommation énergétique

    DPE non soumis
    mention indiquée sous la responsabilité de l’agence immobilière

    Nos professionnels vous accompagnent

    Contactez notre agence !

    44 Allée des Cinq Continents. ZAC Le Chêne Ferré 44120 VERTOU

    Appeler l’agence Tél : 06 32 16 71 12

    * Champs obligatoires

    Nous vous informons de l’existence de la liste d’opposition au démarchage téléphonique « BLOCTEL » sur laquelle vous pouvez vous inscrire (https://www.bloctel.gouv.fr).

    En complétant le formulaire «CONTACTEZ NOTRE AGENCE », je reconnais expressément que je consens au traitement de mes données personnelles et que je dispose du droit de retirer mon consentement à tout moment en m'adressant à support@fnaim.fr.
    En savoir plus sur la gestion de vos données et droits : consulter nos mentions légales, « article 5/ Données à caractère personnel ».

    En envoyant ce message, vous acceptez les conditions d'utilisation du site. Plus d'infos