Fnaim.fr
Menu

Exclusivité
Réf. 105

Achat Appartement 4 pièces 85m²

696 000 Honoraires charge acquéreur inclus : 4,7% TTC (663288 € hors honoraires)

2 chambres Balcon

Description du bien

SPÉCIAL INVESTISSEURS - VENTE OCCUPÉE AVEC DÉCOTE DE 33,5%

Dans le quartier très recherché de Passy (Paris 16e Nord), élégant et familial, apprécié pour sa qualité de vie : établissements scolaires d’excellence, rues commerçantes animées et proximité immédiate de toutes les commodités (métro 9 La Muette).
Au sein d’un magnifique immeuble ancien, sur rue calme et jardins, appartement familial de 85 m² bénéficiant d’une belle luminosité et de vues dégagées.
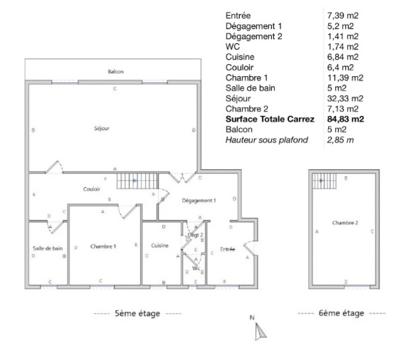
Il se compose d’un double séjour ouvrant sur un balcon filant, deux chambres, dont une en duplex, une entrée/bureau, cuisine, SDB, WC, et cave.
Le charme de l’ancien est préservé. Chauffage individuel au gaz. 5e étage avec ascenseur. DPE : E
Travaux de rafraîchissement à prévoir.

Le bien est vendu occupé en viager par une dame de 82 ans, qui conservera l’usufruit sa vie durant. Elle s’acquittera de l’ensemble des charges et taxes pendant la durée de son occupation.
La valeur libre du bien est estimée à 977 500 €.
L’occupation viagère permet de bénéficier d’une décote de 33,5 %, soit 327 500 € de réduction !
Prix d’acquisition : 696 000 € HAI (dont honoraires acquéreurs 4,7 % ttc).

Etat des risques et pollutions

Les informations sur les risques auxquels ce bien est exposé sont disponibles sur le site Géorisques : www.georisques.gouv.fr.

Caractéristiques du bien

Composition du bien

  • Type d'habitation : Appartement
  • Cuisine : Aménagée
  • Nombre de pièce(s) : 4
  • Nombre de chambre(s) : 2
  • Salles de bain : 1

Aménagement du bien

Extérieur

  • Terrasse : Non
  • Balcon : Oui

Partie Commune

  • Ascenseur : Non
  • Surface habitable : 85 m²

Informations sur la copropriété

  • Bien soumis au statut de la copropriété
  • Nombre de lots : 27
  • Procédure en cours : Non

Localisation du bien

Consommation énergétique

  • E (302 kWh/m² an)
    E (66 kgCO2/m².an)
    Plus d'info
    302
    66
    66
  • DPE réalisé après le 1er juillet 2021.
  • Entre 2270 € TTC / an et 3110 € TTC / an
    01/01/2021

Nos professionnels vous accompagnent

Contactez notre agence !

6 CHE DES PETITES GARENNES 17740 STE MARIE DE RE

Appeler l’agence Tél : 06 01 39 22 26

* Champs obligatoires

Nous vous informons de l’existence de la liste d’opposition au démarchage téléphonique « BLOCTEL » sur laquelle vous pouvez vous inscrire (https://www.bloctel.gouv.fr).

En complétant le formulaire «CONTACTEZ NOTRE AGENCE », je reconnais expressément que je consens au traitement de mes données personnelles et que je dispose du droit de retirer mon consentement à tout moment en m'adressant à support@fnaim.fr.
En savoir plus sur la gestion de vos données et droits : consulter nos mentions légales, « article 5/ Données à caractère personnel ».

En envoyant ce message, vous acceptez les conditions d'utilisation du site. Plus d'infos