Fnaim.fr
Menu

Achat Maison 5 pièces 134m² ABBEVILLE 80100

220 500 Honoraires charge vendeur

4 chambres Jardin Parking / Garage

Description du bien

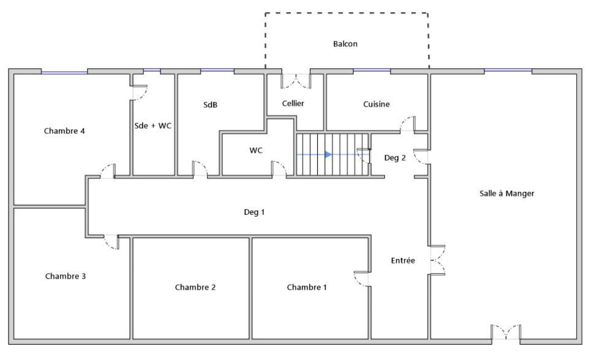
Dans un très agréable environnement tout en étant proche du centre ville, cette maison de 134m2 sur un seul niveau, et possédant un sous sol complet surélevé et aménageable, vous offre 4 chambres, grand séjour traversant, 1 salle de bains et une salle d'eau. D'un bâti très sain l'intérieur nécessitera quant à lui un rajeunissement d'où son prix attractif. Garage pour 2 voitures + 1 parking. Terrain de 1.000m2. Contactez Thomas CADIX: O6 76 6O 17 O5

Etat des risques et pollutions

Les informations sur les risques auxquels ce bien est exposé sont disponibles sur le site Géorisques : www.georisques.gouv.fr.

Caractéristiques du bien

Composition du bien

  • Type d'habitation : Maison
  • Nombre de chambres : 4
  • Nombre de salles de bain : 1
  • Cuisine : Equipée

Aménagement du bien

  • Cave : Non
  • Garage / Parking : Oui
    • Surface habitable : 134 m²
    • Parking : Oui

    Localisation du bien

    ABBEVILLE (80100) , SOMME (80) - HAUTS-DE-FRANCE

    Ce bien n'est pas géolocalisé, pour connaitre sa géolocalisation, merci de contacter l'agence.

    Consommation énergétique

    • G (481 kWh/m² an)
      C (19 kgCO2/m².an)
      Plus d'info
      481
      19
      19
    • DPE réalisé après le 1er juillet 2021.
    • Entre 5820 € TTC / an et 7900 € TTC / an
      01/01/2023
    • Logement à consommation énergétique excessive : classe G

    Nos professionnels vous accompagnent

    Contactez notre agence !

    43 GRANDE RUE 80460 AULT

    Appeler l’agence Tél : 0676601705

    * Champs obligatoires

    Nous vous informons de l’existence de la liste d’opposition au démarchage téléphonique « BLOCTEL » sur laquelle vous pouvez vous inscrire (https://www.bloctel.gouv.fr).

    En complétant le formulaire «CONTACTEZ NOTRE AGENCE », je reconnais expressément que je consens au traitement de mes données personnelles et que je dispose du droit de retirer mon consentement à tout moment en m'adressant à support@fnaim.fr.
    En savoir plus sur la gestion de vos données et droits : consulter nos mentions légales, « article 5/ Données à caractère personnel ».

    En envoyant ce message, vous acceptez les conditions d'utilisation du site. Plus d'infos