Fnaim.fr
Menu

Achat Appartement 3 pièces 67m² ANGERS 49000

255 000 Honoraires charge acquéreur inclus : 5,4% TTC (241307 € hors honoraires)

2 chambres Balcon Ascenseur Parking / Garage

Description du bien

Envie de calme, de lumière et de vie en extérieur ? Ce logement récent de 2013 profite d'une belle terrasse de 12m2 exposée Sud-Ouest avec vue dégagée.
De construction contemporaine, la résidence sécurisée propose un ascenseur, et des parkings privatifs en sous-sol.
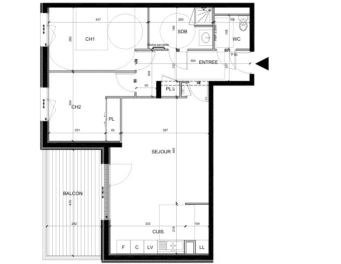
Ce logement dispose d'une belle et vaste pièce de vie ouverte sur la terrasse extérieure. Une cuisine aménagée complète l'aménagement du séjour.
L'espace nuit est composé de 2 belles chambres avec espace placard, d'une grande salle d'eau et de WC séparés, le tout adapté aux PMR.
Vous disposerez de 2 parkings privés en sous-sol de la résidence.
Situé au pied de la station de tramway, des arrêts de bus, et à proximité immédiate des commerces de quartier, du marché hebdomadaire et des grandes surfaces.
Les facultés sont situées dans le périmètre de la résidence d'où une possibilité de location étudiante.
Visite possible avec Thomas Porret, agent commercial RCS808006472, au 06.76.81.74.97
82 lots d'habitation; 199EUR charges mensuelles avec eau froide, eau chaude, chauffage et ascenseur.
DPE C - estimation des coûts annuels d'énergie 388EUR à 526EUR (indexs 2021)
Votre projet est sous une bonne ETOILE ! -
Les informations sur les risques auxquels ce bien est exposé sont disponibles sur le site Géorisques.

ACHAT - VENTE - GESTION - LOCATION - ESTIMATION - CONSEIL
Types de biens : Maisons, Appartements, Immeubles, Monopropriété et Copropriété, Ferme, Parking, Garage, Terrains...
Secteurs :
Angers : Centre, Lafayette, Eblé, Madeleine, Saint Léonard, Roseraie, Deux croix, Banchais, Montplaisir, Eventard, Saint Serge, Ney, Chalouère, Hauts de Saint Aubin, Doutre, Camus, Belle Beille, Saint Jacques, Nazareth, Lac de Maine.
Première Couronne : Beaucouzé, Bouchemaine, Saint Léger de Linières, Avrillé, Montreuil Juigné, Ecouflant, Saint sylvain d'Anjou, SaInt Barthélémy d'Anjou, Trélazé, Les Ponts de Cé,
Mais aussi : Briollay, Feneu, Soulaire-et-Bourg, Sceaux d'Anjou, Grez-Neuville, Le lion d'Angers, Champigé, Etriché, Tiercé, Seiches sur le Loir, Huillé, Lézigné, Baracé, Durtal, Les rairies, Montigné-les-Rairies, Jarzé, Bauné, Corné, Mazé-Milon, Beaufort-en-Anjou, Le Plessis-Grammoire, Loire Authion, Mûrs erigné, Sainte-Melaine-sur-Aubance, Brissac-Loire-Aubance, Les Garennes sur Loire, Saint-Martin-du-Fouilloux, Saint-Clément-de-la-Place, Saint-Lambert-la-Potherie.
Cette annonce vous est proposée par M. THOMAS PORRET - EI - NoRSAC: RCS808006472, Enregistré à Chambre de commerce et de l'industrie de ANGERS

Etat des risques et pollutions

Les informations sur les risques auxquels ce bien est exposé sont disponibles sur le site Géorisques : www.georisques.gouv.fr.

Caractéristiques du bien

Composition du bien

  • Type d'habitation : Appartement
  • Cuisine : Américaine
  • Nombre de pièce(s) : 3
  • Nombre de chambre(s) : 2

Aménagement du bien

Extérieur

  • Terrasse : Non
  • Balcon : Oui

Partie Commune

  • Ascenseur : Oui
  • Surface habitable : 67 m²
  • Parking : Oui

Informations sur la copropriété

  • Bien soumis au statut de la copropriété
  • Nombre de lots : 82
  • Quote part charges courantes : 1817 €/an
  • Procédure en cours : Non

Localisation du bien

ANGERS (49000) , MAINE-ET-LOIRE (49) - PAYS-DE-LA-LOIRE

Ce bien n'est pas géolocalisé, pour connaitre sa géolocalisation, merci de contacter l'agence.

Consommation énergétique

  • B (89 kWh/m² an)
    C (17 kgCO2/m².an)
    Plus d'info
    89
    17
    17
  • DPE réalisé après le 1er juillet 2021.
  • Entre 388 € TTC / an et 526 € TTC / an
    01/01/2023

Nos professionnels vous accompagnent

Contactez notre agence !

41 rue des Lices 49100 ANGERS

Appeler l’agence Tél : 0241399039

* Champs obligatoires

Nous vous informons de l’existence de la liste d’opposition au démarchage téléphonique « BLOCTEL » sur laquelle vous pouvez vous inscrire (https://www.bloctel.gouv.fr).

En complétant le formulaire «CONTACTEZ NOTRE AGENCE », je reconnais expressément que je consens au traitement de mes données personnelles et que je dispose du droit de retirer mon consentement à tout moment en m'adressant à support@fnaim.fr.
En savoir plus sur la gestion de vos données et droits : consulter nos mentions légales, « article 5/ Données à caractère personnel ».

En envoyant ce message, vous acceptez les conditions d'utilisation du site. Plus d'infos