Fnaim.fr
Menu

Réf. NFV2590-LBC44

Achat Local commercial 143m² ANGERS 49100

303 160 Honoraires charge acquéreur inclus : 6% TTC (284970 € hors honoraires)

Description du bien

Au Nord de la commune d'ANGERS

Quartier des HAUTS SAINT AUBIN sur une artère très fréquentée en angle avec une belle visibilité .

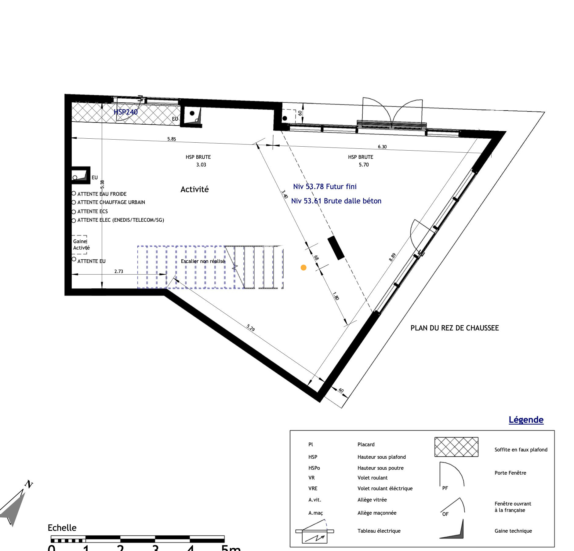
Local professionnel d'angle d'une surface utile de 143 m2 environ sur deux niveaux :
Rez-de-chaussée : 61 m2 environ
R+1 : 82 m2 environ

Destination de la cellule : Activités de services et/ou de bureaux

Accès en voiture par l'autoroute A11, parking relais ELISABETH BOSELLI à 3 minutes à pieds.

En transport le tramway Ligne A Station ' TERRA BOTANICA' et le bus Ligne 34 sont à proximité piétonne.

Environnement : commerces, services et habitations.

De nombreuses structures sont à deux pas du local :
Le PARC TERRA BOTANICA, la PISCINE AQUA VITA, MAISON DE L'ARCHITECTURE DES TERRITOIRES ET DU PAYSAGE, LE CENTRE TECHNIQUE DES TRANSPORTS RAYMOND-PEYRON, LA CASERNE DU 6ÉME REGIMENT DU GENIE.

Conditions de vente :

La cellule est brut de béton, fourreaux en attente, huisserie posée.
Prix de vente net vendeur HT : 286 000 ?
Honoraires de commercialisation à la charge de l'acquéreur : 6% HT du prix de vente HT, soit 17 160 ? HT, TVA en sus au taux en vigueur

Pour toutes informations complémentaires contactez l'agence au 0255078635

Honoraires inclus de 6% HT à la charge de l'acquéreur. Prix hors honoraires 286 000 ? HT. Dans une copropriété de 2 lots. Aucune procédure n'est en cours. Non soumis au DPE. Les informations sur les risques auxquels ce bien est exposé sont disponibles sur le site Géorisques : georisques.gouv.fr.

Votre conseiller LOCAUX-BUREAUX-COMMERCES : Nicolas FOULON
Agent commercial (Entreprise individuelle)
RSAC ADC 4401 2025 000 000 873
RCP RCACO-20-016231 GALIAN SMA BTP.
LOCAUX-BUREAUX-COMMERCES 02 55 07 86 35

Etat des risques et pollutions

Les informations sur les risques auxquels ce bien est exposé sont disponibles sur le site Géorisques : www.georisques.gouv.fr.

Caractéristiques du bien

Composition du bien

  • Surface totale : 143 m²

Informations sur la copropriété

  • Bien soumis au statut de la copropriété
  • Nombre de lots : 2
  • Procédure en cours : Non

Consommation énergétique

DPE non soumis
mention indiquée sous la responsabilité de l’agence immobilière

Nos professionnels vous accompagnent

Contactez notre agence !

2 rue Robert Schuman 44400 REZE

Appeler l’agence Tél : 0255078635

* Champs obligatoires

Nous vous informons de l’existence de la liste d’opposition au démarchage téléphonique « BLOCTEL » sur laquelle vous pouvez vous inscrire (https://www.bloctel.gouv.fr).

En complétant le formulaire «CONTACTEZ NOTRE AGENCE », je reconnais expressément que je consens au traitement de mes données personnelles et que je dispose du droit de retirer mon consentement à tout moment en m'adressant à support@fnaim.fr.
En savoir plus sur la gestion de vos données et droits : consulter nos mentions légales, « article 5/ Données à caractère personnel ».

En envoyant ce message, vous acceptez les conditions d'utilisation du site. Plus d'infos