Fnaim.fr
Menu

Achat Immeuble 166m² ST CALAIS 72120

44 500

Description du bien

INVESTIR EN SARTHE - Immeuble en partie loué à venir découvrir dans le Centre de SAINT-CALAIS proche de toutes les commodités.

L'ensemble immobilier comprend :

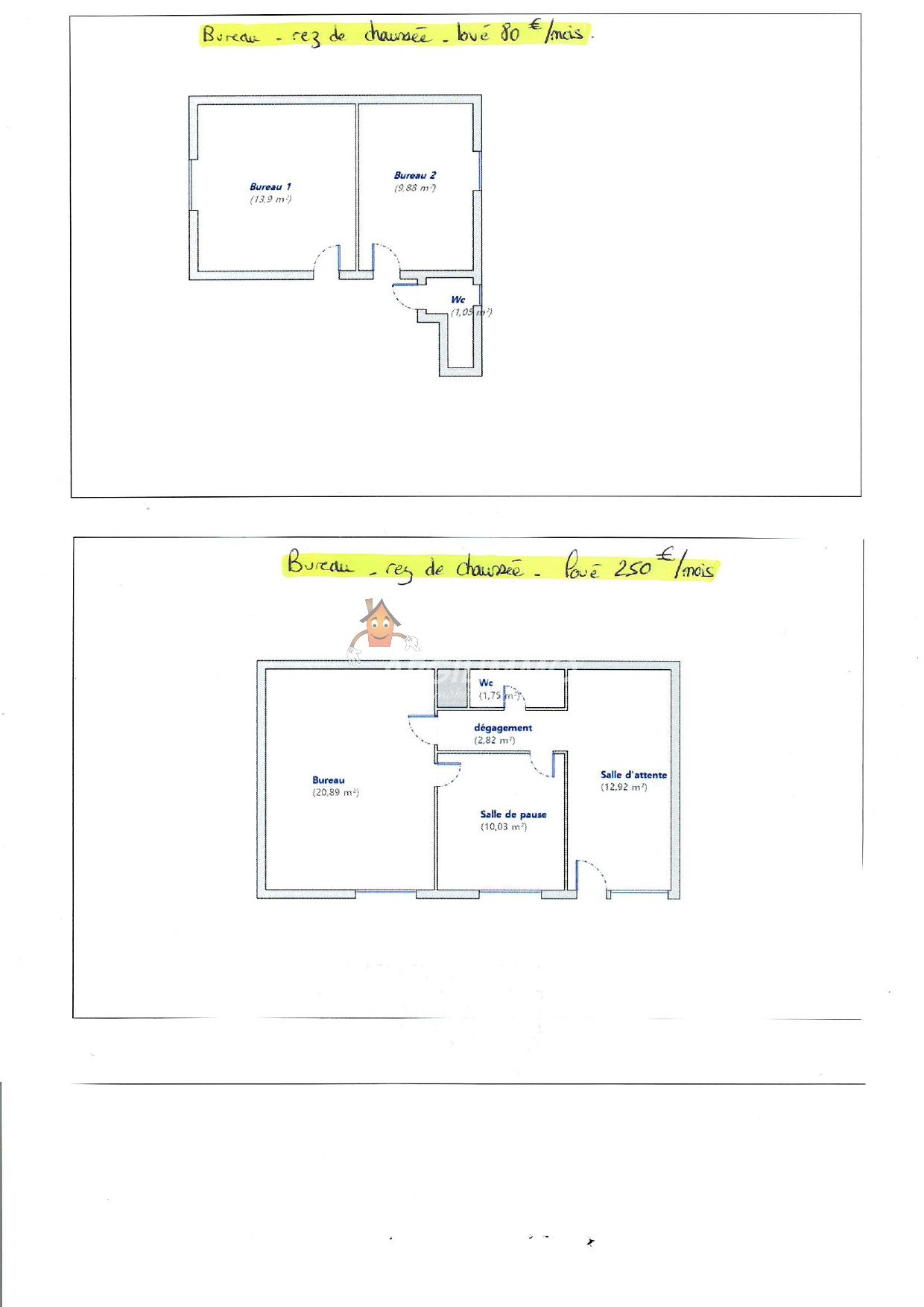
- 2 bureaux loués - 24.83m2 - (80EUR/mois)

- 4 studios à rénover. Surfaces : 24.90m2, 21.90m2, 24.12m2, 22.24m2

- 1 grenier aménageable (possibilité de rénover en studio/appartement)

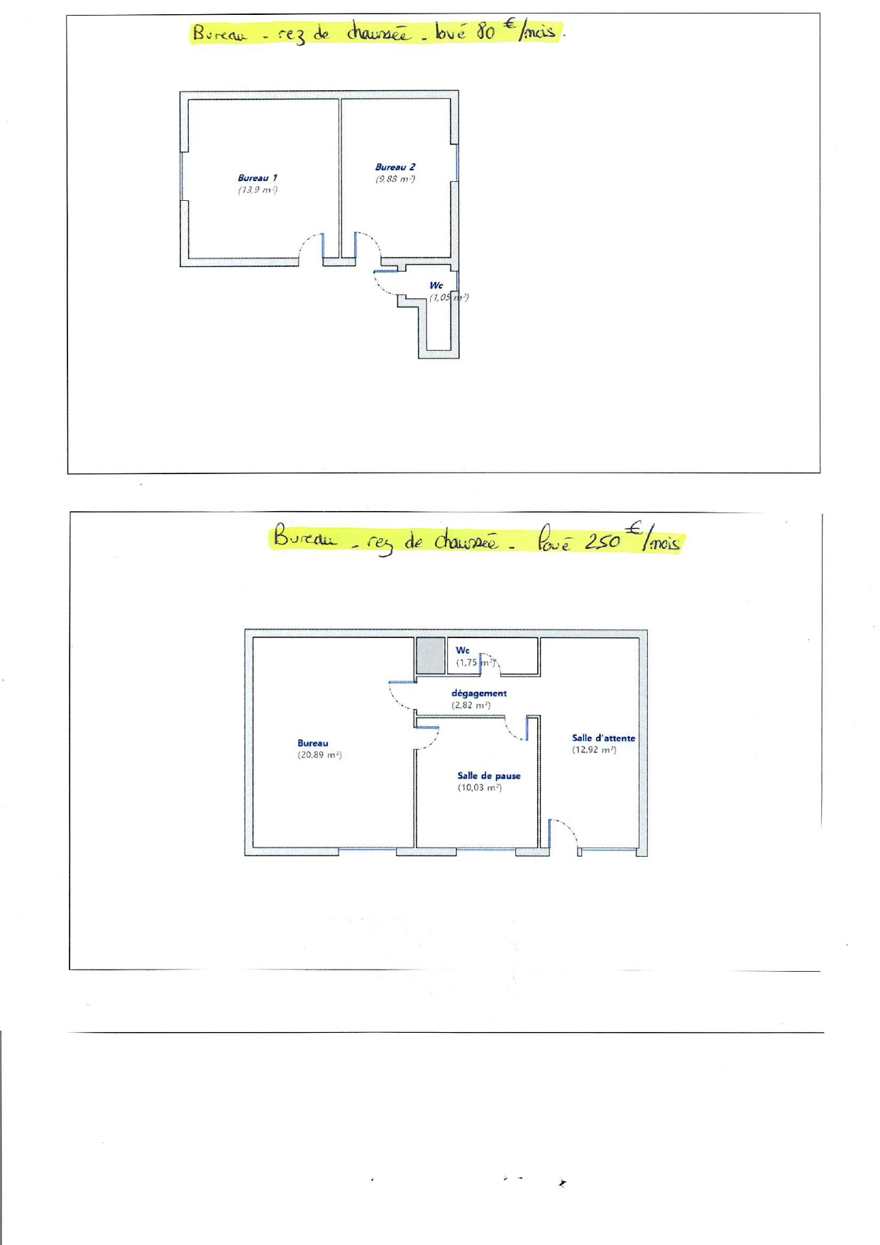
- Un ensemble d'accueil avec bureaux loués 48.41m2 - 250EUR/mois.

- Une cour fermée avec sa petite dépendance atypique.

Pour plus de renseignements contactez votre agence immobilière ARGILIMMO - par téléphone au 0243353140 ou par email : contact@argilimmo.com, une équipe de professionnels, habilités et passionnés vous accompagne tout le long de votre projet immobilier.

Etat des risques et pollutions

Les informations sur les risques auxquels ce bien est exposé sont disponibles sur le site Géorisques : www.georisques.gouv.fr.

Caractéristiques du bien

Composition du bien

  • Type d'habitation : Immeuble
  • Surface totale : 166 m²

Aménagement du bien

Partie Commune

  • Ascenseur : Non
  • Accès digicode : Non

Localisation du bien

ST CALAIS (72120) , SARTHE (72) - PAYS-DE-LA-LOIRE

Ce bien n'est pas géolocalisé, pour connaitre sa géolocalisation, merci de contacter l'agence.

Consommation énergétique

  • F (347 kWh/m² an)
    F (74 kgCO2/m².an)
    Plus d'info
    347
    74
    74
  • DPE réalisé après le 1er juillet 2021.
  • Non communiqué
    01/01/2021
  • Logement à consommation énergétique excessive : classe F

Nos professionnels vous accompagnent

Contactez notre agence !

108 rue Nationale 72440 BOULOIRE

Appeler l’agence Tél : 02 43 35 31 40

* Champs obligatoires

Nous vous informons de l’existence de la liste d’opposition au démarchage téléphonique « BLOCTEL » sur laquelle vous pouvez vous inscrire (https://www.bloctel.gouv.fr).

En complétant le formulaire «CONTACTEZ NOTRE AGENCE », je reconnais expressément que je consens au traitement de mes données personnelles et que je dispose du droit de retirer mon consentement à tout moment en m'adressant à support@fnaim.fr.
En savoir plus sur la gestion de vos données et droits : consulter nos mentions légales, « article 5/ Données à caractère personnel ».

En envoyant ce message, vous acceptez les conditions d'utilisation du site. Plus d'infos