Fnaim.fr
Menu

Réf. ENVMA190001314

Achat Maison 5 pièces 174m² BRIGNOLES 83170

249 000 Honoraires charge vendeur

4 chambres Jardin Parking / Garage

Description du bien

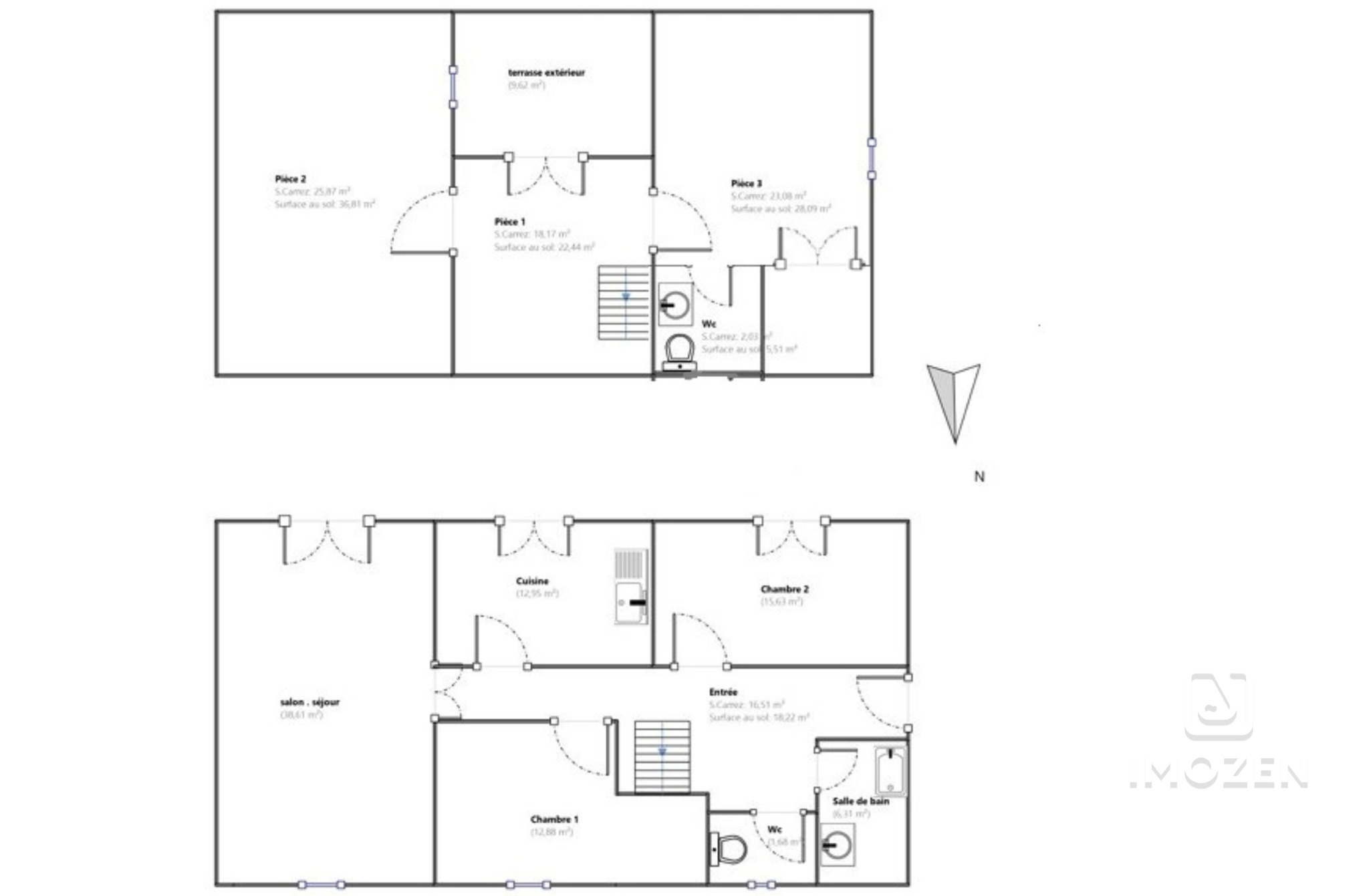
BRIGNOLES -Maison de ville de caractère avec grande terrasse, jardin et stationnements;
Idéalement située en plein centre-ville de Brignoles.

Cette maison de ville des années 60 offre de beaux volumes, une luminosité remarquable et un cadre de vie pratique, à proximité immédiate des commodités.

Développant environ 175 m2 habitables (199m2 surface sol), la maison se compose de 5 pièces, dont 4 chambres et un bureau, parfaitement adaptées à une vie de famille.

Le salon séjour spacieux et lumineux, associé à la cuisine indépendante, bénéficie de larges ouvertures par portes-fenêtres, offrant une circulation fluide et naturelle vers l'extérieur.

À l'extérieur, vous profiterez d'une très grande terrasse, véritable prolongement des espaces de vie. Sous cette terrasse se trouvent deux caves, idéales pour le rangement.

La maison est implantée sur un terrain plat, clos et arboré d'environ 387 m2 mais utile environ 140m2.

Côté stationnement, une allée privative permet de garer facilement deux véhicules à l'intérieur de la propriété. Elle dispose d'un accès avec un portillon.

Un garage complète l'ensemble, davantage adapté à un usage de stockage ou à un véhicule de petit gabarit.

Des travaux de modernisation sont à prévoir (menuiseries, chauffage, électricité), offrant l'opportunité de repensez les prestations selon vos envies et de révéler tout le potentiel de cette maison.

La toiture a été révisée et réparée.

Une maison au caractère affirmé, à l'emplacement recherché, offrant de belles perspectives d'évolution pour un projet réfléchi et personnalisé.

Une propriété au fort potentiel, à la situation rare en centre-ville, qui saura séduire les acquéreurs!!!

Une visite, un renseignement, contactez Mme Nathalie Erguy de l'agence Imozen.

'Conformément à l'article L 561.5 du code monétaire et financier, une pièce d'identité vous sera demandé pour l'organisation d'une visite'. Les informations sur les risques auxquels ce bien est exposé sont disponibles sur le site Géorisques : www.georisques.gouv.fr

Etat des risques et pollutions

Les informations sur les risques auxquels ce bien est exposé sont disponibles sur le site Géorisques : www.georisques.gouv.fr.

Caractéristiques du bien

Composition du bien

  • Type d'habitation : Maison
  • Nombre de chambres : 4
  • Nombre de salles de bain : 1
  • Cuisine : Type de cuisine Non communique

Aménagement du bien

  • Cave : Non
  • Garage / Parking : Oui
    • Surface habitable : 174 m²
    • Parking : Oui

    Localisation du bien

    BRIGNOLES (83170) , VAR (83) - PROVENCE-ALPES-COTE-D-AZUR

    Ce bien n'est pas géolocalisé, pour connaitre sa géolocalisation, merci de contacter l'agence.

    Consommation énergétique

    • E (272 kWh/m² an)
      C (11 kgCO2/m².an)
      Plus d'info
      272
      11
      11
    • DPE réalisé après le 1er juillet 2021.
    • Entre 4280 € TTC / an et 5830 € TTC / an
      01/01/2024

    Nos professionnels vous accompagnent

    Contactez notre agence !

    Parc Burotel 64 chemin de la Capellane 83140 SIX FOURS LES PLAGES

    Appeler l’agence Tél : 0494890011

    * Champs obligatoires

    Nous vous informons de l’existence de la liste d’opposition au démarchage téléphonique « BLOCTEL » sur laquelle vous pouvez vous inscrire (https://www.bloctel.gouv.fr).

    En complétant le formulaire «CONTACTEZ NOTRE AGENCE », je reconnais expressément que je consens au traitement de mes données personnelles et que je dispose du droit de retirer mon consentement à tout moment en m'adressant à support@fnaim.fr.
    En savoir plus sur la gestion de vos données et droits : consulter nos mentions légales, « article 5/ Données à caractère personnel ».

    En envoyant ce message, vous acceptez les conditions d'utilisation du site. Plus d'infos