Fnaim.fr
Menu

Visite virtuelle
Exclusivité
Réf. DOM28188

Achat Appartement 2 pièces 39m² CHOISY LE ROI 94600

158 000 Honoraires charge vendeur

1 chambre Balcon Ascenseur Parking / Garage

Description du bien

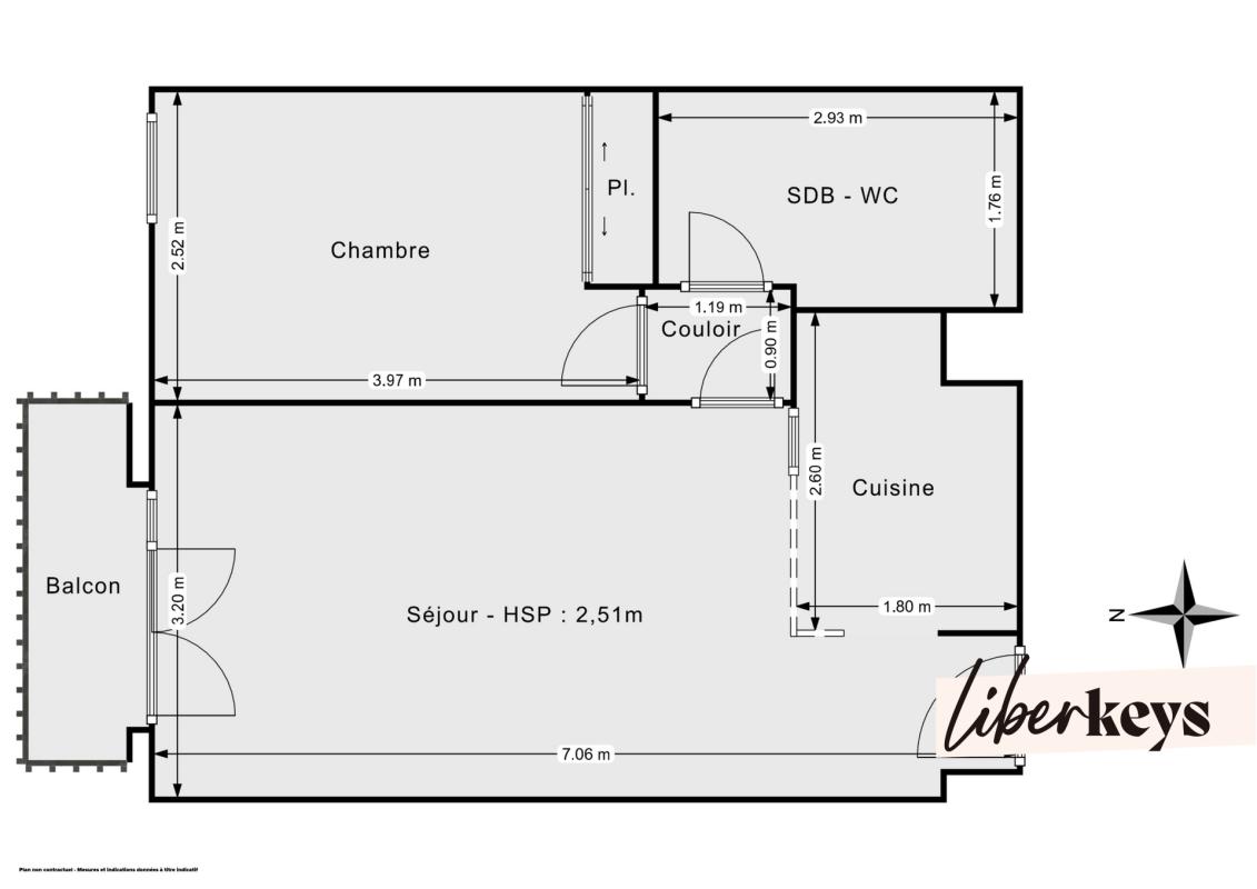
EXCLUSIVITÉ -- Liberkeys vous propose cet appartement 2 pièces de 39 m² classé DPE C, avec balcon et stationnement privatif, situé au 4e étage sur 5 d'une résidence récente de 2006 avec ascenseur, au 26 rue Frédéric Joliot Curie, dans une rue calme à sens unique du quartier Gondoles Nord à Choisy-le-Roi.

Cet appartement lumineux bénéficie d'un environnement résidentiel recherché, au calme et sans vis-à-vis, à proximité immédiate des commerces, écoles et espaces verts.

À environ 20 minutes à pied du RER C Choisy-le-Roi, également accessible rapidement en bus depuis le quartier, vous rejoignez Paris facilement tout en profitant d'un cadre de vie agréable.
Le parc départemental des Gondoles, accessible à pied, constitue un véritable atout pour les promenades, le sport et les moments de détente au quotidien.

Un bien idéal pour un primo-accédant, un jeune couple ou un investisseur recherchant confort, tranquillité et performance énergétique.

Les atouts du bien :

- Séjour lumineux de 18,69 m², agréable espace de vie
- Balcon de 4,07 m², offrant une vue dégagée sans vis-à-vis
- Cuisine ouverte de 4,3 m², fonctionnelle et conviviale
- Chambre de 10,1 m² avec placard de rangements / dressing intégré
- Salle de bains avec WC de 5,02 m²
- Appartement situé en étage élevé
- Rue calme à sens unique
- Plan optimisé sans perte d'espace
- Distribution fonctionnelle et agréable au quotidien
- Une place de stationnement privative dans la cour intérieure complète ce bien, véritable atout dans le secteur.

Prestations techniques :

- Résidence construite en 2006
- Chauffage individuel par radiateurs à inertie
- Ballon d'eau chaude individuel
- Volets roulants manuels
- Résidence sécurisée avec ascenseur

Copropriété :

- Immeuble récent et bien entretenu
- Charges incluant l'eau, l'entretien des parties communes et l'ascenseur

Environnement et commodités :

- Quartier Gondoles Nord
- RER C Choisy-le-Roi à environ 20 minutes à pied
- Bus accessibles à proximité immédiate
- Commerces, écoles et services accessibles à pied
- Parc départemental des Gondoles à proximité immédiate
- Accès rapide à Paris

Informations financières :

- Charges de copropriété : 113 € / mois
- Taxe foncière : 1 326 € / an

Ce bien vous plaît ?
- Visite virtuelle 3D disponible sur le site Liberkeys
- Appels du lundi au samedi de 8 h à 20 h
- Visites sur rendez-vous du lundi au samedi

Baptiste Pereira
Agent commercial en immobilier
RSAC Nanterre n° 804 804 813

Référence annonce : DOM28188

Les informations sur les risques auxquels ce bien est exposé sont disponibles sur www.georisques.gouv.fr

Liberkeys -- Votre agence immobilière en mieux : humaine, transparente et réactive.

Etat des risques et pollutions

Les informations sur les risques auxquels ce bien est exposé sont disponibles sur le site Géorisques : www.georisques.gouv.fr.

Caractéristiques du bien

Composition du bien

  • Type d'habitation : Appartement
  • Cuisine : 337
  • Nombre de pièce(s) : 2
  • Nombre de chambre(s) : 1

Aménagement du bien

Extérieur

  • Terrasse : Non
  • Balcon : Oui

Partie Commune

  • Ascenseur : Oui
  • Surface habitable : 39 m²
  • Parking : Oui

Informations sur la copropriété

  • Bien soumis au statut de la copropriété
  • Nombre de lots : 45
  • Quote part charges courantes : 1356 €/an
  • Procédure en cours : Non

Localisation du bien

CHOISY LE ROI (94600) , VAL-DE-MARNE (94) - ILE-DE-FRANCE

Consommation énergétique

  • C (158 kWh/m² an)
    A (5 kgCO2/m².an)
    Plus d'info
    158
    5
    5
  • DPE réalisé après le 1er juillet 2021.
  • Entre 510 € TTC / an et 730 € TTC / an
    Non communiqué

Nos professionnels vous accompagnent

Contactez notre agence !

20 RUE DE MONTHOLON 75009 PARIS 09

Appeler l’agence Tél : 06 29 24 78 02

* Champs obligatoires

Nous vous informons de l’existence de la liste d’opposition au démarchage téléphonique « BLOCTEL » sur laquelle vous pouvez vous inscrire (https://www.bloctel.gouv.fr).

En complétant le formulaire «CONTACTEZ NOTRE AGENCE », je reconnais expressément que je consens au traitement de mes données personnelles et que je dispose du droit de retirer mon consentement à tout moment en m'adressant à support@fnaim.fr.
En savoir plus sur la gestion de vos données et droits : consulter nos mentions légales, « article 5/ Données à caractère personnel ».

En envoyant ce message, vous acceptez les conditions d'utilisation du site. Plus d'infos