Fnaim.fr
Menu

Réf. 86779294

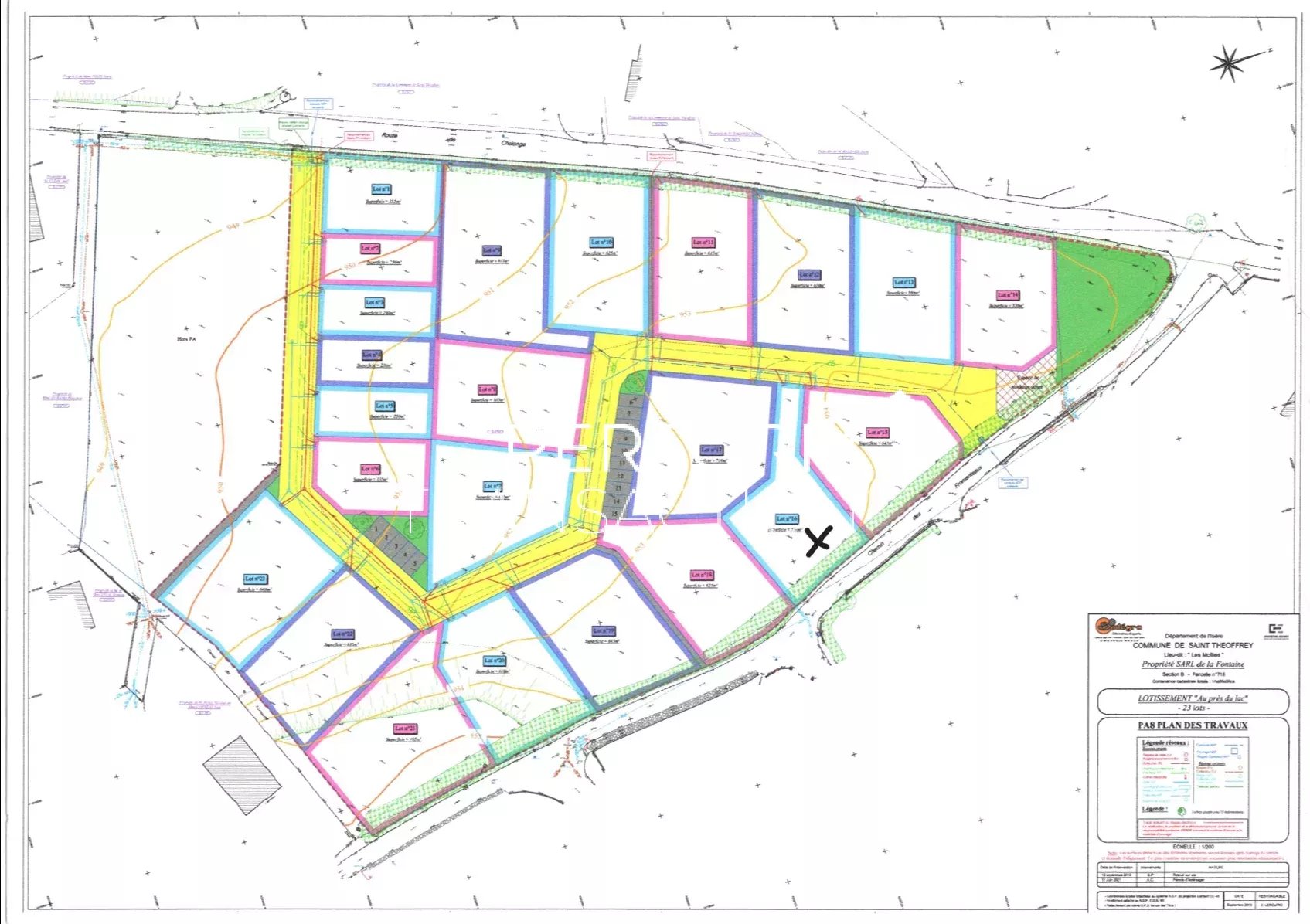
Achat Terrain 530m² ST THEOFFREY 38119

80 000 Honoraires charge vendeur

Description du bien

? Saint-Théoffrey (38119)
À 35 km au sud de Grenoble
À proximité immédiate du lac de Petichet

À vendre terrain constructible de 530 m² – lot n°16, situé dans le lotissement Les Molliès, dans un environnement calme et recherché entre lac et montagne.

? Les atouts :

Terrain entièrement viabilisé (eau, électricité, tout-à-l’égout)

Libre de constructeur

Bonne exposition

Secteur résidentiel paisible

Idéal famille :
École primaire juste en face, sans route à traverser.

Cadre de vie privilégié :
Proximité immédiate du lac de Petichet, fraîcheur l’été, nature environnante, tout en restant à environ 35 minutes de Grenoble.

Possibilité de vous proposer un constructeur pour un projet personnalisé selon votre budget.

? Contact : Sandra Mendes – *6 72 62 16 53 (RSAC Grenoble n°792 513 319)

?? Les informations sur les risques auxquels ce bien est exposé sont disponibles sur le site Géorisques : www.georisques.gouv.fr

Etat des risques et pollutions

Les informations sur les risques auxquels ce bien est exposé sont disponibles sur le site Géorisques : www.georisques.gouv.fr.

Caractéristiques du bien

Composition du bien

  • Type de bien : Terrain

Localisation du bien

ST THEOFFREY (38119) , ISERE (38) - AUVERGNE-RHÔNE-ALPES

Ce bien n'est pas géolocalisé, pour connaitre sa géolocalisation, merci de contacter l'agence.

Nos professionnels vous accompagnent

Contactez notre agence !

113 C avenue de la République 38130 ECHIROLLES

Appeler l’agence Tél : 06 23 21 25 01

* Champs obligatoires

Nous vous informons de l’existence de la liste d’opposition au démarchage téléphonique « BLOCTEL » sur laquelle vous pouvez vous inscrire (https://www.bloctel.gouv.fr).

En complétant le formulaire «CONTACTEZ NOTRE AGENCE », je reconnais expressément que je consens au traitement de mes données personnelles et que je dispose du droit de retirer mon consentement à tout moment en m'adressant à support@fnaim.fr.
En savoir plus sur la gestion de vos données et droits : consulter nos mentions légales, « article 5/ Données à caractère personnel ».

En envoyant ce message, vous acceptez les conditions d'utilisation du site. Plus d'infos