Fnaim.fr
Menu

Visite virtuelle
Exclusivité
Réf. 0040

Achat Appartement 2 pièces 47m² ANTIBES 06600

275 000 Honoraires charge vendeur

1 chambre Balcon Parking / Garage

Description du bien

EXCLUSIVITÉ ANTIBES TRANSACTIONS

À Antibes, quartier des Combes, appartement 2 pièces de 47,38 m² (loi Carrez) situé au 3? étage sur 4 d’une résidence bien entretenue de la fin des années 70 avec ascenseur, gardien, jardin, piscine et parking collectif.

Environnement calme et verdoyant, proche du centre commercial Carrefour, de l’A8 (accès rapide Cannes/Nice) et des axes vers Sophia Antipolis et le CIV.

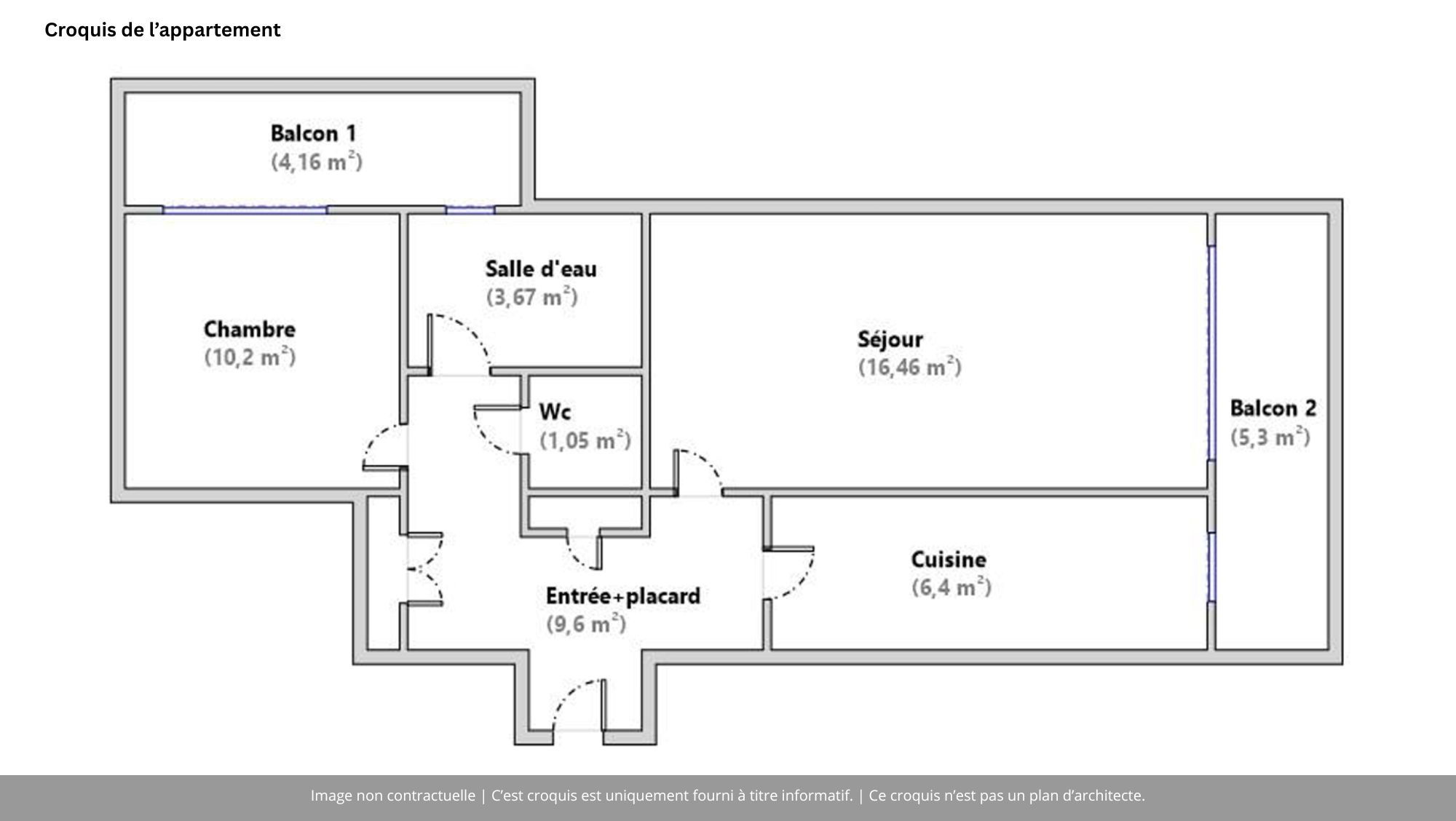
L’appartement, lumineux et semi-traversant (double exposition), comprend : entrée avec placards, séjour, cuisine indépendante équipée, chambre, salle d’eau avec fenêtre, WC séparé, deux balcons (séjour/cuisine et chambre). Vue mer depuis le séjour et la cuisine.

Prestations : volets roulants électriques, store, chauffage et eau chaude individuels au gaz, fibre.

Une cave et une place de parking extérieure privative complètent le bien.

Idéal résidence principale, secondaire ou investissement locatif.

DPE : E / GES : E.

Charges annuelles env. 2 085 €.

Taxe foncière 963 € (2023).

À rafraîchir.

Les informations sur les risques auxquels ce bien est exposé sont disponibles sur le site Géorisques.

Carte professionnelle : CPI 0605 2022 000 000 062

Etat des risques et pollutions

Les informations sur les risques auxquels ce bien est exposé sont disponibles sur le site Géorisques : www.georisques.gouv.fr.

Caractéristiques du bien

Composition du bien

  • Type d'habitation : Appartement
  • Cuisine : Equipée
  • Nombre de pièce(s) : 2
  • Nombre de chambre(s) : 1

Aménagement du bien

Extérieur

  • Terrasse : Non
  • Balcon : Oui

Partie Commune

  • Ascenseur : Non
  • Surface habitable : 47 m²
  • Parking : Oui

Informations sur la copropriété

  • Bien soumis au statut de la copropriété
  • Nombre de lots : 185
  • Quote part charges courantes : 2085 €/an
  • Procédure en cours : Non

Localisation du bien

ANTIBES (06600) , ALPES-MARITIMES (06) - PROVENCE-ALPES-COTE-D-AZUR

Consommation énergétique

  • D (244 kWh/m² an)
    D (50 kgCO2/m².an)
    Plus d'info
    244
    50
    50
  • DPE réalisé après le 1er juillet 2021.
  • Entre 1160 € TTC / an et 1630 € TTC / an
    01/01/2022

Nos professionnels vous accompagnent

Contactez notre agence !

540 PREMIERE AVENUE 06600 ANTIBES

Appeler l’agence Tél : 06 18 46 92 74

* Champs obligatoires

Nous vous informons de l’existence de la liste d’opposition au démarchage téléphonique « BLOCTEL » sur laquelle vous pouvez vous inscrire (https://www.bloctel.gouv.fr).

En complétant le formulaire «CONTACTEZ NOTRE AGENCE », je reconnais expressément que je consens au traitement de mes données personnelles et que je dispose du droit de retirer mon consentement à tout moment en m'adressant à support@fnaim.fr.
En savoir plus sur la gestion de vos données et droits : consulter nos mentions légales, « article 5/ Données à caractère personnel ».

En envoyant ce message, vous acceptez les conditions d'utilisation du site. Plus d'infos