Fnaim.fr
Menu

Réf. V10000208

Achat Terrain 726m² RODES 66320

109 900 Honoraires charge vendeur

Description du bien

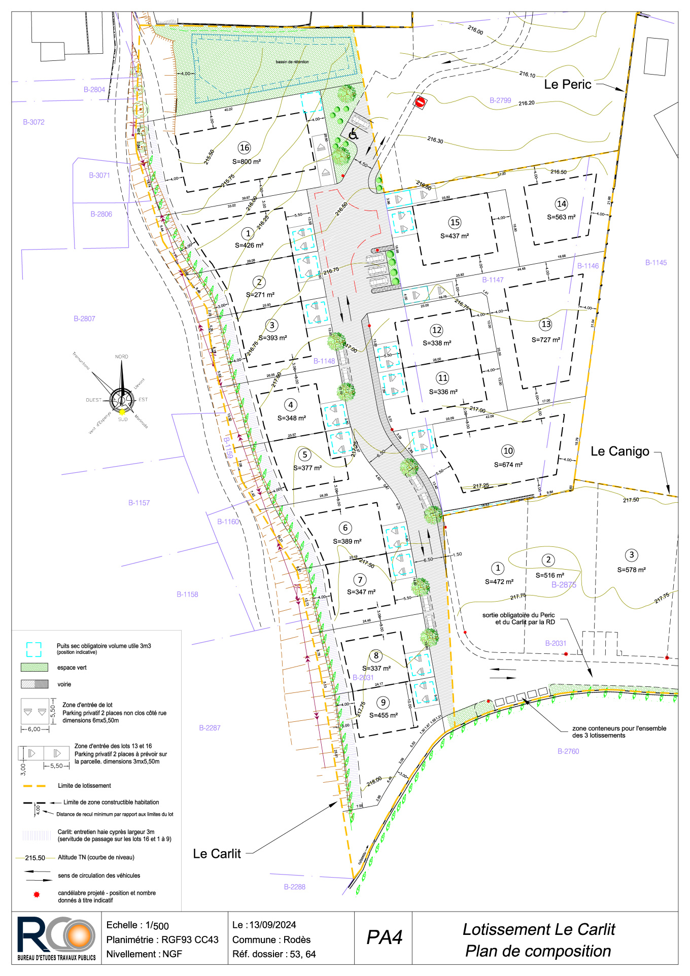
Sur la commune de RODES (66), à 20 min de Perpignan, nous vous proposons ce terrain viabilisé de 726 m2, correspondant au lot 13 sur le Lotissement 'Le Carlit'. Ce lotissement est composé de seulement 16 lots.
LOTISSEMENT TERMINE donc possibilité de CONSTRUIRE DE SUITE
Constructions imposées de PLAIN PIED afin de garantir la vue et l'intimité de chaque lot.
Dans un cadre naturel privilégié, des aménagements de qualités sont prévus avec de nombreuses places de stationnement privatives afin d'éviter l'encombrement de l'espace public.
Libres de constructeurs
Derniers lots disponibles :
No de lot - Surface - Prix
No11 - 336 m2 - 74900 EUR

Etat des risques et pollutions

Les informations sur les risques auxquels ce bien est exposé sont disponibles sur le site Géorisques : www.georisques.gouv.fr.

Caractéristiques du bien

Composition du bien

  • Type de bien : Terrain

Localisation du bien

RODES (66320) , PYRENEES-ORIENTALES (66) - OCCITANIE

Ce bien n'est pas géolocalisé, pour connaitre sa géolocalisation, merci de contacter l'agence.

Nos professionnels vous accompagnent

Contactez notre agence !

81, avenue du Haut Vernet 66430 BOMPAS

Appeler l’agence Tél : 04 68 348 249

* Champs obligatoires

Nous vous informons de l’existence de la liste d’opposition au démarchage téléphonique « BLOCTEL » sur laquelle vous pouvez vous inscrire (https://www.bloctel.gouv.fr).

En complétant le formulaire «CONTACTEZ NOTRE AGENCE », je reconnais expressément que je consens au traitement de mes données personnelles et que je dispose du droit de retirer mon consentement à tout moment en m'adressant à support@fnaim.fr.
En savoir plus sur la gestion de vos données et droits : consulter nos mentions légales, « article 5/ Données à caractère personnel ».

En envoyant ce message, vous acceptez les conditions d'utilisation du site. Plus d'infos