Fnaim.fr
Menu

Exclusivité
Réf. V6889

Achat Maison 5 pièces 128m² LUYNES 37230

381 800 Honoraires charge vendeur

4 chambres Jardin

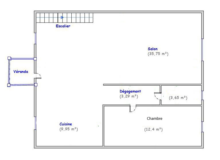
Description du bien

COMPROMIS DE VENTE SIGNÉ PAR VOTRE AGENCE.
ILS NOUS ONT FAIT CONFIANCE NOUS AVONS FAIT NOTRE MAXIMUM !
Vous aussi contactez Matthieu TRUILLET au 06.48.98.24.49 pour un avis de valeur professionnel qui vous sera offert.
EXCLUSIVITE DE VOTRE AGENCE. En vente dans votre agence et nul part ailleurs. Centre historique de Luynes. très belle maison de caractère à colombages du XVIIe siècle. Commerces (Boulanger-pâtissier, boucher-charcutier etc.) et commodités ( bus, écoles, bibliothèque etc.) sur place. Vues exceptionnelles sur le centre-bourg et son château. 128 m2 habitables environ + grandes caves troglodytiques et buanderie. L'ensemble est divisé de la manière suivante : A l'entrée un studio indépendant 23.82 M2 (grande pièce, salle d'eau avec w-c) et une buanderie avec chaufferie. A la suite et à l'étage: pièce de vie 45.7 m2 (avec cuisine aménagée et équipée) jouissant d'une double exposition, Chambre 12.4 m2, salle d'eau (2010) avec w-c. Un étage mansardé : (62 m2 au sol): Un grand palier avec espace bureau, 2 chambres (13.37 et 11.71 m2), salle de bains (2010) et w-c. huisseries double vitrage (alu ou PVC). Jardins et terrasses en espalier avec vues. 2 places de stationnement devant la maison + nombreux parking municipaux gratuits 1' à pied. Pas de travaux à prévoir. Couverture datant de la fin des années 80. Belles promenades de charme à proximité immédiate. 12 ' en voiture (12 Km) de Tours. Commerces (boulangerie, boucherie, charcuterie, restaurants, etc.,) Écoles, bibliothèques, bus, etc. Chauffage central au gaz de ville (1.800 EUR/an) + poêle à bois. Les caves ont fait l'objet de travaux de confortation en 2023. Murs intérieurs avec doublage briques. Isolation par soufflage de laine de roche du grenier et des rampants en 2010. Foncier : 1 515 EUR/an. Cette maison de caractère vous est proposée par l'Agence centrale de Luynes 02 47 40 10 10. La commune de Luynes, chef-lieu de canton, fait partie de l'agglomération de TOURS Métropole et est située au coeur du Val de Loire, au pied des coteaux de la Loire (site classé au patrimoine mondial de l'UNESCO). le centre-ville est d'une grande qualité patrimoniale et implanté dans le val adossé au coteau et dominé par un château du XIIème siècle. Les prix indiqués s'entendent honoraires d'agence inclus et frais de notaire en sus.

Etat des risques et pollutions

Les informations sur les risques auxquels ce bien est exposé sont disponibles sur le site Géorisques : www.georisques.gouv.fr.

Caractéristiques du bien

Composition du bien

  • Type d'habitation : Maison
  • Nombre de chambres : 4
  • Cuisine : Américaine

Aménagement du bien

  • Cave : Non
  • Garage / Parking : Non
    • Surface habitable : 128 m²

    Localisation du bien

    LUYNES (37230) , INDRE-ET-LOIRE (37) - CENTRE-VAL-DE-LOIRE

    Ce bien n'est pas géolocalisé, pour connaitre sa géolocalisation, merci de contacter l'agence.

    Consommation énergétique

    • D (181 kWh/m² an)
      C (29 kgCO2/m².an)
      Plus d'info
      181
      29
      29
    • DPE réalisé après le 1er juillet 2021.
    • Entre 1890 € TTC / an et 2620 € TTC / an
      Non communiqué

    Nos professionnels vous accompagnent

    Contactez notre agence !

    7 place des Victoires 37230 LUYNES

    Appeler l’agence Tél : 0648982449

    * Champs obligatoires

    Nous vous informons de l’existence de la liste d’opposition au démarchage téléphonique « BLOCTEL » sur laquelle vous pouvez vous inscrire (https://www.bloctel.gouv.fr).

    En complétant le formulaire «CONTACTEZ NOTRE AGENCE », je reconnais expressément que je consens au traitement de mes données personnelles et que je dispose du droit de retirer mon consentement à tout moment en m'adressant à support@fnaim.fr.
    En savoir plus sur la gestion de vos données et droits : consulter nos mentions légales, « article 5/ Données à caractère personnel ».

    En envoyant ce message, vous acceptez les conditions d'utilisation du site. Plus d'infos