Fnaim.fr
Menu

Réf. Y8MM-YPU-S2D

Achat Appartement 3 pièces 58m² ST PAUL LES DAX 40990

219 000 Honoraires charge vendeur

2 chambres Ascenseur Parking / Garage

Description du bien

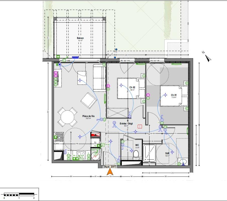
À Saint-Paul-lès-Dax, au sein de la Résidence L'Orée, découvrez ce T3 neuf situé au 2ème étage avec ascenseur, idéal pour une résidence principale ou un investissement de qualité.
Livraison prévue en novembre 2026.

L'appartement offre 58,1 m² habitables, parfaitement agencés :

Pièce de vie de 20,7 m², lumineuse et fonctionnelle

2 chambres (11,6 m² et 9,6 m²)

Salle d'eau spacieuse de 6,3 m²

WC indépendant

Entrée avec dégagement optimisé

Un extérieur agréable :
Un balcon de 9,1 m², idéal pour installer un coin repas ou détente et profiter des beaux jours.

La résidence répond aux normes RE2020 (seuil 2025), garantissant confort thermique et charges maîtrisées.
Chauffage électrique individuel, ballon thermodynamique, volets roulants électriques dans le séjour, ascenseur et accessibilité PMR : des prestations actuelles et durables.

Localisation pratique
Situé à Saint-Paul-lès-Dax, l'appartement bénéficie d'un emplacement recherché, à proximité des commerces et services, notamment le Grand Mail, avec un accès rapide à Dax et aux axes principaux.

Prix : 219 000 €

Scannez le QR code pour accéder au programme complet :
plans détaillés, disponibilités, surfaces, prestations et informations complémentaires.

Pour plus d'informations, et organiser un échange sur votre projet, contactez-nous dès maintenant.
Un bien rare sur le secteur, à découvrir sans tarder.
Référence agence : 9138

Etat des risques et pollutions

Les informations sur les risques auxquels ce bien est exposé sont disponibles sur le site Géorisques : www.georisques.gouv.fr.

Caractéristiques du bien

Composition du bien

  • Type d'habitation : Appartement
  • Cuisine : Simple
  • Nombre de pièce(s) : 3
  • Nombre de chambre(s) : 2

Aménagement du bien

Extérieur

  • Terrasse : Non
  • Balcon : Non

Partie Commune

  • Ascenseur : Oui
  • Surface habitable : 58 m²
  • Parking : Oui

Informations sur la copropriété

  • Bien soumis au statut de la copropriété
  • Nombre de lots : 89
  • Procédure en cours : Non

Localisation du bien

ST PAUL LES DAX (40990) , LANDES (40) - NOUVELLE-AQUITAINE

Ce bien n'est pas géolocalisé, pour connaitre sa géolocalisation, merci de contacter l'agence.

Consommation énergétique

  • A (2 kWh/m² an)
    D (40 kgCO2/m².an)
    Plus d'info
    2
    40
    40
  • DPE réalisé après le 1er juillet 2021.
  • Entre 250 € TTC / an et 550 € TTC / an
    Non communiqué

Nos professionnels vous accompagnent

Contactez notre agence !

2, Avenue Victor Hugo 40100 DAX

Appeler l’agence Tél : 05 58 74 03 43

* Champs obligatoires

Nous vous informons de l’existence de la liste d’opposition au démarchage téléphonique « BLOCTEL » sur laquelle vous pouvez vous inscrire (https://www.bloctel.gouv.fr).

En complétant le formulaire «CONTACTEZ NOTRE AGENCE », je reconnais expressément que je consens au traitement de mes données personnelles et que je dispose du droit de retirer mon consentement à tout moment en m'adressant à support@fnaim.fr.
En savoir plus sur la gestion de vos données et droits : consulter nos mentions légales, « article 5/ Données à caractère personnel ».

En envoyant ce message, vous acceptez les conditions d'utilisation du site. Plus d'infos