Fnaim.fr
Menu

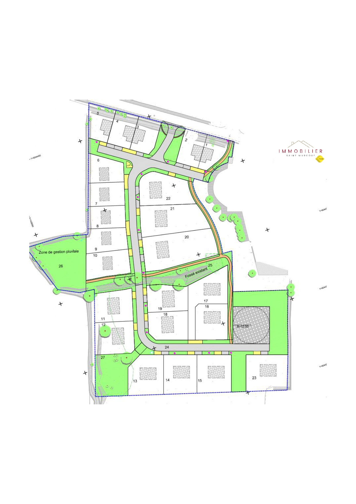
Achat Terrain 30 653m² COMMES 14520

1 055 000 Honoraires charge vendeur

Description du bien

Investisseurs !
Immobilier St Marcouf vous présente un terrain à bâtir de 3.6 hectares aux portes de Port en Bessin. Ce projet, déjà validé par l'acceptation de son permis d'aménager vous offre la possibilité de commercialiser 27 parcelles constructibles puis une quinzaine supplémentaires.
Nous restons à votre disposition pour les information techniques et administratives afin de vous accompagner sur ce projet.

Etat des risques et pollutions

Les informations sur les risques auxquels ce bien est exposé sont disponibles sur le site Géorisques : www.georisques.gouv.fr.

Caractéristiques du bien

Composition du bien

  • Type de bien : Terrain

Localisation du bien

COMMES (14520) , CALVADOS (14) - NORMANDIE

Ce bien n'est pas géolocalisé, pour connaitre sa géolocalisation, merci de contacter l'agence.

Nos professionnels vous accompagnent

Contactez notre agence !

91 RUE ARISTIDE BRIAND 14450 GRANDCAMP MAISY

Appeler l’agence Tél : 02 31 51 04 03

* Champs obligatoires

Nous vous informons de l’existence de la liste d’opposition au démarchage téléphonique « BLOCTEL » sur laquelle vous pouvez vous inscrire (https://www.bloctel.gouv.fr).

En complétant le formulaire «CONTACTEZ NOTRE AGENCE », je reconnais expressément que je consens au traitement de mes données personnelles et que je dispose du droit de retirer mon consentement à tout moment en m'adressant à support@fnaim.fr.
En savoir plus sur la gestion de vos données et droits : consulter nos mentions légales, « article 5/ Données à caractère personnel ».

En envoyant ce message, vous acceptez les conditions d'utilisation du site. Plus d'infos