Fnaim.fr
Menu

Exclusivité
Réf. 86701425

Achat Appartement 3 pièces 70m² ST FELIX 74540

331 000 Honoraires charge vendeur

2 chambres Ascenseur

Description du bien

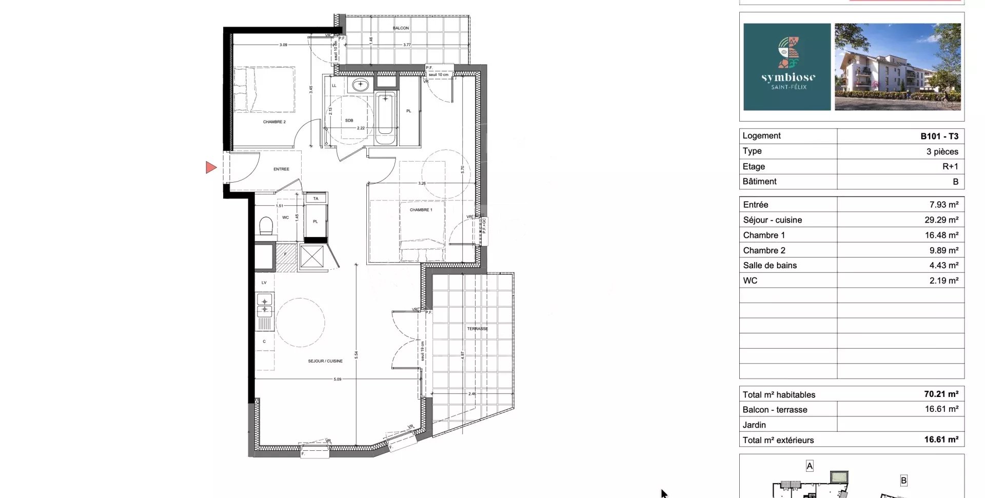
Au sein de la résidence Symbiose à Saint-Félix, appartement 3 pièces situé au 1er étage.

Exposé plein Sud, il profite d’une vue sur la campagne et les montagnes, dans un cadre résidentiel calme, à proximité des axes Annecy / Aix-les-Bains.

L’espace de vie développe près de 30 m² avec cuisine ouverte et s’ouvre sur deux extérieurs distincts : une terrasse et un balcon.

Cette configuration permet de profiter pleinement de l’exposition et d’organiser les espaces selon les moments de la journée.
La partie nuit accueille deux chambres confortables, dont une de plus de 16 m², une salle de bains et un WC indépendant.
Il s’agit d’une revente en transaction classique au sein d’un programme déjà lancé. Appartement sélectionné dès le démarrage de la commercialisation, bénéficiant d’un emplacement qualitatif dans la résidence.

Le chantier est aujourd’hui bien avancé, offrant une lecture concrète du projet. Des visites sur site sont possibles afin de se projeter précisément dans l’environnement et les volumes.

Livraison prévisionnelle : 4? trimestre 2026.

Pour toute information ou organisation d’une visite :
Mathis UOMOBONO-Gérant
06 78 75 83 11 - mu@tourdeslacs.com

Etat des risques et pollutions

Les informations sur les risques auxquels ce bien est exposé sont disponibles sur le site Géorisques : www.georisques.gouv.fr.

Caractéristiques du bien

Composition du bien

  • Type d'habitation : Appartement
  • Nombre de pièce(s) : 3
  • Nombre de chambre(s) : 2
  • Salles de bain : 1

Aménagement du bien

Extérieur

  • Terrasse : Non
  • Balcon : Non

Partie Commune

  • Ascenseur : Oui
  • Surface habitable : 70 m²

Localisation du bien

ST FELIX (74540) , HAUTE-SAVOIE (74) - AUVERGNE-RHÔNE-ALPES

Consommation énergétique

DPE non soumis
mention indiquée sous la responsabilité de l’agence immobilière

Nos professionnels vous accompagnent

Contactez notre agence !

5, avenue du Petit Port 74000 ANNECY

Appeler l’agence Tél : +33 (0)4 50 27 10 10

* Champs obligatoires

Nous vous informons de l’existence de la liste d’opposition au démarchage téléphonique « BLOCTEL » sur laquelle vous pouvez vous inscrire (https://www.bloctel.gouv.fr).

En complétant le formulaire «CONTACTEZ NOTRE AGENCE », je reconnais expressément que je consens au traitement de mes données personnelles et que je dispose du droit de retirer mon consentement à tout moment en m'adressant à support@fnaim.fr.
En savoir plus sur la gestion de vos données et droits : consulter nos mentions légales, « article 5/ Données à caractère personnel ».

En envoyant ce message, vous acceptez les conditions d'utilisation du site. Plus d'infos