Fnaim.fr
Menu

Exclusivité
Réf. 86701166

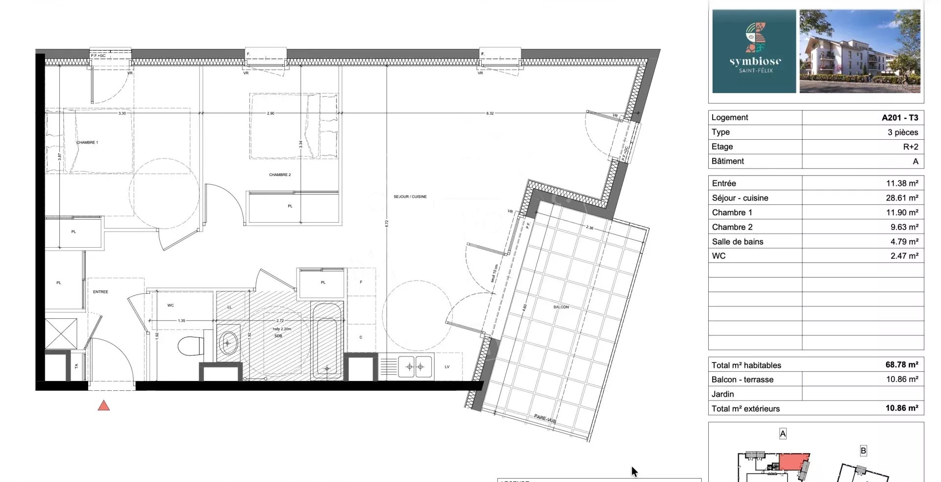
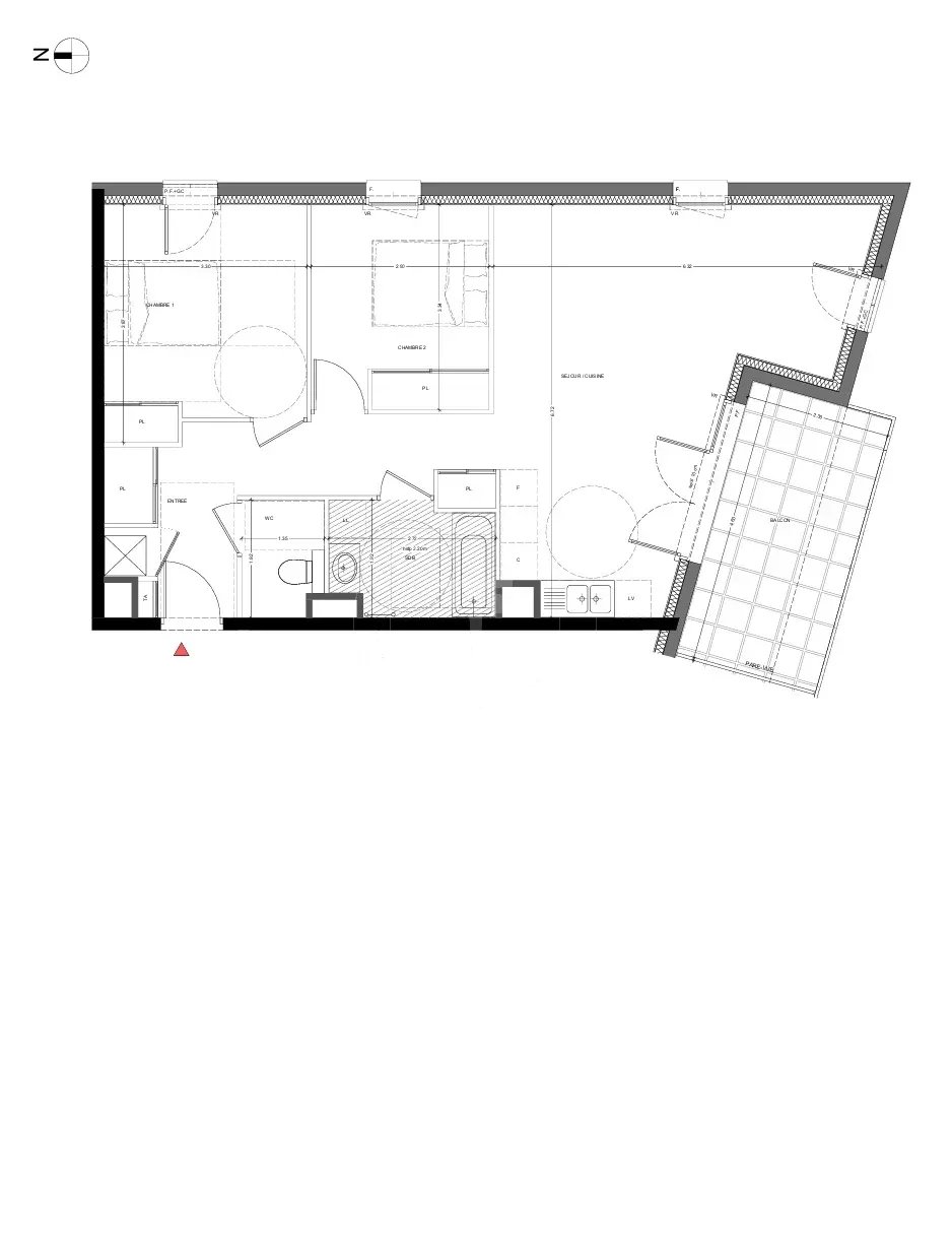
Achat Appartement 3 pièces 68m² ST FELIX 74540

325 500 Honoraires charge vendeur

2 chambres Ascenseur

Description du bien

À Saint-Félix, au sein de la résidence Symbiose, appartement 3 pièces situé au 2? étage .

Exposé plein Sud, il offre une belle luminosité ainsi qu’une vue sur la campagne et les montagnes.
L’espace de vie se compose d'une cuisine ouverte et s’ouvre sur un bel extérieur de 10,86 m².

L’entrée, confortable, distribue l’ensemble de l’appartement.
La partie nuit comprend deux chambres, une salle de bains et un WC indépendant.

Il s’agit d’une revente en transaction classique au sein d’un programme en cours de construction.
Le chantier est aujourd’hui bien avancé, offrant une vision concrète de la résidence et de son environnement. Des visites sur site peuvent être organisées afin d’apprécier précisément l’implantation et l’exposition.

L’appartement disposera d’une pompe à chaleur individuelle avec chauffage au sol complété par des radiateurs, conformément aux dernières normes énergétiques.

Livraison prévisionnelle : 4? trimestre 2026.

Pour toute information ou organisation d’une visite :
Mathis UOMOBONO-Gérant-mu@tourdeslacs.com
06 78 75 83 11

Etat des risques et pollutions

Les informations sur les risques auxquels ce bien est exposé sont disponibles sur le site Géorisques : www.georisques.gouv.fr.

Caractéristiques du bien

Composition du bien

  • Type d'habitation : Appartement
  • Nombre de pièce(s) : 3
  • Nombre de chambre(s) : 2
  • Salles de bain : 1

Aménagement du bien

Extérieur

  • Terrasse : Non
  • Balcon : Non

Partie Commune

  • Ascenseur : Oui
  • Surface habitable : 68 m²

Localisation du bien

ST FELIX (74540) , HAUTE-SAVOIE (74) - AUVERGNE-RHÔNE-ALPES

Consommation énergétique

DPE non soumis
mention indiquée sous la responsabilité de l’agence immobilière

Nos professionnels vous accompagnent

Contactez notre agence !

5, avenue du Petit Port 74000 ANNECY

Appeler l’agence Tél : +33 (0)4 50 27 10 10

* Champs obligatoires

Nous vous informons de l’existence de la liste d’opposition au démarchage téléphonique « BLOCTEL » sur laquelle vous pouvez vous inscrire (https://www.bloctel.gouv.fr).

En complétant le formulaire «CONTACTEZ NOTRE AGENCE », je reconnais expressément que je consens au traitement de mes données personnelles et que je dispose du droit de retirer mon consentement à tout moment en m'adressant à support@fnaim.fr.
En savoir plus sur la gestion de vos données et droits : consulter nos mentions légales, « article 5/ Données à caractère personnel ».

En envoyant ce message, vous acceptez les conditions d'utilisation du site. Plus d'infos