Fnaim.fr
Menu

Réf. 2623AAAA

Achat Immeuble 220m² REVEL 31250

120 000

Description du bien

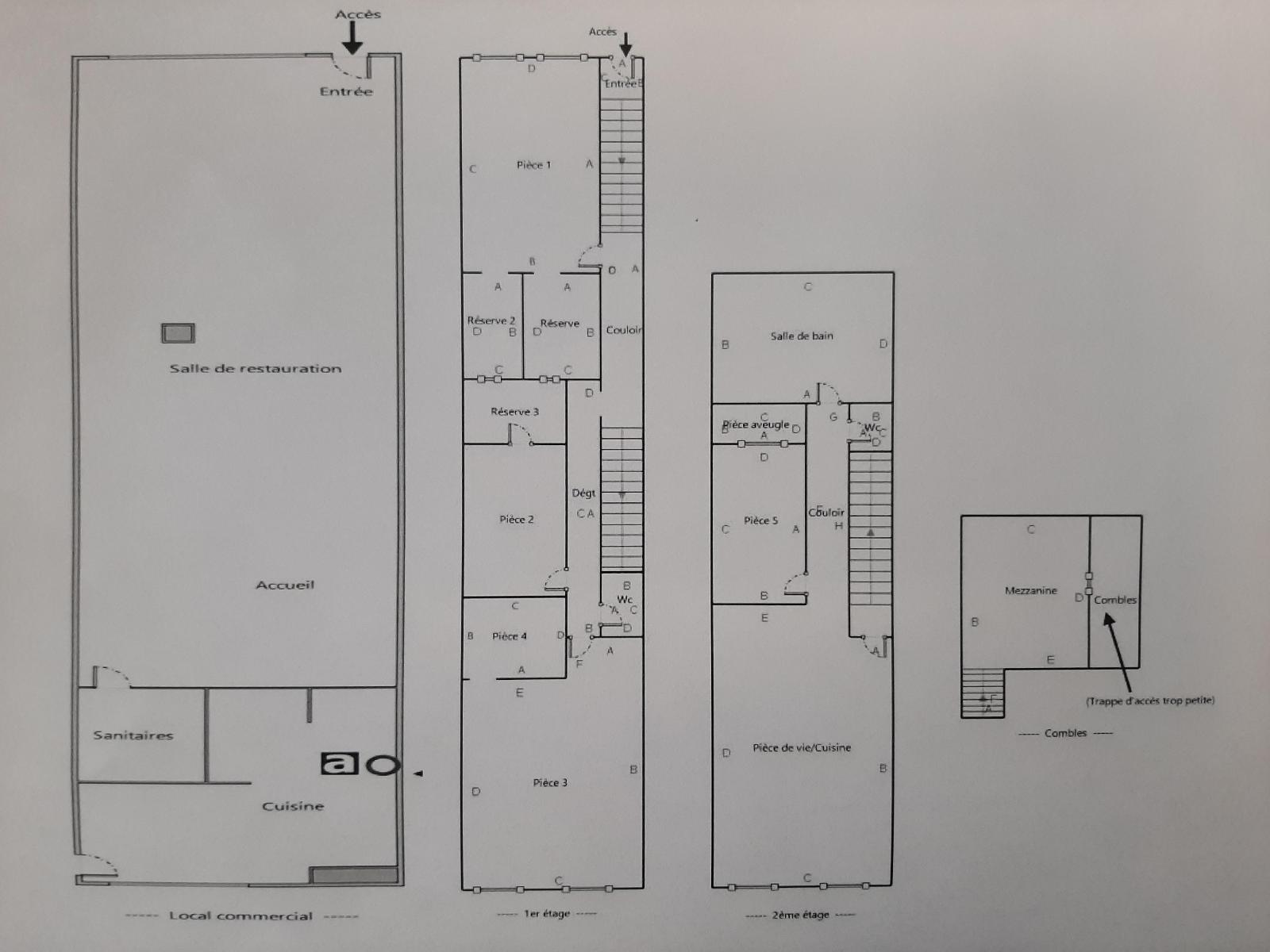
Immeuble à rénover à REVEL - Agestis vous propose un immeuble de 3 niveaux à fort potentiel, situé en plein cœur de Revel, un village dynamique à seulement 1 heure de Toulouse, à proximité de l'autoroute A61 et de la future A69. Ce bien, idéalement situé sur un boulevard très passant du centre ville, bénéficie d'un emplacement stratégique, avec des places de stationnement disponibles à l'avant.

Un bien modulable et divisible :
Grâce à ses deux entrées indépendantes, cet immeuble offre une multitude de possibilités d'aménagement. Il peut être divisé en 3 lots : 2 appartements et un local commercial, ou local avec logement de fonction au dessus, selon vos projets.

Description du bien :
Rez-de-chaussée : Un local commercial de 85 m², anciennement utilisé comme restaurant, comprenant une grande pièce centrale, un four à pizza, une cuisine et un toilette avec point d'eau. Ce local est immédiatement fonctionnel et pourrait être loué à un commerçant, offrant ainsi un revenu locatif immédiat.

1er étage : Un espace de 70 m² à aménager, composé de trois pièces, dont une pièce noire, ainsi qu'un toilette séparé. Ce niveau peut être transformé en appartement ou en bureaux, selon vos besoins.

2e étage : Un espace de 65 m², avec deux pièces dont une noire, une mezzanine, une salle de bain et un WC séparé.

Atouts :
Emplacement central avec stationnement
Deux entrées indépendantes pour une division en plusieurs lots
Menuiseries en double vitrage
DPE vierge (travaux de rénovation à prévoir)

Ce bien offre une belle opportunité pour un investisseur souhaitant rénover et valoriser un immeuble dans un secteur en pleine évolution. Il dispose de nombreux atouts pour devenir un projet rentable, à la fois pour la location de commerces et d'appartements.

Prix : 120 000 €
Honoraires charge vendeur inclus
Nous prendrons en considération toutes les offres, sous réserve qu'elles soient raisonnables.

Pour plus d'informations ou pour organiser une visite, contactez-nous directement au 06.37.18.45.64.

Les informations relatives aux risques peuvent être consultées sur le site Géorisques : www.georisques.gouv.fr. .

Etat des risques et pollutions

Les informations sur les risques auxquels ce bien est exposé sont disponibles sur le site Géorisques : www.georisques.gouv.fr.

Caractéristiques du bien

Composition du bien

  • Type d'habitation : Immeuble
  • Surface totale : 220 m²

Aménagement du bien

Partie Commune

  • Ascenseur : Non
  • Accès digicode : Non

Localisation du bien

REVEL (31250) , HAUTE-GARONNE (31) - OCCITANIE

Ce bien n'est pas géolocalisé, pour connaitre sa géolocalisation, merci de contacter l'agence.

Consommation énergétique

DPE non soumis
mention indiquée sous la responsabilité de l’agence immobilière

Nos professionnels vous accompagnent

Contactez notre agence !

93 BIS RUE EDMOND ROSTAND 31200 TOULOUSE

Appeler l’agence Tél : 05 61 61 61 61

* Champs obligatoires

Nous vous informons de l’existence de la liste d’opposition au démarchage téléphonique « BLOCTEL » sur laquelle vous pouvez vous inscrire (https://www.bloctel.gouv.fr).

En complétant le formulaire «CONTACTEZ NOTRE AGENCE », je reconnais expressément que je consens au traitement de mes données personnelles et que je dispose du droit de retirer mon consentement à tout moment en m'adressant à support@fnaim.fr.
En savoir plus sur la gestion de vos données et droits : consulter nos mentions légales, « article 5/ Données à caractère personnel ».

En envoyant ce message, vous acceptez les conditions d'utilisation du site. Plus d'infos