Fnaim.fr
Menu

Visite virtuelle
Exclusivité
Réf. DOM28321

Achat Appartement 3 pièces 48m² ST CHAMAS 13250

130 000 Honoraires charge vendeur

2 chambres

Description du bien

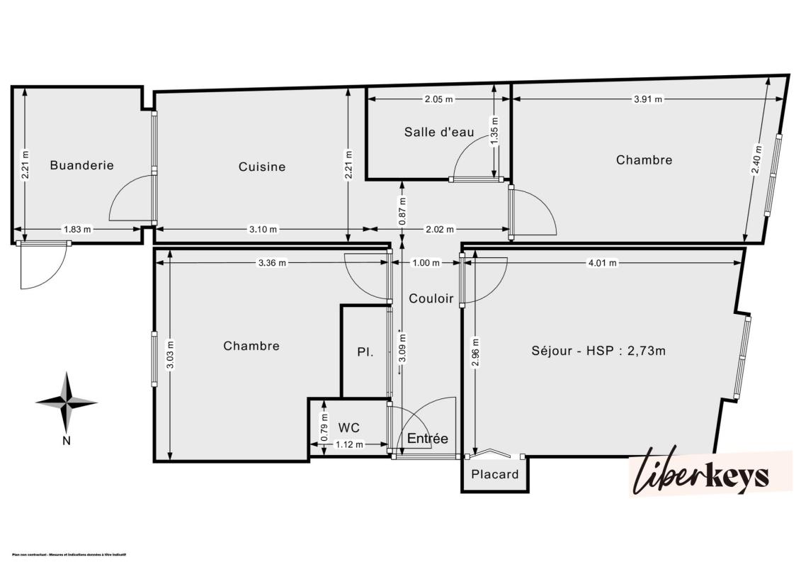
Christelle Chave vous propose, en exclusivité, cet appartement traversant de 45 m² (loi Carrez), idéal pour un premier achat ou un investissement locatif, situé à deux pas du centre-ville de Saint-Chamas.

L'appartement se compose comme suit :
- une cuisine,
- un séjour,
- deux chambres,
- une salle d'eau,
- un WC séparé,
- une cour intérieure.

L'emplacement est un vrai point fort :
Commerces, écoles, restaurants et marchés accessibles à pied
Étang de Berre à moins de 500 m, idéal pour les promenades
Gare de Saint-Chamas à 600 m, facilitant les déplacements vers Marseille ou Miramas

Un appartement agréable à vivre, bien situé, qui allie calme, praticité et qualité de vie.

Charges de copropriété : 127 €/mois. Taxe foncière : 819 €. Idéal primo-accédant ou investisseur recherchant la rentabilité dans un secteur attractif du Sud.

Montant estimé des dépenses annuelles d'énergie pour un usage standard : entre 940 € et 1310 € par an. Prix moyens des énergies indexés sur l'année 2023 (abonnements compris).

Ce bien vous plaît ? Visitez-le virtuellement en 3D sur le site de Liberkeys ou contactez directement votre conseillère Chave Christelle, agent commercial immatriculé au RSAC de Salon de Provence sous le numéro 899533152. Référence annonce : DOM28321. Date de réalisation du diagnostic : 01/09/2025. Les honoraires sont à la charge du vendeur.

Etat des risques et pollutions

Les informations sur les risques auxquels ce bien est exposé sont disponibles sur le site Géorisques : www.georisques.gouv.fr.

Caractéristiques du bien

Composition du bien

  • Type d'habitation : Appartement
  • Cuisine : Aménagée
  • Nombre de pièce(s) : 3
  • Nombre de chambre(s) : 2

Aménagement du bien

Extérieur

  • Terrasse : Non
  • Balcon : Non

Partie Commune

  • Ascenseur : Non
  • Surface habitable : 48 m²

Informations sur la copropriété

  • Bien soumis au statut de la copropriété
  • Nombre de lots : 6
  • Quote part charges courantes : 1528 €/an
  • Procédure en cours : Non

Localisation du bien

ST CHAMAS (13250) , BOUCHES-DU-RHONE (13) - PROVENCE-ALPES-COTE-D-AZUR

Consommation énergétique

  • C (214 kWh/m² an)
    B (8 kgCO2/m².an)
    Plus d'info
    214
    8
    8
  • DPE réalisé après le 1er juillet 2021.
  • Entre 940 € TTC / an et 1310 € TTC / an
    Non communiqué

Nos professionnels vous accompagnent

Contactez notre agence !

20 RUE DE MONTHOLON 75009 PARIS 09

Appeler l’agence Tél : 06 59 21 46 47

* Champs obligatoires

Nous vous informons de l’existence de la liste d’opposition au démarchage téléphonique « BLOCTEL » sur laquelle vous pouvez vous inscrire (https://www.bloctel.gouv.fr).

En complétant le formulaire «CONTACTEZ NOTRE AGENCE », je reconnais expressément que je consens au traitement de mes données personnelles et que je dispose du droit de retirer mon consentement à tout moment en m'adressant à support@fnaim.fr.
En savoir plus sur la gestion de vos données et droits : consulter nos mentions légales, « article 5/ Données à caractère personnel ».

En envoyant ce message, vous acceptez les conditions d'utilisation du site. Plus d'infos