Fnaim.fr
Menu

Achat Appartement 3 pièces 70m² VILLEFRANCHE SUR SAONE 69400

135 000 Honoraires charge vendeur

2 chambres Parking / Garage

Description du bien

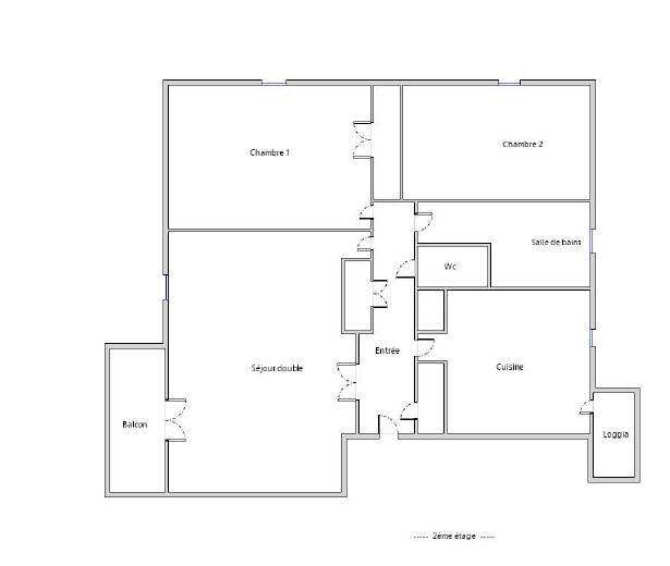
VILLEFRANCHE PROXIMITE GARE ET ACCES AUTOROUTE: L'agence COLIN Immobilier vous propose ce T3 de 70m2 situé au 2éme étage (sans ascenseur) d'une résidence avec parc, très bien entretenue, et dont le ravalement a été fait récemment. Orienté au sud avec également une exposition au nord et à l'ouest, cet appartement, très propre et bien entretenu bénéficie d'un balcon avec une vue dégagée. Nous disposons d'un garage (box fermé), en extérieur, situé juste devant l'entrée de l'immeuble, ainsi que d'une cave. Montant des charges annuelles: 2400 euros comprenant les charges de copropriété et le chauffage. Les informations sur les risques auxquels ce bien est exposé sont disponibles sur le site www.georisques.gouv.fr. Votre interlocuteur Laurent COLIN, Agent Immobilier et Administrateur de Biens, depuis 2004, titulaire de la carte professionnelle Transaction et Gestion 6902 2018 000 025 432 (CCI du Beaujolais). N'hésitez pas à nous contacter , pour de plus amples informations - FN_1772083292

Etat des risques et pollutions

Les informations sur les risques auxquels ce bien est exposé sont disponibles sur le site Géorisques : www.georisques.gouv.fr.

Caractéristiques du bien

Composition du bien

  • Type d'habitation : Appartement
  • Cuisine : Type de cuisine Non communique
  • Nombre de pièce(s) : 3
  • Nombre de chambre(s) : 2
  • Salles de bain : 1

Aménagement du bien

Extérieur

  • Terrasse : Non
  • Balcon : Non

Partie Commune

  • Ascenseur : Non
  • Surface habitable : 70 m²
  • Parking : Oui

Localisation du bien

VILLEFRANCHE SUR SAONE (69400) , RHONE (69) - AUVERGNE-RHÔNE-ALPES

Ce bien n'est pas géolocalisé, pour connaitre sa géolocalisation, merci de contacter l'agence.

Consommation énergétique

  • D (243 kWh/m² an)
    D (40 kgCO2/m².an)
    Plus d'info
    243
    40
    40
  • DPE réalisé après le 1er juillet 2021.
  • Entre 1410 € TTC / an et 1950 € TTC / an
    Non communiqué

Nos professionnels vous accompagnent

Contactez notre agence !

199 rue d'Anse 69400 VILLEFRANCHE SUR SAONE

Appeler l’agence Tél : 0474068625

* Champs obligatoires

Nous vous informons de l’existence de la liste d’opposition au démarchage téléphonique « BLOCTEL » sur laquelle vous pouvez vous inscrire (https://www.bloctel.gouv.fr).

En complétant le formulaire «CONTACTEZ NOTRE AGENCE », je reconnais expressément que je consens au traitement de mes données personnelles et que je dispose du droit de retirer mon consentement à tout moment en m'adressant à support@fnaim.fr.
En savoir plus sur la gestion de vos données et droits : consulter nos mentions légales, « article 5/ Données à caractère personnel ».

En envoyant ce message, vous acceptez les conditions d'utilisation du site. Plus d'infos