Fnaim.fr
Menu

Visite virtuelle

Achat Appartement 2 pièces 38m² MARSEILLE 10ème

121 000 Honoraires charge vendeur

1 chambre Ascenseur

Description du bien

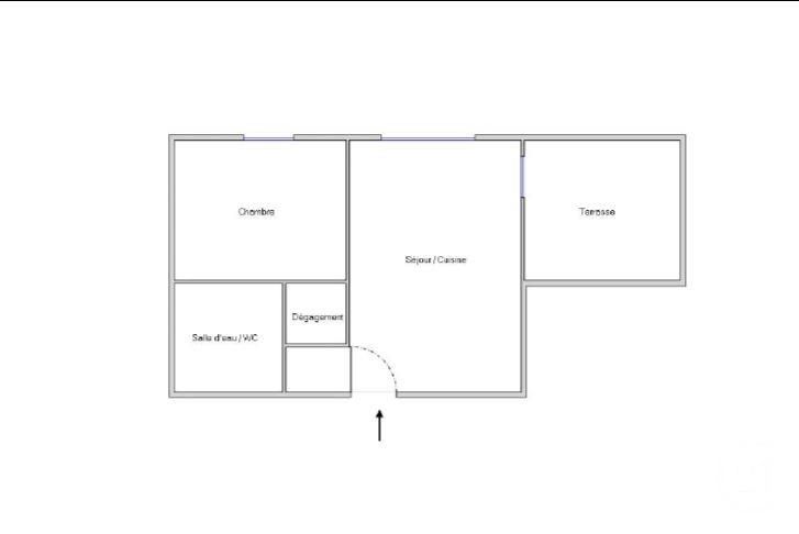
T2 Avenue de la Timone Limite13005/13010 arrondissement pour investissement déjà loué à 663 euros par mois charges comprise. Joli appartement en rez de chaussée surélevé, dans une résidence récente. Il est composé d'un séjour avec cuisine ouverte aménagée et équipée d'une plaque de cuisson et hotte, d'une terrasse spacieuse, une chambre et une salle d'eau avec sèche-serviette.
Proche des Facultés, accès A50 et commerces de proximité. Prix : 121000.0 euros, Honoraires charge vendeur. Copropriété :
Nb de lots : 40
Budget prévisionnel (dépenses courantes) : 1184.0 euros/an Montant estimé des dépenses annuelles d'énergie pour un usage standard entre 370.0 ¤ et 550.0 ¤ indexées aux années 2021, 2022, 2023 (abonnements compris). Bien proposé par Catherine SARROBERT EI, agent commercial (RSAC 385146832)

Etat des risques et pollutions

Les informations sur les risques auxquels ce bien est exposé sont disponibles sur le site Géorisques : www.georisques.gouv.fr.

Caractéristiques du bien

Composition du bien

  • Type d'habitation : Appartement
  • Cuisine : Type de cuisine Non communique
  • Nombre de pièce(s) : 2
  • Nombre de chambre(s) : 1

Aménagement du bien

Extérieur

  • Terrasse : Non
  • Balcon : Non

Partie Commune

  • Ascenseur : Oui
  • Surface habitable : 38 m²

Localisation du bien

MARSEILLE 10 (13010) , BOUCHES-DU-RHONE (13) - PROVENCE-ALPES-COTE-D-AZUR

Ce bien n'est pas géolocalisé, pour connaitre sa géolocalisation, merci de contacter l'agence.

Consommation énergétique

  • B (107 kWh/m² an)
    A (3 kgCO2/m².an)
    Plus d'info
    107
    3
    3
  • DPE réalisé après le 1er juillet 2021.
  • Entre 370 € TTC / an et 550 € TTC / an
    Non communiqué

Nos professionnels vous accompagnent

Contactez notre agence !

39 AVENUE SAINT JULIEN 13012 MARSEILLE 12

Appeler l’agence Tél : 04 91 34 92 00

* Champs obligatoires

Nous vous informons de l’existence de la liste d’opposition au démarchage téléphonique « BLOCTEL » sur laquelle vous pouvez vous inscrire (https://www.bloctel.gouv.fr).

En complétant le formulaire «CONTACTEZ NOTRE AGENCE », je reconnais expressément que je consens au traitement de mes données personnelles et que je dispose du droit de retirer mon consentement à tout moment en m'adressant à support@fnaim.fr.
En savoir plus sur la gestion de vos données et droits : consulter nos mentions légales, « article 5/ Données à caractère personnel ».

En envoyant ce message, vous acceptez les conditions d'utilisation du site. Plus d'infos