Fnaim.fr
Menu

Exclusivité
Réf. VAP110001243

Achat Appartement 2 pièces 43m² CAEN 14000

139 900 Honoraires charge vendeur

1 chambre Ascenseur Parking / Garage

Description du bien

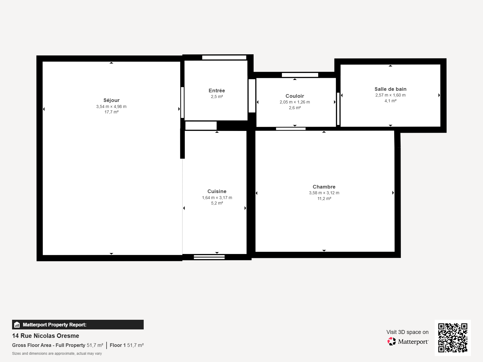
EN EXCLUSIVITE - CAEN - Quartier Beaulieu, Rue Nicolas Oresme, un appartement à vendre de 2 pièces principales de 43.93m2 comprenant une entrée avec placard, un séjour donnant sur un petit balcon, une cuisine ouverte sur le séjour aménagée, une chambre avec un placard, une salle de douches et un WC indépendant.
Un place de parking et une cave en sous-sol complètent ce bien.
Consommation d'énergie : D , Gaz à effet de serre : B

Montant estimé des dépenses annuelles d'énergie : 387 EUR. Estimation réalisée à partir des prix énergétiques de référence des années 2021, 2022 et 2023.
Quote part annuelle de charges: 1371.44EUR.

Prix du bien: 139 900EUR, honoraires à la charge du vendeur.
La visite virtuelle est disponible sur demande.
Les informations sur les risques auxquels ce bien est exposé sont disponibles sur le site georisques.gouv.fr.
Cabinet QUESNEE 02.31.34.08.50/06.08.15.49.74.

Etat des risques et pollutions

Les informations sur les risques auxquels ce bien est exposé sont disponibles sur le site Géorisques : www.georisques.gouv.fr.

Caractéristiques du bien

Composition du bien

  • Type d'habitation : Appartement
  • Cuisine : Américaine
  • Nombre de pièce(s) : 2
  • Nombre de chambre(s) : 1
  • Salles de bain : 1

Aménagement du bien

Extérieur

  • Terrasse : Non
  • Balcon : Non

Partie Commune

  • Ascenseur : Oui
  • Surface habitable : 43 m²
  • Parking : Oui

Informations sur la copropriété

  • Bien soumis au statut de la copropriété
  • Nombre de lots : 234
  • Quote part charges courantes : 1371 €/an
  • Procédure en cours : Non

Localisation du bien

CAEN (14000) , CALVADOS (14) - NORMANDIE

Consommation énergétique

  • D (184 kWh/m² an)
    B (7 kgCO2/m².an)
    Plus d'info
    184
    7
    7
  • DPE réalisé après le 1er juillet 2021.
  • Entre 387 € TTC / an et 387 € TTC / an
    01/01/2006

Nos professionnels vous accompagnent

Contactez notre agence !

42 avenue du Six-Juin 14000 CAEN

Appeler l’agence Tél : 06.61.98.46.07

* Champs obligatoires

Nous vous informons de l’existence de la liste d’opposition au démarchage téléphonique « BLOCTEL » sur laquelle vous pouvez vous inscrire (https://www.bloctel.gouv.fr).

En complétant le formulaire «CONTACTEZ NOTRE AGENCE », je reconnais expressément que je consens au traitement de mes données personnelles et que je dispose du droit de retirer mon consentement à tout moment en m'adressant à support@fnaim.fr.
En savoir plus sur la gestion de vos données et droits : consulter nos mentions légales, « article 5/ Données à caractère personnel ».

En envoyant ce message, vous acceptez les conditions d'utilisation du site. Plus d'infos