Fnaim.fr
Menu

Réf. VA6376-BIENALAMER

Achat Appartement 3 pièces 65m² PERROS GUIREC 22700

258 000 Honoraires charge acquéreur inclus

2 chambres Balcon Parking / Garage

Description du bien

L'agence 'MON BIEN A LA MER', spécialiste de l'immobilier neuf sur les Côtes Bretonnes, sélectionne auprès des promoteurs les meilleures opérations aux mêmes prix, sans commission d'agence. Bénéficiez de notre expertise indépendante, et de nos services (aide aux plans, maquette, drone, visite virtuelles). Nous vous présentons ce bien :

Nouvelle résidence RE2020 sur les hauteurs de Perros-Guirec.
Commerces, Ecole et complexe sportif KERABRAM : moins de 5 min à pied.
Plage et Port à 5 min en voiture / 10 min vélo.
Chauffage électrique, ballon thermodynamique, volets roulants électriques, douches à l'italienne.
Livraison fin 2027. Frais de notaire réduits.

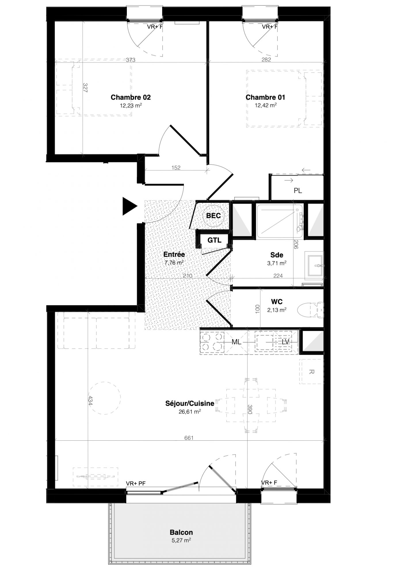
T3 situé au 1er étage de la résidence, exposition sud et double parking :
- Séjour 26m2 / entrée 7m2
- Deux chambres +12m2
- Wc séparés
- Salle d'eau.

Nous Consulter

Non soumis au DPE. Les informations sur les risques auxquels ce bien est exposé sont disponibles sur le site Géorisques : georisques.gouv.fr.

Votre conseiller MON BIEN A LA MER : Gérant - .fr MON BIEN A LA MER
Carte T CPI 2201 2018 000 025 040
RCP ACM IARD B1 7025278

Etat des risques et pollutions

Les informations sur les risques auxquels ce bien est exposé sont disponibles sur le site Géorisques : www.georisques.gouv.fr.

Caractéristiques du bien

Composition du bien

  • Type d'habitation : Appartement
  • Cuisine : Type de cuisine Non communique
  • Nombre de pièce(s) : 3
  • Nombre de chambre(s) : 2

Aménagement du bien

Extérieur

  • Terrasse : Non
  • Balcon : Oui

Partie Commune

  • Ascenseur : Non
  • Surface habitable : 65 m²
  • Parking : Oui

Localisation du bien

PERROS GUIREC (22700) , COTES-D'ARMOR (22) - BRETAGNE

Ce bien n'est pas géolocalisé, pour connaitre sa géolocalisation, merci de contacter l'agence.

Consommation énergétique

DPE non soumis
mention indiquée sous la responsabilité de l’agence immobilière

Nos professionnels vous accompagnent

Contactez notre agence !

23 Rue des Villeneuves Le Bignon 22400 MORIEUX

Appeler l’agence Tél : 0787285150

* Champs obligatoires

Nous vous informons de l’existence de la liste d’opposition au démarchage téléphonique « BLOCTEL » sur laquelle vous pouvez vous inscrire (https://www.bloctel.gouv.fr).

En complétant le formulaire «CONTACTEZ NOTRE AGENCE », je reconnais expressément que je consens au traitement de mes données personnelles et que je dispose du droit de retirer mon consentement à tout moment en m'adressant à support@fnaim.fr.
En savoir plus sur la gestion de vos données et droits : consulter nos mentions légales, « article 5/ Données à caractère personnel ».

En envoyant ce message, vous acceptez les conditions d'utilisation du site. Plus d'infos