Fnaim.fr
Menu

Exclusivité
Réf. 2797

Achat Maison 4 pièces 108m² ST PALAIS SUR MER 17420

487 500 Honoraires charge vendeur

3 chambres Jardin Parking / Garage

Description du bien

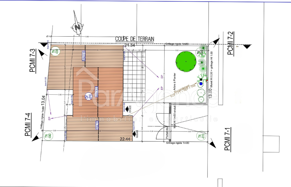
En exclusivité à Saint-Palais-sur-Mer, idéalement située à seulement 850 mètres du marché accessible par le charmant sentier du lac, cette maison contemporaine de 107,55 m2 offre un cadre de vie lumineux et confortable Conçue pour allier espace et fonctionnalité, elle bénéficie d'un style moderne et soigné, avec des prestations de qualité.
Rez-de-chaussée : Entrée avec placard, vaste séjour traversant de 46,42 m2 ouvert sur une terrasse de 22,50 m2, chambre avec salle d'eau et WC, cellier et garage de 18 m2 avec porte sectionnelle motorisée. Chauffage au sol par pompe à chaleur.
Étage : Palier desservant deux chambres avec placards, salle d'eau et WC, offrant un espace nuit indépendant et fonctionnel.
Livraison prévue fin 2026.
Le bien est implanté sur une parcelle close d'environ 285 m2. Honoraires d'agence à la charge du vendeur. En savoir plus sur nos honoraires : https://www.par-agence.fr/nos-honoraires/ Risques : www.georisques.gouv.fr

Etat des risques et pollutions

Les informations sur les risques auxquels ce bien est exposé sont disponibles sur le site Géorisques : www.georisques.gouv.fr.

Caractéristiques du bien

Composition du bien

  • Type d'habitation : Maison
  • Nombre de chambres : 3
  • Cuisine : Type de cuisine Non communique

Aménagement du bien

  • Cave : Non
  • Garage / Parking : Oui
    • Surface habitable : 108 m²
    • Parking : Oui

    Localisation du bien

    ST PALAIS SUR MER (17420) , CHARENTE-MARITIME (17) - NOUVELLE-AQUITAINE

    Ce bien n'est pas géolocalisé, pour connaitre sa géolocalisation, merci de contacter l'agence.

    Consommation énergétique

    DPE non soumis
    mention indiquée sous la responsabilité de l’agence immobilière

    Nos professionnels vous accompagnent

    Contactez notre agence !

    24 BOULEVARD DE LATTRE DE TASSIGNY 17200 ROYAN

    Appeler l’agence Tél : 05 46 22 10 00

    * Champs obligatoires

    Nous vous informons de l’existence de la liste d’opposition au démarchage téléphonique « BLOCTEL » sur laquelle vous pouvez vous inscrire (https://www.bloctel.gouv.fr).

    En complétant le formulaire «CONTACTEZ NOTRE AGENCE », je reconnais expressément que je consens au traitement de mes données personnelles et que je dispose du droit de retirer mon consentement à tout moment en m'adressant à support@fnaim.fr.
    En savoir plus sur la gestion de vos données et droits : consulter nos mentions légales, « article 5/ Données à caractère personnel ».

    En envoyant ce message, vous acceptez les conditions d'utilisation du site. Plus d'infos