Fnaim.fr
Menu

Réf. HSP7-AI2-4K2

Achat Appartement 2 pièces 44m² LA ROCHELLE 17000

204 500 Honoraires charge acquéreur inclus

1 chambre

Description du bien

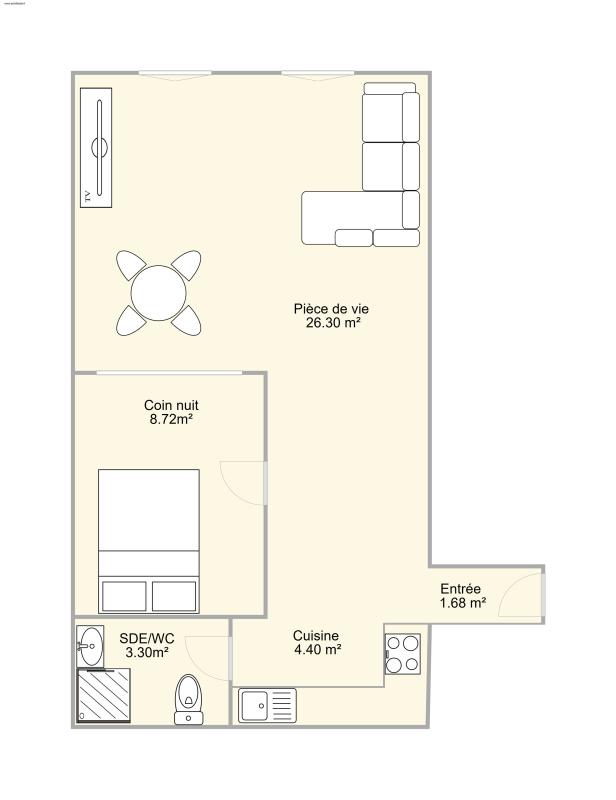
Idéalement situé à deux pas du marché central de La Rochelle, cet appartement de plus de 44 m² offre un cadre de vie agréable, au coeur d'un quartier recherché.

Il se compose d'un beau séjour lumineux, d'une cuisine équipée, d'un coin nuit bien délimité, ainsi que d'une salle d'eau avec WC. L'agencement fonctionnel permet une optimisation parfaite des espaces.

Ce bien conviendra parfaitement pour un investissement locatif, grâce à sa localisation privilégiée à proximité immédiate des commerces, transports et commodités.
Vendu loué.

A visiter sans tarder !
Référence agence : 7867

Etat des risques et pollutions

Les informations sur les risques auxquels ce bien est exposé sont disponibles sur le site Géorisques : www.georisques.gouv.fr.

Caractéristiques du bien

Composition du bien

  • Type d'habitation : Appartement
  • Cuisine : Simple
  • Nombre de pièce(s) : 2
  • Nombre de chambre(s) : 1

Aménagement du bien

Extérieur

  • Terrasse : Non
  • Balcon : Non

Partie Commune

  • Ascenseur : Non
  • Surface habitable : 44 m²

Localisation du bien

LA ROCHELLE (17000) , CHARENTE-MARITIME (17) - NOUVELLE-AQUITAINE

Ce bien n'est pas géolocalisé, pour connaitre sa géolocalisation, merci de contacter l'agence.

Consommation énergétique

  • B (97 kWh/m² an)
    A (3 kgCO2/m².an)
    Plus d'info
    97
    3
    3
  • DPE réalisé après le 1er juillet 2021.
  • Entre 390 € TTC / an et 560 € TTC / an
    Non communiqué

Nos professionnels vous accompagnent

Contactez notre agence !

22 RUE DU MINAGE 17000 LA ROCHELLE

Appeler l’agence Tél : 05 46 41 25 25

* Champs obligatoires

Nous vous informons de l’existence de la liste d’opposition au démarchage téléphonique « BLOCTEL » sur laquelle vous pouvez vous inscrire (https://www.bloctel.gouv.fr).

En complétant le formulaire «CONTACTEZ NOTRE AGENCE », je reconnais expressément que je consens au traitement de mes données personnelles et que je dispose du droit de retirer mon consentement à tout moment en m'adressant à support@fnaim.fr.
En savoir plus sur la gestion de vos données et droits : consulter nos mentions légales, « article 5/ Données à caractère personnel ».

En envoyant ce message, vous acceptez les conditions d'utilisation du site. Plus d'infos