Fnaim.fr
Menu

Achat Maison 5 pièces 119m² LATTES 34970

399 000 Honoraires charge vendeur

4 chambres Jardin Parking / Garage

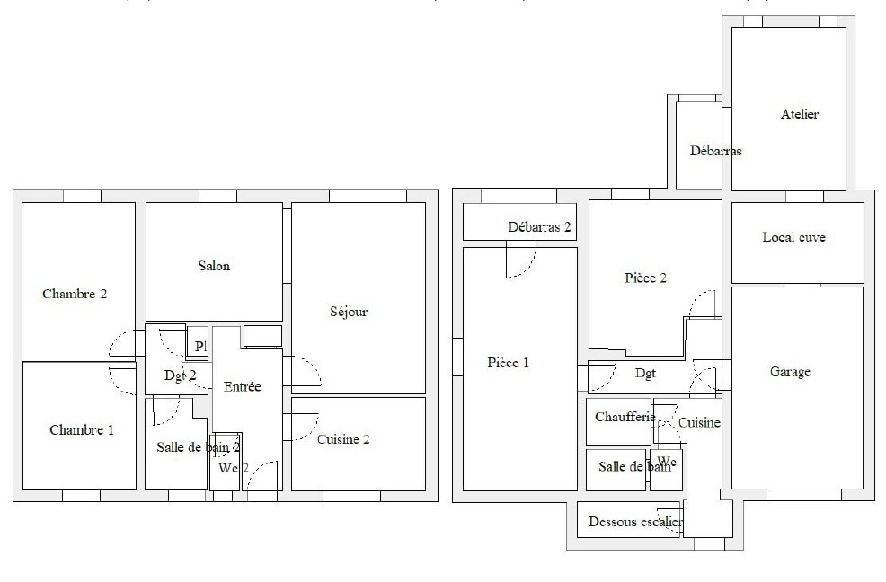
Description du bien

Au calme d'une impasse et idéal pour un projet de rénovation. Cette maison offre un beau volume de 119 m2 habitables sur une parcelle de 573 m2 (terrain piscinable).
Le bien se compose de :
- Une maison de 119 m2 (agencement à redistribuer).
- Un garage de 19 m2 et un atelier de 13 m2.
- Terrasse à l'étage de 15m2

L'état général vous fera partir d'une page blanche, vous permettra de repenser entièrement l'espace et de choisir vos prestations.

Les points forts :
- Beau potentiel de valorisation après travaux.
- Jardin bien proportionné laissant beaucoup d'espaces.
- double accès sur la parcelle

A proximité de toutes les commodités (écoles, commerces, bus).


Un audit énergétique détaillé est à votre disposition. Il chiffre précisément les optimisations possibles pour gagner en confort et réduire vos factures.


Prix du bien : 399 000 EUR Honoraires inclus à la charge du vendeur.
Taxe foncière : 2400 euros
Montant estimé des dépenses annuelles d'énergie pour un usage standard : entre 3800EUR et 5180EUR TTC / an. Date de référence des prix de l'énergie pour établir cette estimation : 12/01/2026.
Les informations sur les risques auxquels ce bien est exposé sont disponibles sur le site Géorisques : www.georisques.gouv.fr
ImmoMAPI Maurin Immobilier devient ImmoMAPI

Etat des risques et pollutions

Les informations sur les risques auxquels ce bien est exposé sont disponibles sur le site Géorisques : www.georisques.gouv.fr.

Caractéristiques du bien

Composition du bien

  • Type d'habitation : Maison
  • Nombre de chambres : 4
  • Nombre de salles de bain : 1
  • Cuisine : Type de cuisine Non communique

Aménagement du bien

  • Cave : Non
  • Garage / Parking : Oui
    • Surface habitable : 119 m²
    • Parking : Oui

    Localisation du bien

    LATTES (34970) , HERAULT (34) - OCCITANIE

    Ce bien n'est pas géolocalisé, pour connaitre sa géolocalisation, merci de contacter l'agence.

    Consommation énergétique

    • E (265 kWh/m² an)
      F (74 kgCO2/m².an)
      Plus d'info
      265
      74
      74
    • DPE réalisé après le 1er juillet 2021.
    • Entre 3800 € TTC / an et 5180 € TTC / an
      01/01/2026

    Nos professionnels vous accompagnent

    Contactez notre agence !

    122 rue du Lantissargues 34970 LATTES

    Appeler l’agence Tél : 04 67 277 006

    * Champs obligatoires

    Nous vous informons de l’existence de la liste d’opposition au démarchage téléphonique « BLOCTEL » sur laquelle vous pouvez vous inscrire (https://www.bloctel.gouv.fr).

    En complétant le formulaire «CONTACTEZ NOTRE AGENCE », je reconnais expressément que je consens au traitement de mes données personnelles et que je dispose du droit de retirer mon consentement à tout moment en m'adressant à support@fnaim.fr.
    En savoir plus sur la gestion de vos données et droits : consulter nos mentions légales, « article 5/ Données à caractère personnel ».

    En envoyant ce message, vous acceptez les conditions d'utilisation du site. Plus d'infos