Fnaim.fr
Menu

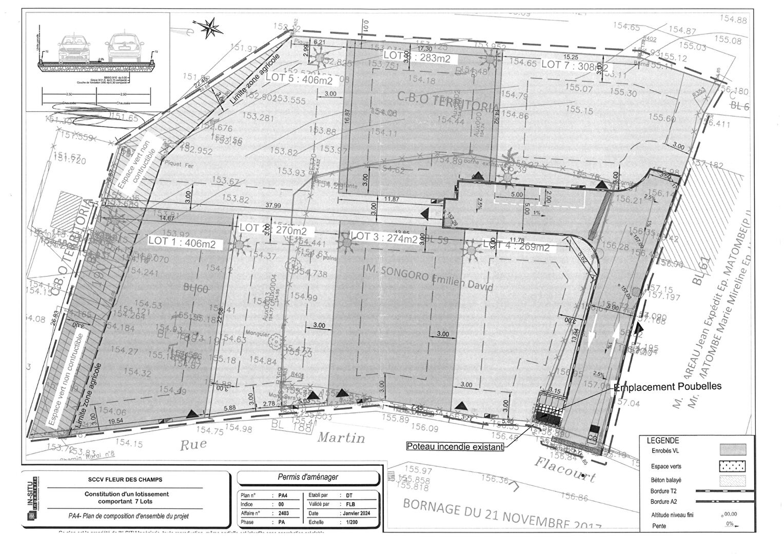
Achat Terrain 269m²

156 850 Honoraires charge acquéreur inclus : 6% TTC (147408 € hors honoraires)

Description du bien


Découvrez ce nouveau lotissement résidentiel situé à Sainte-Marie, dans un environnement calme et verdoyant, à proximité des commodités, des axes principaux et à seulement quelques minutes du centre-ville.

7 parcelles à bâtir, entièrement viabilisées, terrains plats allant de 269 m² à 406 m², idéales pour la construction de votre maison principale ou d'un projet locatif.
Les lots 5, 6 et 7 bénéficient d'une vue dégagée sur les champs de canne et la mer, offrant un cadre de vie paisible et agréable.
Livraison du lotissement : décembre 2025

Lot 1: 406m² 232 200Euro FAI
Lot 2: 270m² 157 400Euro FAI
Lot 3: 274m² 159 600Euro FAI
Lot 4: 269m² 156 850Euro FAI
Lot 5: 406m² 232 200Euro FAI
Lot 6: 283m² 155 650Euro FAI
Lot 7: 308m² 178 300Euro FAI

ZONE PLU UD
La hauteur maximale des constructions est limitée à:
- 8,00 mètres à l'égout du toit
- 11,00 mètres au faîtage
- 10,00 mètres à l'acrotère en cas de toiture-terrasse
Emprise au sol maximale : 50 % de l'unité foncière
Espace libre paysager : minimum 25 % de la surface du terrain, avec 1 arbre haute-tige par 100 m², au moins 1 arbre par lot
Perméabilité du sol : minimum 30 % de la parcelle

Pour plus de renseignements ou pour organiser une visite, contactez-nous au 0262 41 18 18 ou par mail à contact@prmi.re.

Agent commercial Benjamin SGRO 0692 36 11 15


Etat des risques et pollutions

Les informations sur les risques auxquels ce bien est exposé sont disponibles sur le site Géorisques : www.georisques.gouv.fr.

Caractéristiques du bien

Composition du bien

  • Type de bien : Terrain

Localisation du bien

Ce bien n'est pas géolocalisé, pour connaitre sa géolocalisation, merci de contacter l'agence.

Nos professionnels vous accompagnent

Contactez notre agence !

15/17 RUE LABOURDONNAIS 97400 ST DENIS

Appeler l’agence Tél : +262262411818

* Champs obligatoires

Nous vous informons de l’existence de la liste d’opposition au démarchage téléphonique « BLOCTEL » sur laquelle vous pouvez vous inscrire (https://www.bloctel.gouv.fr).

En complétant le formulaire «CONTACTEZ NOTRE AGENCE », je reconnais expressément que je consens au traitement de mes données personnelles et que je dispose du droit de retirer mon consentement à tout moment en m'adressant à support@fnaim.fr.
En savoir plus sur la gestion de vos données et droits : consulter nos mentions légales, « article 5/ Données à caractère personnel ».

En envoyant ce message, vous acceptez les conditions d'utilisation du site. Plus d'infos