Achat Appartement 2 pièces 47m² CAEN 14000
135 800 € Honoraires charge vendeur
1 chambre Balcon Ascenseur Parking / Garage

1 chambre Balcon Ascenseur Parking / Garage
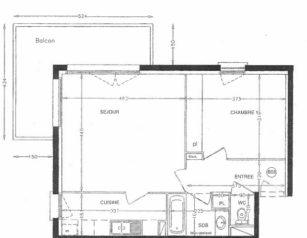
EN EXCLUSIVITE - CAEN NORD - Quartier Mémorial Résidence Les villas de Bellevue, un appartement à vendre loué de 2 pièces principales de 47.24m2 comprenant une entrée, un séjour donnant sur un grand balcon en angle, une cuisine indépendante, une chambre avec un grand placard, une salle de douches et un WC indépendant.
Un garage et une cave en sous-sol complètent ce bien.
Appartement actuellement loué 590EUR hc.
Consommation d'énergie : D (186kwh/an/m2), Gaz à effet de serre : D.
Montant estimé des dépenses annuelles d'énergie: entre 740EUR et 1040EUR. Estimation réalisée à partir des prix énergétiques de référence des années 2021.
Quote part annuelle de charges exercice 01/01/2024 au 31/12/2024: 1 311.57EUR.
Prix du bien: 135 800EUR, honoraires à la charge du vendeur.
La visite virtuelle est disponible sur demande.
Les informations sur les risques auxquels ce bien est exposé sont disponibles sur le site georisques.gouv.fr.
Cabinet QUESNEE 02.31.34.08.50/06.08.15.49.74.