Fnaim.fr
Menu

Visite virtuelle
Exclusivité
Réf. DOM26265

Achat Maison 6 pièces 205m² DOUVAINE 74140

685 000 Honoraires charge vendeur

5 chambres Parking / Garage

Description du bien

En exclusivité, Mickaël et Liberkeys vous proposent cette spacieuse maison familiale de 180 m² située à Douvaine, dans un lotissement résidentiel recherché, nichée sur un terrain arboré de 1262 m² avec bassin.

Le mot de l'agent : Profitez d'un cadre de vie "Zen" unique grâce à son magnifique extérieur agrémenté d'un étang à carpes Koï, tout en bénéficiant du confort d'une maison économe et chaleureuse avec sa cheminée fonctionnelle. Un équilibre rare entre nature et proximité des commodités.

Les atouts de ce bien :
-Beaux volumes : 180 m² habitable (205 m² au total) avec 5 chambres, dont 2 de plain-pied pour une accessibilité totale.
-Confort thermique : DPE C grâce à la pompe à chaleur, aux panneaux solaires et à la cheminée.
-Espaces de vie : Cuisine dinatoire de 24 m² et grand séjour
-Extérieur soigné : Vaste terrain de 1262 m² sans vis-à-vis, avec bassin d'ornement et cour pavée.
-Stationnement : Carport extérieur et nombreux espaces de stationnement.

Description détaillée :
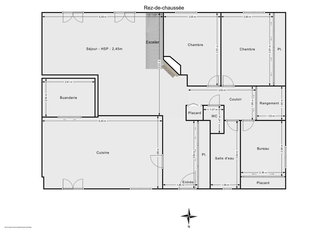
Au rez-de-chaussée, l'entrée distribue une grande cuisine indépendante de 24 m² et une pièce de vie lumineuse , réchauffée par une cheminée. Ce niveau permet une vie de plain-pied avec deux chambres (10 et 13 m²), une salle d'eau, un cellier et des toilettes.
À l'étage, une spacieuse mezzanine de 25 m², idéale pour un bureau ou une salle de jeux, dessert l'espace nuit. Vous y trouverez trois chambres supplémentaires (8 m², 11 m² et 17 m² avec dressing) ainsi qu'une grande salle de bain de 11 m².

Taxe foncière : 1 482 € par an.
Montant estimé des dépenses annuelles d'énergie pour un usage standard : entre 2 310 € et 3 210 € par an. Prix moyens des énergies indexés sur l'année 2023 (abonnements compris).
Ce bien vous plaît ? Visitez-le virtuellement en 3D sur le site de Liberkeys ou contactez directement votre conseiller. Ferreira Mickaël, agent commercial immatriculé au RSAC de Thonon-les-Bains sous le numéro 894 967 181. Référence annonce : DOM26265. Date de réalisation du diagnostic : 02/01/2026. Les honoraires sont à la charge du vendeur.
Les informations sur les risques auxquels ce bien est exposé sont disponibles sur le site Géorisques : https://www.georisques.gouv.fr

Etat des risques et pollutions

Les informations sur les risques auxquels ce bien est exposé sont disponibles sur le site Géorisques : www.georisques.gouv.fr.

Caractéristiques du bien

Composition du bien

  • Type d'habitation : Maison
  • Nombre de chambres : 5
  • Nombre de salles de bain : 1
  • Cuisine : Equipée

Aménagement du bien

  • Cave : Non
  • Garage / Parking : Oui
    • Surface habitable : 205 m²
    • Parking : Oui

    Localisation du bien

    DOUVAINE (74140) , HAUTE-SAVOIE (74) - AUVERGNE-RHÔNE-ALPES

    Consommation énergétique

    • C (165 kWh/m² an)
      B (4 kgCO2/m².an)
      Plus d'info
      165
      4
      4
    • DPE réalisé après le 1er juillet 2021.
    • Entre 2310 € TTC / an et 3210 € TTC / an
      Non communiqué

    Nos professionnels vous accompagnent

    Contactez notre agence !

    20 RUE DE MONTHOLON 75009 PARIS 09

    Appeler l’agence Tél : 06 08 78 38 36

    * Champs obligatoires

    Nous vous informons de l’existence de la liste d’opposition au démarchage téléphonique « BLOCTEL » sur laquelle vous pouvez vous inscrire (https://www.bloctel.gouv.fr).

    En complétant le formulaire «CONTACTEZ NOTRE AGENCE », je reconnais expressément que je consens au traitement de mes données personnelles et que je dispose du droit de retirer mon consentement à tout moment en m'adressant à support@fnaim.fr.
    En savoir plus sur la gestion de vos données et droits : consulter nos mentions légales, « article 5/ Données à caractère personnel ».

    En envoyant ce message, vous acceptez les conditions d'utilisation du site. Plus d'infos