Fnaim.fr
Menu

Visite virtuelle
Réf. VM1548-BIENALAMER

Achat Maison 5 pièces 127m² ST TROJAN LES BAINS 17370

665 000 Honoraires charge vendeur

4 chambres Jardin Parking / Garage

Description du bien

L'agence 'MON BIEN A LA MER', spécialiste de l'immobilier neuf en Bord de Mer, sélectionne auprès des promoteurs les meilleures opérations aux mêmes prix, sans commission d'agence. Bénéficiez de notre expertise indépendante, et de nos services (aide aux plans, maquette, drone, visite virtuelles). Nous vous présentons ce bien :

L'exception sur l'Ile d'Oléron :
Plein front de Mer, face au soleil levant au 8 bd de la Plage à SAINT TROJAN.

Une restauration d'un bâtiment historique de grand standing :
Seulement 22 appartements et 11 Maisons, dans un domaine paysager privé avec piscine chauffée.
Frais de notaire réduits.

Prestations de qualité, chauffe-eau thermodynamiques+panneaux rayonnants, ascenseur, parkings, caves, grande hauteur sous plafonds, parquets, domotique, placards terminés, carrelage Porcelanosa, appartements traversants? : tout a été pensé pour votre confort.

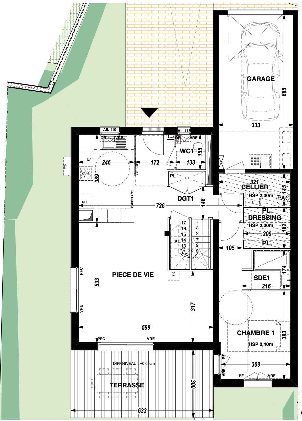
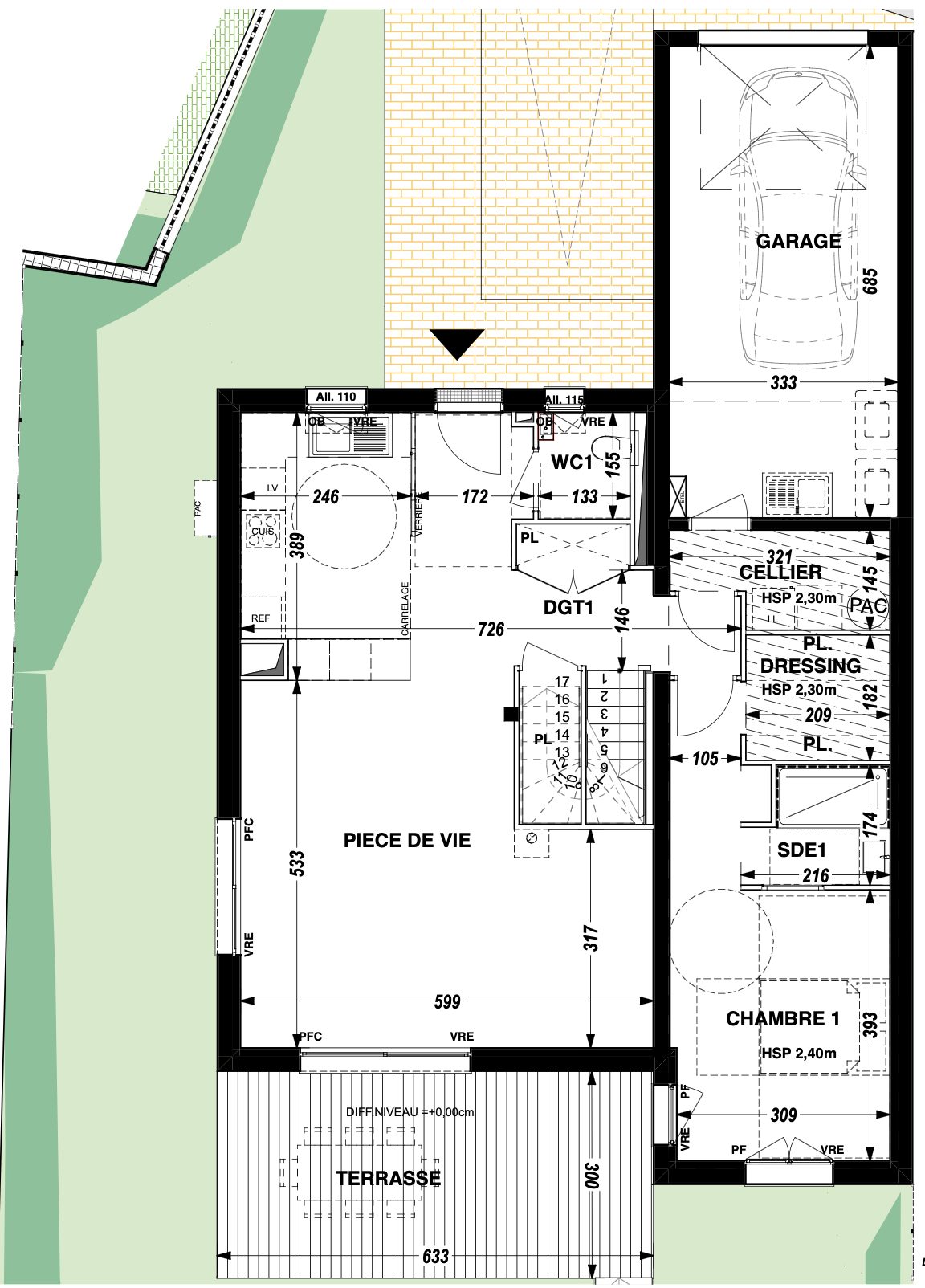
Maison 127m2 sur 413 m2 de terrain, entièrement finie (peintures, carrelage, parquet, jardin engazonné) sauf cuisine, comprenant :
- Au rdc : séjour expo sud-ouest+sud-est 43m2, suite parentale avec dressing, cellier, wc.
- A l'étage : 3 chambres, salle d'eau, salle de bains, wc séparés
- extérieur : terrasse 20m2, jardin clôturé, garage.

Livrée 3è trimestre 2027.
Plans intérieurs personnalisables.

Nous consulter

Honoraires à la charge du vendeur. Non soumis au DPE. Les informations sur les risques auxquels ce bien est exposé sont disponibles sur le site Géorisques : georisques.gouv.fr.

Votre conseiller MON BIEN A LA MER : Gérant - .fr MON BIEN A LA MER
Carte T CPI 2201 2018 000 025 040
RCP ACM IARD B1 7025278

Etat des risques et pollutions

Les informations sur les risques auxquels ce bien est exposé sont disponibles sur le site Géorisques : www.georisques.gouv.fr.

Caractéristiques du bien

Composition du bien

  • Type d'habitation : Maison
  • Nombre de chambres : 4
  • Nombre de salles de bain : 1
  • Cuisine : Type de cuisine Non communique

Aménagement du bien

  • Cave : Non
  • Garage / Parking : Oui
    • Surface habitable : 127 m²
    • Parking : Oui

    Localisation du bien

    ST TROJAN LES BAINS (17370) , CHARENTE-MARITIME (17) - NOUVELLE-AQUITAINE

    Ce bien n'est pas géolocalisé, pour connaitre sa géolocalisation, merci de contacter l'agence.

    Consommation énergétique

    DPE non soumis
    mention indiquée sous la responsabilité de l’agence immobilière

    Nos professionnels vous accompagnent

    Contactez notre agence !

    23 Rue des Villeneuves Le Bignon 22400 MORIEUX

    Appeler l’agence Tél : 0787285150

    * Champs obligatoires

    Nous vous informons de l’existence de la liste d’opposition au démarchage téléphonique « BLOCTEL » sur laquelle vous pouvez vous inscrire (https://www.bloctel.gouv.fr).

    En complétant le formulaire «CONTACTEZ NOTRE AGENCE », je reconnais expressément que je consens au traitement de mes données personnelles et que je dispose du droit de retirer mon consentement à tout moment en m'adressant à support@fnaim.fr.
    En savoir plus sur la gestion de vos données et droits : consulter nos mentions légales, « article 5/ Données à caractère personnel ».

    En envoyant ce message, vous acceptez les conditions d'utilisation du site. Plus d'infos