Fnaim.fr
Menu

Exclusivité
Réf. 251222-FMIMMOBILIER

Achat Maison 4 pièces 175m² BERCK 62600

148 000 Honoraires charge vendeur

3 chambres Balcon Parking / Garage

Description du bien

Située au sud du Littoral Côte d'Opale, à la limite de la Baie de Somme, dans la commune de Berck-sur-mer, connue pour sa qualité de vie à l'année comme pour sa station balnéaire prisée, à 2h de Paris et de Lille, cette maison de 175 m² habitable, à proximité immédiate de la mer, offre emplacement de choix pour un placement immobilier.

Conditions d'acquisition :
Viager Occupé au profit d'un homme de 70 ans,
Bouquet FAI: 148 000 ?
Rente mensuelle: 528 ?
Frais de notaire de l'ordre de 21 000 ? base valeur occupée.
Taxe foncière 2025: 2 568? dont 348 d'ordures ménagères.
Valeur vénale: 400 000 ?

Caractéristiques de la propriété :
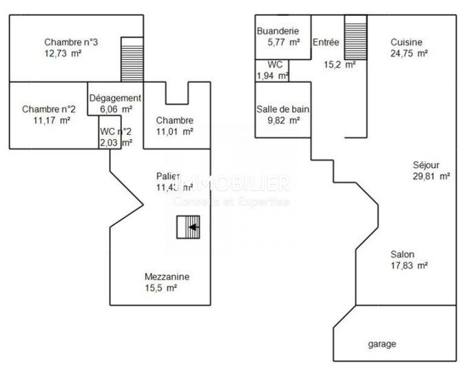
Maison d'architecte composé d'un hall d'entrée, d'un vaste séjour/salon avec cuisine ouverte de 72 m², une lingerie, une salle de bains avec baignoire et douche, des WC. L'étage, desservit par deux escaliers, offres deux grands espaces de bureaux avec balcon, trois chambres et un WC avec lavabo. Ce bien édifié sur une parcelle de 975m² est complété d'un rangement extérieur et possède deux places de stationnement extérieur.

Cette propriété est raccordée au réseau collectif et possède un chauffage central au gaz de ville.

Un investissement pour l'avenir à visiter sans tarder.

Bouquet 148 000 ?. Honoraires à la charge du vendeur. Classe énergie C, Classe climat C Montant estimé des dépenses annuelles d'énergie pour un usage standard : entre 2088.00 ? et 2824.00 ? sur les années 2021, 2022 et 2023 (abonnements compris). Les informations sur les risques auxquels ce bien est exposé sont disponibles sur le site Géorisques : georisques.gouv.fr.

Votre conseiller FM IMMOBILIER - Conseils & Expertise - : Gérante - Marie HEMBERT
Carte T CPI62072022000000002
RCP ALLIANZ

Etat des risques et pollutions

Les informations sur les risques auxquels ce bien est exposé sont disponibles sur le site Géorisques : www.georisques.gouv.fr.

Caractéristiques du bien

Composition du bien

  • Type d'habitation : Maison
  • Nombre de chambres : 3
  • Nombre de salles de bain : 1
  • Cuisine : 19

Aménagement du bien

  • Cave : Non
  • Garage / Parking : Oui
    • Surface habitable : 175 m²
    • Parking : Oui

    Localisation du bien

    BERCK (62600) , PAS-DE-CALAIS (62) - HAUTS-DE-FRANCE

    Ce bien n'est pas géolocalisé, pour connaitre sa géolocalisation, merci de contacter l'agence.

    Consommation énergétique

    • C (152 kWh/m² an)
      C (23 kgCO2/m².an)
      Plus d'info
      152
      23
      23
    • DPE réalisé après le 1er juillet 2021.
    • Entre 2088 € TTC / an et 2824 € TTC / an
      01/01/2021

    Nos professionnels vous accompagnent

    Contactez notre agence !

    530 Rue Joseph Daubrège 62155 MERLIMONT

    Appeler l’agence Tél : 0608762347

    * Champs obligatoires

    Nous vous informons de l’existence de la liste d’opposition au démarchage téléphonique « BLOCTEL » sur laquelle vous pouvez vous inscrire (https://www.bloctel.gouv.fr).

    En complétant le formulaire «CONTACTEZ NOTRE AGENCE », je reconnais expressément que je consens au traitement de mes données personnelles et que je dispose du droit de retirer mon consentement à tout moment en m'adressant à support@fnaim.fr.
    En savoir plus sur la gestion de vos données et droits : consulter nos mentions légales, « article 5/ Données à caractère personnel ».

    En envoyant ce message, vous acceptez les conditions d'utilisation du site. Plus d'infos