Fnaim.fr
Menu

Acheter

Exclusivité
Réf. 18035

Achat Appartement 4 pièces 80m² CHENOVE 21300

197 400 Honoraires charge acquéreur inclus : 7.5% TTC (183627 € hors honoraires)

3 chambres

Description du bien

Exclusivité - Appartement 4 pièces en rez-de-jardin, lumineux et fonctionnel avec terrain 620 m² à CHENOVE (le vieux CHENOVE)

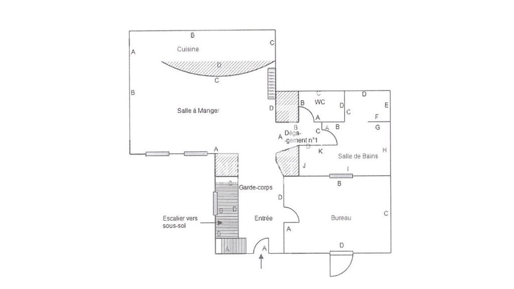
Situé dans un ensemble immobilier calme, cet appartement de 80,44 m² loi Carrez développe une implantation au rez-de-chaussée et en sous-sol offrant une belle continuité de volumes. Cuisine aménagée ouverte sur la pièce de vie principale de 32 m², bénéficie d'une belle lumière naturelle et d'une cheminée, créant un cadre chaleureux propice aux moments conviviaux, une salle de bains avec douche et baignoire, wc séparés.

L'agencement se compose, d'une entrée desservant la salle à manger, la cuisine et un bureau de 7,65 m² adapté au télétravail ou à un coin bibliothèque. Côté nuit, situées au niveau inférieur, deux chambres d'environ 10 m² et 9,94 m².

Annexes : un garage de 27 m² et un appentis de 22 m², offrant de réelles possibilités de stockage ou d'atelier.
Jardin 620 m².

L'environnement proche facilite la vie quotidienne : à proximité d'un collège et des commodités, l'emplacement est pratique pour une famille ou pour des occupants cherchant la proximité des services.

L'ensemble de l'immeuble dispose de tantièmes 220/1000èmes des parties communes générales et des charges communes générales et 182/1000èmes des charges communes spéciales aux bâtiments. Pas de procédure en cours. Syndic bénévole. Taxe foncière 2025 : 1 202 €.

Pour découvrir cet appartement et ses annexes contacter nous afin de convenir d'une visite.
A visiter sans tarder !!

Les informations sur les risques auxquels ce bien est exposé sont disponibles sur le site Géorisques : www.georisques.gouv.fr

Etat des risques et pollutions

Les informations sur les risques auxquels ce bien est exposé sont disponibles sur le site Géorisques : www.georisques.gouv.fr.

Caractéristiques du bien

Composition du bien

  • Type d'habitation : Appartement
  • Cuisine : 337
  • Nombre de pièce(s) : 4
  • Nombre de chambre(s) : 3
  • Salles de bain : 1

Aménagement du bien

Extérieur

  • Terrasse : Non
  • Balcon : Non

Partie Commune

  • Ascenseur : Non
  • Surface habitable : 80 m²

Informations sur la copropriété

  • Bien soumis au statut de la copropriété
  • Nombre de lots : 6
  • Quote part charges courantes : 201 €/an
  • Procédure en cours : Non

Localisation du bien

CHENOVE (21300) , COTE-D'OR (21) - BOURGOGNE-FRANCHE-COMTÉ

Consommation énergétique

  • D (212 kWh/m² an)
    D (43 kgCO2/m².an)
    Plus d'info
    212
    43
    43
  • DPE réalisé après le 1er juillet 2021.
  • Entre 1627 € TTC / an et 2201 € TTC / an
    01/01/2021

Nos professionnels vous accompagnent

Contactez notre agence !

1 RUE GRANGE FRANGY 71100 CHALON SUR SAONE

Appeler l’agence Tél : 03 80 30 63 03

* Champs obligatoires

Nous vous informons de l’existence de la liste d’opposition au démarchage téléphonique « BLOCTEL » sur laquelle vous pouvez vous inscrire (https://www.bloctel.gouv.fr).

En complétant le formulaire «CONTACTEZ NOTRE AGENCE », je reconnais expressément que je consens au traitement de mes données personnelles et que je dispose du droit de retirer mon consentement à tout moment en m'adressant à support@fnaim.fr.
En savoir plus sur la gestion de vos données et droits : consulter nos mentions légales, « article 5/ Données à caractère personnel ».

En envoyant ce message, vous acceptez les conditions d'utilisation du site. Plus d'infos