Fnaim.fr
Menu

Acheter

Réf. AT7414BD

Achat Terrain 217m²

232 000 Honoraires charge vendeur

Description du bien


Emplacement très recherché : "Quartier pêcheur" Terre-Sainte !

Résidentiel et calme, proche de la promenade des Alizés, de la plage, des restaurants, des écoles et bien sûr du centre ville de Saint-Pierre !
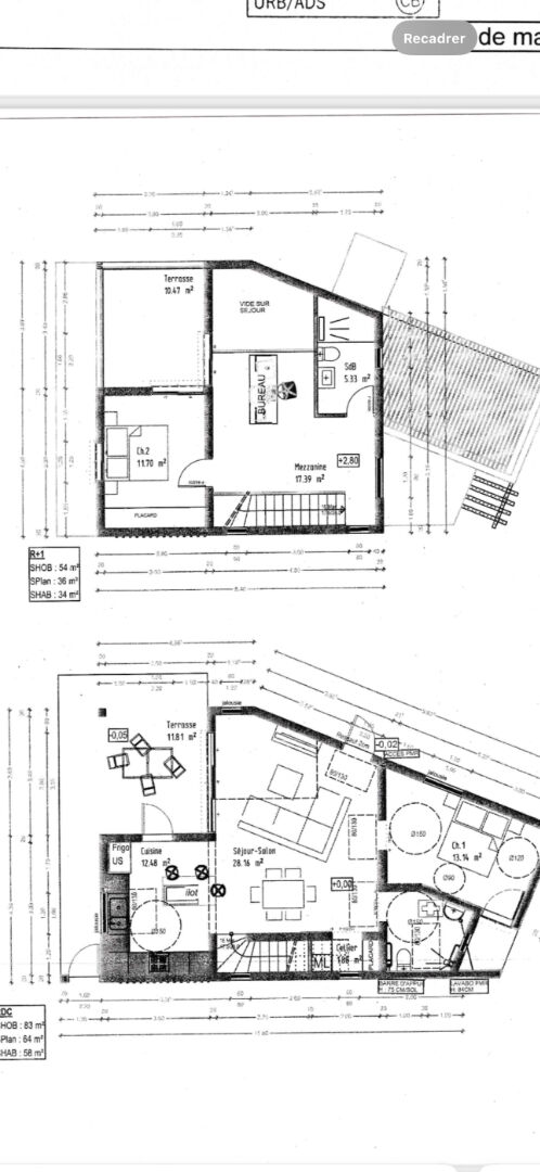
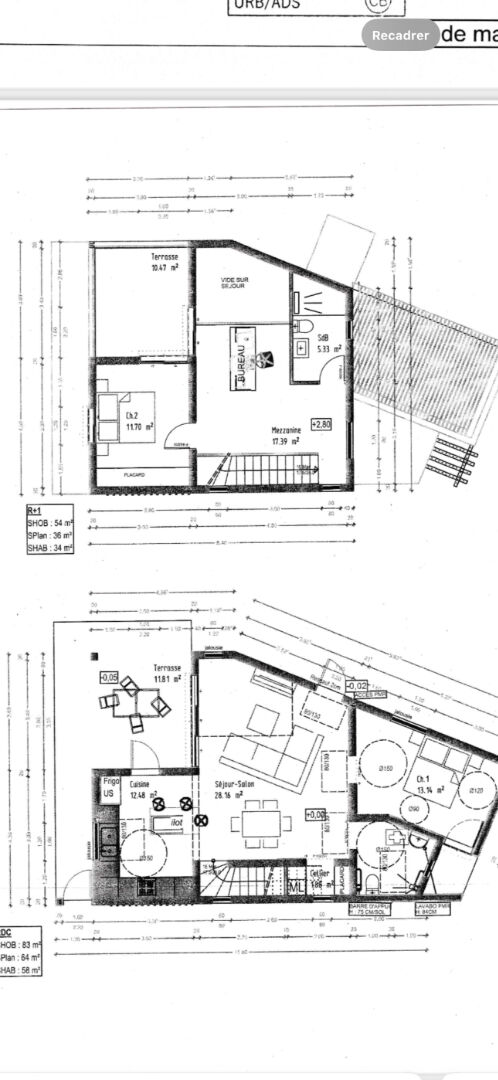
Terrain de 217 m2 : plat, nu, à bâtir.

Celui-ci bénéficie déjà d'un permis de construire obtenu en 2022.
Pour y édifier une maison individuelle de 92 m2 (habitable) de type R+1.
Voir plan + photos.

-- IDEAL POUR UNE RESIDENCE PRINCIPALE / SECONDAIRE / LOCATION SAISONNIERE --

Informations complémentaires :
- borné (via géomètre)
- non viabilisé (mais raccordements proches y compris au tout à l'égout)
- non clôturé
-exposition (nord)

Ps : pas de copropriété, pas de lotissement et pas de servitude !

Visite possible avec un spécialiste de Saint-Pierre : Bruno Descontus.
Tél : 0262 41 18 18
Mail : contact@prmi.re

Honoraires à la charge du vendeur.
Bien non soumis au DPE.
Les informations sur les risques naturels auxquels ce bien peut-être exposé sont disponibles sur le site : georisques.gouv.fr


Etat des risques et pollutions

Les informations sur les risques auxquels ce bien est exposé sont disponibles sur le site Géorisques : www.georisques.gouv.fr.

Caractéristiques du bien

Composition du bien

  • Type de bien : Terrain

Localisation du bien

Ce bien n'est pas géolocalisé, pour connaitre sa géolocalisation, merci de contacter l'agence.

Nos professionnels vous accompagnent

Contactez notre agence !

15/17 RUE LABOURDONNAIS 97400 ST DENIS

Appeler l’agence Tél : +262262411818

* Champs obligatoires

Nous vous informons de l’existence de la liste d’opposition au démarchage téléphonique « BLOCTEL » sur laquelle vous pouvez vous inscrire (https://www.bloctel.gouv.fr).

En complétant le formulaire «CONTACTEZ NOTRE AGENCE », je reconnais expressément que je consens au traitement de mes données personnelles et que je dispose du droit de retirer mon consentement à tout moment en m'adressant à support@fnaim.fr.
En savoir plus sur la gestion de vos données et droits : consulter nos mentions légales, « article 5/ Données à caractère personnel ».

En envoyant ce message, vous acceptez les conditions d'utilisation du site. Plus d'infos