Fnaim.fr
Menu

Achat Appartement 2 pièces 41m² NANTES 44100

152 000 Honoraires charge acquéreur inclus : 7% TTC (141299 € hors honoraires)

1 chambre Balcon Ascenseur Parking / Garage

Description du bien


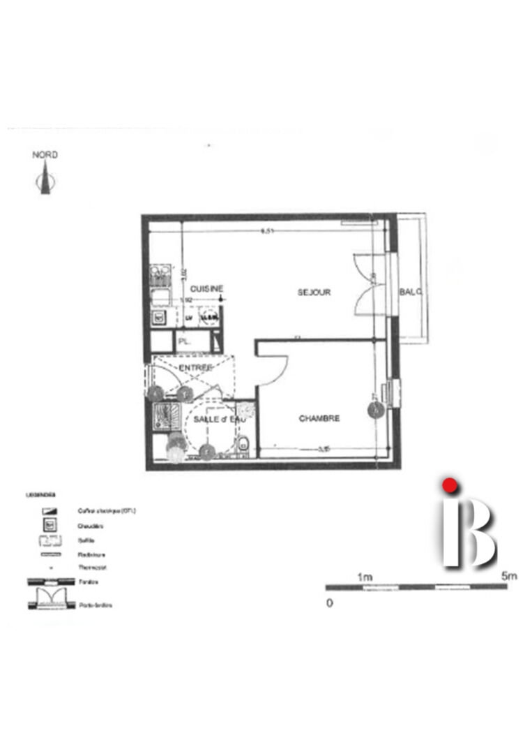
Dans le quartier prisé Beauséjour Longchamp, venez découvrir ce bel appartement de type 2, situé au 3ème étage d'une résidence récente et sécurisée (2016), avec ascenseur.
D'une superficie bien agencée, ce T2 lumineux se compose d'un séjour avec cuisine ouverte, donnant sur un agréable balcon, d'une chambre confortable, d'une salle d'eau moderne avec WC.
Vous bénéficierez également d'un stationnement privatif sécurisé et PMR.
A proximité immédiate des commerces
Accès à pied au tram ligne 3, Chronobus, écoles et commodités
Emplacement idéal pour vivre ou investir dans un secteur dynamique, parfaitement desservi par les transports.
À découvrir sans tarder.

Etat des risques et pollutions

Les informations sur les risques auxquels ce bien est exposé sont disponibles sur le site Géorisques : www.georisques.gouv.fr.

Caractéristiques du bien

Composition du bien

  • Type d'habitation : Appartement
  • Cuisine : Type de cuisine Non communique
  • Nombre de pièce(s) : 2
  • Nombre de chambre(s) : 1

Aménagement du bien

Extérieur

  • Terrasse : Non
  • Balcon : Oui

Partie Commune

  • Ascenseur : Oui
  • Surface habitable : 41 m²
  • Parking : Oui

Informations sur la copropriété

  • Bien soumis au statut de la copropriété
  • Nombre de lots : 96
  • Quote part charges courantes : 1300 €/an
  • Procédure en cours : Non

Localisation du bien

NANTES (44100) , LOIRE-ATLANTIQUE (44) - PAYS-DE-LA-LOIRE

Ce bien n'est pas géolocalisé, pour connaitre sa géolocalisation, merci de contacter l'agence.

Consommation énergétique

  • C (87 kWh/m² an)
    C (15 kgCO2/m².an)
    Plus d'info
    87
    15
    15
  • DPE réalisé après le 1er juillet 2021.
  • Entre 410 € TTC / an et 580 € TTC / an
    Non communiqué

Nos professionnels vous accompagnent

Contactez notre agence !

4 BOULEVARD DU MASSACRE 44800 ST HERBLAIN

Appeler l’agence Tél : 0240767311

* Champs obligatoires

Nous vous informons de l’existence de la liste d’opposition au démarchage téléphonique « BLOCTEL » sur laquelle vous pouvez vous inscrire (https://www.bloctel.gouv.fr).

En complétant le formulaire «CONTACTEZ NOTRE AGENCE », je reconnais expressément que je consens au traitement de mes données personnelles et que je dispose du droit de retirer mon consentement à tout moment en m'adressant à support@fnaim.fr.
En savoir plus sur la gestion de vos données et droits : consulter nos mentions légales, « article 5/ Données à caractère personnel ».

En envoyant ce message, vous acceptez les conditions d'utilisation du site. Plus d'infos