Fnaim.fr
Menu

Acheter

Visite virtuelle
Exclusivité
Réf. DOM27003

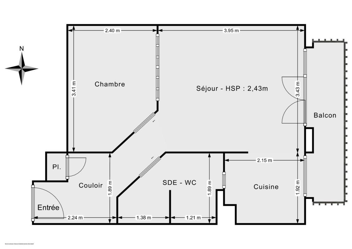
Achat Appartement 2 pièces 34m² CAMBO LES BAINS 64250

189 000 Honoraires charge acquéreur inclus : 5,3% TTC (179504 € hors honoraires)

1 chambre Balcon

Description du bien

Liberkeys vous propose en exclusivité ce charmant appartement de 34,76 m² (loi Carrez) situé à Cambo-les-Bains, une ville réputée pour sa douceur de vivre au coeur du Pays Basque.

L'entrée distribue un séjour lumineux ouvrant sur un agréable balcon, idéal pour savourer vos moments de détente et profiter d'une belle exposition au soleil.

La cuisine américaine optimise l'espace et le rend convivial, parfait pour recevoir ou cuisiner en toute simplicité.
L'espace nuit vous offre un cocon douillet, complétée par une salle de bains moderne et des toilettes pour plus de confort au quotidien.

Vous apprécierez le calme de la résidence, à seulement quelques pas des commerces, des célèbres thermes de Cambo-les-Bains, des espaces verts et de toutes les commodités essentielles. La présence d'une cave est un réel atout pour plus de rangement.

DPE projetté avec amélioration jusqu'à la lettre A si besoin !

Côté pratique : copropriété bien entretenue avec des charges mensuelles de 77 € et une taxe foncière de 533 €.

Montant estimé des dépenses annuelles d'énergie pour un usage standard : entre 680 € et 950 € par an. Prix moyens des énergies indexés sur l'année 2021 (abonnements compris).

Ce bien vous plaît ? Visitez-le virtuellement en 3D sur le site de Liberkeys ou contactez directement votre conseiller. Gravaud Florian, agent commercial immatriculé au RSAC de Bayonne sous le numéro 979 458 239. Référence annonce : DOM27003. Date de réalisation du diagnostic : 14/11/2025. Les honoraires sont à la charge de l'acheteur.

Etat des risques et pollutions

Les informations sur les risques auxquels ce bien est exposé sont disponibles sur le site Géorisques : www.georisques.gouv.fr.

Caractéristiques du bien

Composition du bien

  • Type d'habitation : Appartement
  • Cuisine : 19
  • Nombre de pièce(s) : 2
  • Nombre de chambre(s) : 1
  • Salles de bain : 1

Aménagement du bien

Extérieur

  • Terrasse : Non
  • Balcon : Oui

Partie Commune

  • Ascenseur : Non
  • Surface habitable : 34 m²

Informations sur la copropriété

  • Bien soumis au statut de la copropriété
  • Nombre de lots : 68
  • Quote part charges courantes : 924 €/an
  • Procédure en cours : Non

Localisation du bien

CAMBO LES BAINS (64250) , PYRENEES-ATLANTIQUES (64) - NOUVELLE-AQUITAINE

Consommation énergétique

  • D (229 kWh/m² an)
    B (7 kgCO2/m².an)
    Plus d'info
    229
    7
    7
  • DPE réalisé après le 1er juillet 2021.
  • Entre 680 € TTC / an et 950 € TTC / an
    Non communiqué

Nos professionnels vous accompagnent

Contactez notre agence !

20 RUE DE MONTHOLON 75009 PARIS 09

Appeler l’agence Tél : 07 86 83 33 43

* Champs obligatoires

Nous vous informons de l’existence de la liste d’opposition au démarchage téléphonique « BLOCTEL » sur laquelle vous pouvez vous inscrire (https://www.bloctel.gouv.fr).

En complétant le formulaire «CONTACTEZ NOTRE AGENCE », je reconnais expressément que je consens au traitement de mes données personnelles et que je dispose du droit de retirer mon consentement à tout moment en m'adressant à support@fnaim.fr.
En savoir plus sur la gestion de vos données et droits : consulter nos mentions légales, « article 5/ Données à caractère personnel ».

En envoyant ce message, vous acceptez les conditions d'utilisation du site. Plus d'infos