Fnaim.fr
Menu

Exclusivité
Réf. TAPP955083

Achat Appartement 2 pièces 46m² NICE 06200

200 000 Honoraires charge vendeur

1 chambre Balcon Ascenseur Parking / Garage

Description du bien

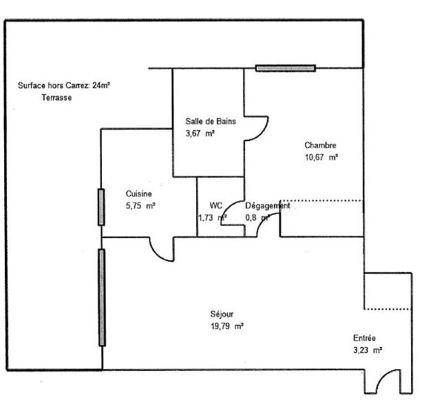
Sainte-Marguerite - Spécial Investisseur ! - Idéal investisseur : Découvrez ce bien parfaitement adapté à un projet locatif- Bas Sainte-Marguerite / Eucalyptus, 2 pièces vendu loué (801,52 € + 105 € de charges), offrant une rentabilité brute attractive. Ce logement est lumineux, il bénéficie d'une grande terrasse d'angle 24m², un double vitrage , résidence sécurisée, proximité des écoles, commerces et transports, parking sous-sol, cave. A rafraichir. Exclusivité de notre service gestion locative ! Pas d'incident de paiement. Bail non meublé .
Le bail vide est en date du 15/02/2012. Pour une tranquillité totale, profitez de notre service de gestion locative clé en main, avec sécurisation des loyers et accompagnement personnalisé. Investissez en toute confiance et optimisez votre patrimoine dès aujourd'hui. Le bien est soumis au statut de la copropriété , la copropriété comporte 333 lots , la quote-part budget prévisionnel (dépenses courantes) est de 1 794,00 euros/an.
Honoraires à la charge du vendeur.
Vous pouvez consulter les barèmes d'honoraires à l'adresse suivante : https://www.citya.com/agences-immobilieres/nice-06088/148 . Montant estimé des dépenses annuelles d'énergie pour un usage standard : entre 575 et 777 euros. Prix moyens des énergies indexés en 2021. Les informations sur les risques auxquels ce bien est exposé sont disponibles sur le site Géorisques : https://www.georisques.gouv.fr

Etat des risques et pollutions

Les informations sur les risques auxquels ce bien est exposé sont disponibles sur le site Géorisques : www.georisques.gouv.fr.

Caractéristiques du bien

Composition du bien

  • Type d'habitation : Appartement
  • Cuisine : Type de cuisine Non communique
  • Nombre de pièce(s) : 2
  • Nombre de chambre(s) : 1
  • Salles de bain : 1

Aménagement du bien

Extérieur

  • Terrasse : Non
  • Balcon : Oui

Partie Commune

  • Ascenseur : Oui
  • Surface habitable : 46 m²
  • Parking : Oui

Informations sur la copropriété

  • Bien soumis au statut de la copropriété
  • Nombre de lots : 333
  • Quote part charges courantes : 1794 €/an
  • Procédure en cours : Non

Localisation du bien

NICE (06200) , ALPES-MARITIMES (06) - PROVENCE-ALPES-COTE-D-AZUR

Consommation énergétique

  • D (185 kWh/m² an)
    A (5 kgCO2/m².an)
    Plus d'info
    185
    5
    5
  • DPE réalisé après le 1er juillet 2021.
  • Entre 575 € TTC / an et 777 € TTC / an
    01/01/2021

Nos professionnels vous accompagnent

Contactez notre agence !

18, rue de l'Hôtel des Postes 06000 NICE

Appeler l’agence Tél : 04 92 47 76 80

* Champs obligatoires

Nous vous informons de l’existence de la liste d’opposition au démarchage téléphonique « BLOCTEL » sur laquelle vous pouvez vous inscrire (https://www.bloctel.gouv.fr).

En complétant le formulaire «CONTACTEZ NOTRE AGENCE », je reconnais expressément que je consens au traitement de mes données personnelles et que je dispose du droit de retirer mon consentement à tout moment en m'adressant à support@fnaim.fr.
En savoir plus sur la gestion de vos données et droits : consulter nos mentions légales, « article 5/ Données à caractère personnel ».

En envoyant ce message, vous acceptez les conditions d'utilisation du site. Plus d'infos