Fnaim.fr
Menu

Acheter

Réf. W-02UCS0

Achat Appartement 3 pièces 83m² PARIS 4ème

1 350 000 Honoraires charge acquéreur inclus : 3.9% TTC (1299951 € hors honoraires)

1 chambre Balcon Ascenseur

Description du bien

Engel & Völkers vous présente une opportunité rare : un lumineux trois pièces de 82,78 m² Carrez, accessible par ascenseur, situé au 4? étage d'un bel immeuble sécurisé avec gardien. Ce bien doté d'un balcon bénéficie d'une orientation Sud-Ouest, offrant une vue dégagée sur la Seine et l'Île Saint-Louis.

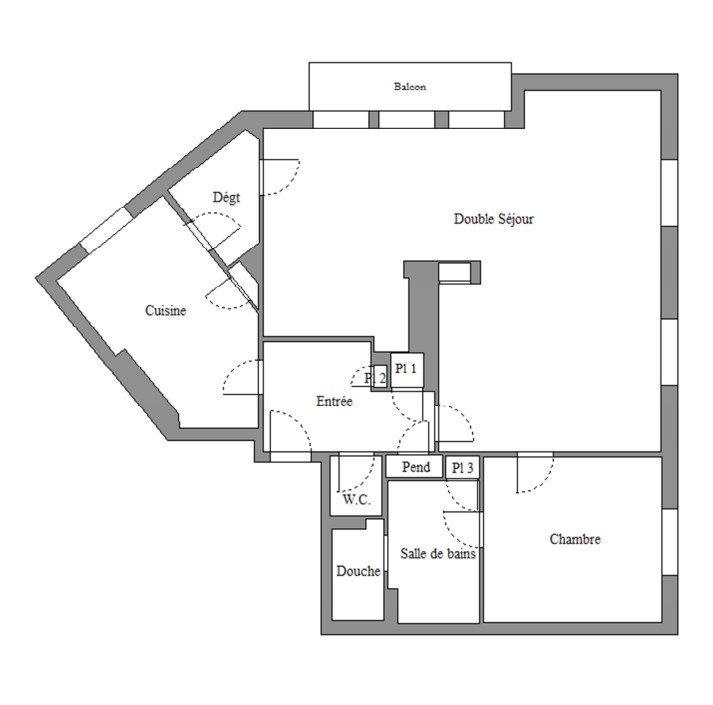
Cet appartement séduit par son plan modulable et ses volumes généreux : une entrée, un double séjour de 43 m² baigné de lumière, une cuisine avec espace repas, une chambre avec sa salle de bains attenante et un toilette séparé.

La création d'une seconde chambre et également d'une salle de bains supplémentaire, est aisément envisageable, permettant de repenser les espaces pour concevoir un lieu de vie unique.

Une cave complète l'ensemble.

Ce bien à rénover offre la possibilité de révéler tout son caractère et de le transformer en une adresse d'exception au coeur de Paris.

DPE : D/207
GES : D/43
Estimation des coûts annuels d'énergie du logement : 970 € et 1 370 €
Copropriété de 55 lots
Charges annuelles moyennes : 3100€
Procédure en cours : non
Honoraires de transaction 3,85% TTC à la charge de l'acquéreur
Prix net vendeur : 1 300 000 €

Les informations sur les risques auxquels ce bien est exposé sont disponibles sur le site Géorisques : www.georisques.gouv.fr
Quartier historique du centre parisien, le quartier de l'Arsenal doit son nom à l'Arsenal du Roi érigé au XVIème siècle, maintenant devenu une bibliothèque. À la croisée du Marais et du quartier de Bastille, il se présente aujourd'hui comme un quartier familial, où règne une ambiance de village.

En pleine dynamisation, il abrite nombre de galeries et de restaurants. Proche des lignes métros 7 et 1, il est idéalement desservi. Sectorisation Collège Charlemagne et École Massillon.

Etat des risques et pollutions

Les informations sur les risques auxquels ce bien est exposé sont disponibles sur le site Géorisques : www.georisques.gouv.fr.

Caractéristiques du bien

Composition du bien

  • Type d'habitation : Appartement
  • Cuisine : 337
  • Nombre de pièce(s) : 3
  • Nombre de chambre(s) : 1
  • Salles de bain : 1

Aménagement du bien

Extérieur

  • Terrasse : Non
  • Balcon : Oui

Partie Commune

  • Ascenseur : Oui
  • Surface habitable : 83 m²

Localisation du bien

PARIS 04 (75004) , PARIS (75) - ILE-DE-FRANCE

Ce bien n'est pas géolocalisé, pour connaitre sa géolocalisation, merci de contacter l'agence.

Consommation énergétique

  • D (207 kWh/m² an)
    D (43 kgCO2/m².an)
    Plus d'info
    207
    43
    43
  • DPE réalisé après le 1er juillet 2021.
  • Entre 970 € TTC / an et 1370 € TTC / an
    01/01/2021

Nos professionnels vous accompagnent

Contactez notre agence !

170 RUE DU FAUBOURG SAINT-HONORE 75008 PARIS 08

Appeler l’agence Tél : 01 59 30 20 26

* Champs obligatoires

Nous vous informons de l’existence de la liste d’opposition au démarchage téléphonique « BLOCTEL » sur laquelle vous pouvez vous inscrire (https://www.bloctel.gouv.fr).

En complétant le formulaire «CONTACTEZ NOTRE AGENCE », je reconnais expressément que je consens au traitement de mes données personnelles et que je dispose du droit de retirer mon consentement à tout moment en m'adressant à support@fnaim.fr.
En savoir plus sur la gestion de vos données et droits : consulter nos mentions légales, « article 5/ Données à caractère personnel ».

En envoyant ce message, vous acceptez les conditions d'utilisation du site. Plus d'infos