Fnaim.fr
Menu

Réf. 429941CDEF

Achat Appartement 2 pièces 35m² LILLE 59000

158 000 Honoraires charge acquéreur inclus : 5.3% TTC (149579 € hors honoraires)

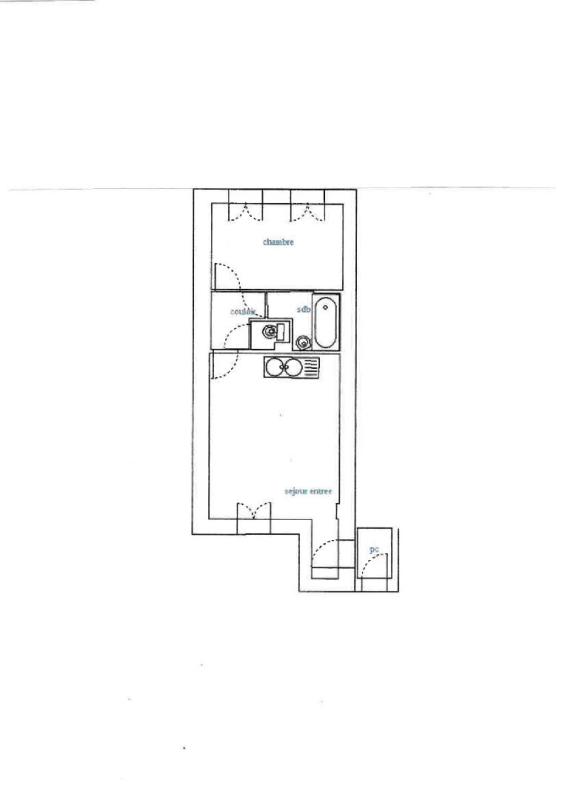
1 chambre

Description du bien

Découvrez ce charmant appartement en cours de rénovation. idéalement situé au coeur du quartier de Wazemmes, rue des sarrazins, à proximité des commerces, transports et du célèbre marché.

Descriptif :

Pièce de vie parqueté offrant un bel espace de détente avec cuisine ouverte équipée. ouverture avec porte fenêtre sur une cour à aménager (photo virtuelle dans le diaporama)
Chambre séparée au calme
Salle de bains équipée d'une douche
WC suspendu indépendants
Surface de 35,5M²

Appartement rénové avec goût, alliant charme et confort
Copropriété de 5 lots

Parfait pour premier achat ou investisseur.

Prix: 158 000 euros dont 8000 euros d'honoraires soit 150 000 euros net vendeur.

DPE: C GES: C
Montant estimé des dépenses annuelles d'énergie pour un usage standard entre 480 euros et 720 euros indexées au 1er janvier 2023
Pour visiter et vous accompagner dans votre projet, contactez Corinne DEFRANCE, au 0678664329 ou, par courriel à c.defrance@proprietes-privees.com.

Selon l'article L.561.5 du Code Monétaire et Financier, pour l'organisation de la visite, la présentation d'une pièce d'identité vous sera demandée.
Cette présente annonce a été rédigée sous la responsabilité éditoriale de Corinne DEFRANCE agissant sous le statut d'agent commercial immatriculé au RSAC douai 822355244 auprès de SAS PROPRIETES PRIVEES, au capital de 44 920 euros, ZAC LE CHÊNE FERRÉ - 44 ALLÉE DES CINQ CONTINENTS 44120 VERTOU; SIRET 487 624 777 00040, RCS Nantes. Carte Professionnelle Transactions sur immeubles et fonds de commerce (T) et Gestion immobilière (G) n°CPI 4401 2016 000 010 388 délivrée par la CCI Nantes - Saint Nazaire. Compte séquestre n°30932508467 BPA SAINT-SEBASTIEN-SUR-LOIRE (44230). Garantie GALIAN-SMABTP - 89 rue de la Boétie, 75008 Paris - n°28137 J pour 2 000 000 euros pour T et 120 000 euros pour G. Assurance responsabilité civile professionnelle par GALIAN-SMABTP n° de police 28137.J

Mandat réf : 429 941 Le professionnel garantit et sécurise votre projet immobilier.
(5.33 % honoraires TTC à la charge de l'acquéreur.)
Copropriété de 6 lots - dont 6 lots habitation.

Charges annuelles : 200 euros.
Corinne DEFRANCE (EI) Agent Commercial - Numéro RSAC : douai 822355244 - .
Les informations sur les risques auxquels ce bien est exposé sont disponibles sur le site Géorisques : www. georisques. gouv. fr

Etat des risques et pollutions

Les informations sur les risques auxquels ce bien est exposé sont disponibles sur le site Géorisques : www.georisques.gouv.fr.

Caractéristiques du bien

Composition du bien

  • Type d'habitation : Appartement
  • Cuisine : Simple
  • Nombre de pièce(s) : 2
  • Nombre de chambre(s) : 1

Aménagement du bien

Extérieur

  • Terrasse : Non
  • Balcon : Non

Partie Commune

  • Ascenseur : Non
  • Surface habitable : 35 m²

Informations sur la copropriété

  • Bien soumis au statut de la copropriété
  • Nombre de lots : 6
  • Quote part charges courantes : 200 €/an
  • Procédure en cours : Non

Localisation du bien

LILLE (59000) , NORD (59) - HAUTS-DE-FRANCE

Ce bien n'est pas géolocalisé, pour connaitre sa géolocalisation, merci de contacter l'agence.

Consommation énergétique

  • C (118 kWh/m² an)
    C (21 kgCO2/m².an)
    Plus d'info
    118
    21
    21
  • DPE réalisé après le 1er juillet 2021.
  • Entre 530 € TTC / an et 760 € TTC / an
    Non communiqué

Nos professionnels vous accompagnent

Contactez notre agence !

44 Allée des Cinq Continents. ZAC Le Chêne Ferré 44120 VERTOU

Appeler l’agence Tél : 06 78 66 43 29

* Champs obligatoires

Nous vous informons de l’existence de la liste d’opposition au démarchage téléphonique « BLOCTEL » sur laquelle vous pouvez vous inscrire (https://www.bloctel.gouv.fr).

En complétant le formulaire «CONTACTEZ NOTRE AGENCE », je reconnais expressément que je consens au traitement de mes données personnelles et que je dispose du droit de retirer mon consentement à tout moment en m'adressant à support@fnaim.fr.
En savoir plus sur la gestion de vos données et droits : consulter nos mentions légales, « article 5/ Données à caractère personnel ».

En envoyant ce message, vous acceptez les conditions d'utilisation du site. Plus d'infos