Fnaim.fr
Menu

Visite virtuelle
Réf. VM1502-BIENALAMER

Achat Maison 2 pièces 53m² PERROS GUIREC 22700

285 000 Honoraires charge vendeur

1 chambre Parking / Garage

Description du bien

L'agence 'MON BIEN A LA MER', spécialiste de l'immobilier neuf sur les côtes Bretonnes, vous présente :

Concept Exclusif Village seniors :
20 à 30 maisons indépendantes, et un local commun avec conciergerie (animations, services...).
Maisons Bois visant DPE A, Pompe à chaleur, livrées tout équipées et finies.
Frais d'entretien et chauffage très réduits.
Frais de copropriété et de conciergerie : 150 à 170 euros par mois.

Superbe environnement :
PERROS GUIRREC, 300m Plage de Trestrignel et 500m Centre de Perros-Guirec.
Environnement résidentiel, calme, tout à pied.

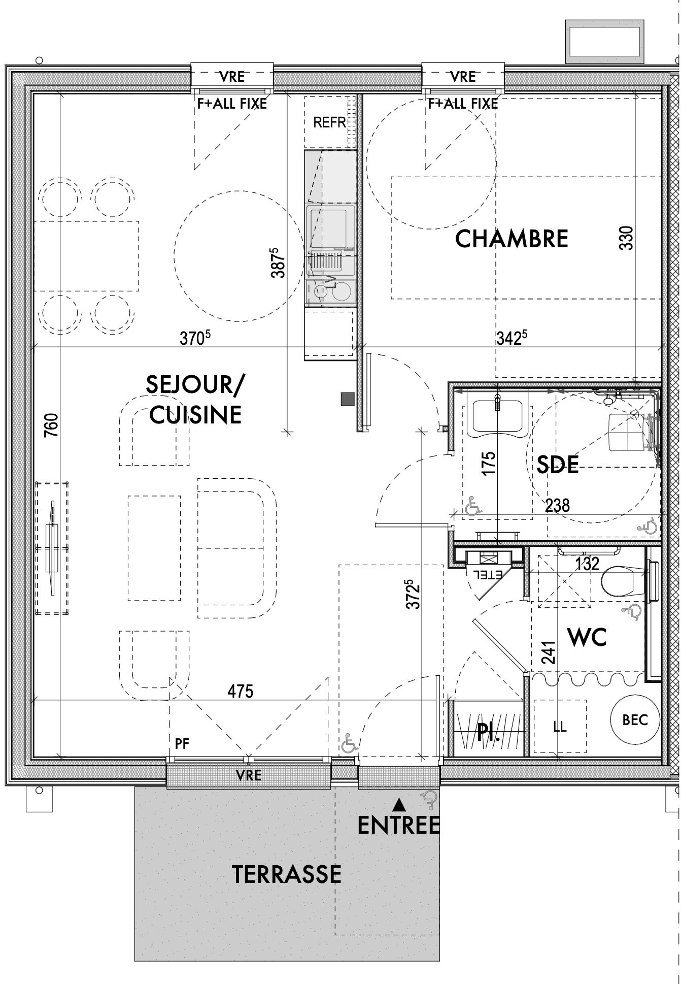
Cette Maison T2 est livrée équipée (sauf cuisine en option) : peintures, salle de bains, sols.
Elle comprend :
- Séjour traversant 33,35m2, terrasse 7m2, entrée avec placard
-Une chambre 11,8m2
- Salle d'eau douche à l'italienne meuble vasque sèche serviette, wc séparé, coin buanderie
Parking

Nous Consulter pour plus d'infos.

Honoraires à la charge du vendeur. Dans une copropriété de 25 lots. Aucune procédure n'est en cours. Non soumis au DPE. Les informations sur les risques auxquels ce bien est exposé sont disponibles sur le site Géorisques : georisques.gouv.fr.

Votre conseiller MON BIEN A LA MER : Gérant - .fr MON BIEN A LA MER
Carte T CPI 2201 2018 000 025 040
RCP ACM IARD B1 7025278

Etat des risques et pollutions

Les informations sur les risques auxquels ce bien est exposé sont disponibles sur le site Géorisques : www.georisques.gouv.fr.

Caractéristiques du bien

Composition du bien

  • Type d'habitation : Maison
  • Nombre de chambres : 1
  • Cuisine : Type de cuisine Non communique

Aménagement du bien

  • Cave : Non
  • Garage / Parking : Oui
    • Surface habitable : 53 m²
    • Parking : Oui

    Informations sur la copropriété

    • Bien soumis au statut de la copropriété
    • Nombre de lots : 25
    • Procédure en cours : Non

    Localisation du bien

    PERROS GUIREC (22700) , COTES-D'ARMOR (22) - BRETAGNE

    Ce bien n'est pas géolocalisé, pour connaitre sa géolocalisation, merci de contacter l'agence.

    Consommation énergétique

    DPE non soumis
    mention indiquée sous la responsabilité de l’agence immobilière

    Nos professionnels vous accompagnent

    Contactez notre agence !

    23 Rue des Villeneuves Le Bignon 22400 MORIEUX

    Appeler l’agence Tél : 0787285150

    * Champs obligatoires

    Nous vous informons de l’existence de la liste d’opposition au démarchage téléphonique « BLOCTEL » sur laquelle vous pouvez vous inscrire (https://www.bloctel.gouv.fr).

    En complétant le formulaire «CONTACTEZ NOTRE AGENCE », je reconnais expressément que je consens au traitement de mes données personnelles et que je dispose du droit de retirer mon consentement à tout moment en m'adressant à support@fnaim.fr.
    En savoir plus sur la gestion de vos données et droits : consulter nos mentions légales, « article 5/ Données à caractère personnel ».

    En envoyant ce message, vous acceptez les conditions d'utilisation du site. Plus d'infos