Fnaim.fr
Menu

Acheter

Réf. FR 3141-1-IMMOO

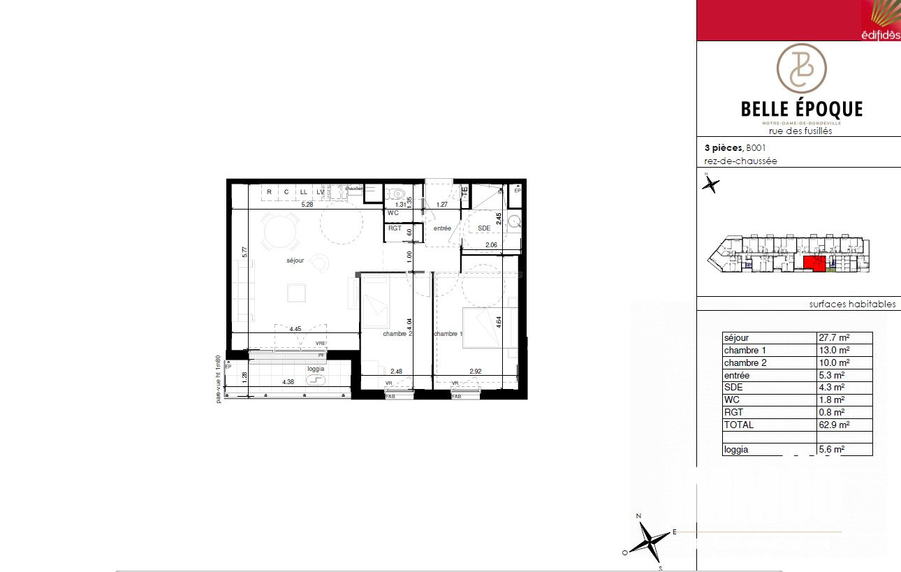
Achat Appartement 3 pièces 63m² NOTRE DAME DE BONDEVILLE 76960

181 900 Honoraires charge vendeur

2 chambres Balcon Ascenseur Parking / Garage

Description du bien

À VENDRE ? Appartement 3 pièces de 63 m² ? Notre-Dame-de-Bondeville
IMMÖÖ vous propose ce bel appartement neuf, idéalement situé dans une résidence sécurisée à Notre-Dame-de-Bondeville, une commune prisée pour sa proximité avec les transports, les commodités et à seulement 10 minutes du centre de Rouen.
Un cadre de vie agréable et un investissement judicieux.
Que ce soit pour une résidence principale ou un investissement locatif, cet appartement saura vous séduire par ses prestations de qualité et son emplacement stratégique.
Des espaces pensés pour votre confort
Une entrée avec rangement
Un séjour lumineux avec cuisine ouverte
2 chambres
Une salle d'eau et un WC indépendant
Un balcon de 5,60 m²
Une place de parking privative en sous-sol
Des équipements modernes et performants
Chauffage au gaz de ville
Menuiseries en PVC double vitrage
Volets roulants électriques en PVC
Fibre
Disponibilité : Livraison prévue en décembre 2025
Informations complémentaires :
Pas de procédure en cours
Syndicat en statut provisoire
Résidence de 97 lots
Contactez nous dès maintenant pour une visite ou plus d'informations !
Francisca ROUYER

Honoraires à la charge du vendeur. Dans une copropriété de 97 lots. Aucune procédure n'est en cours. Classe énergie C, Classe climat C Montant moyen estimé des dépenses annuelles d'énergie pour un usage standard, établi à partir des prix de l'énergie de l'année 2021 : entre 432.00 et 585.00 ?. Les informations sur les risques auxquels ce bien est exposé sont disponibles sur le site Géorisques : georisques.gouv.fr.

Votre conseiller IMMÖÖ : Francisca ROUYER
Agent commercial (Entreprise individuelle)
RSAC 88510303600012
RCP 176121201H001

Etat des risques et pollutions

Les informations sur les risques auxquels ce bien est exposé sont disponibles sur le site Géorisques : www.georisques.gouv.fr.

Caractéristiques du bien

Composition du bien

  • Type d'habitation : Appartement
  • Cuisine : 337
  • Nombre de pièce(s) : 3
  • Nombre de chambre(s) : 2
  • Salles de bain : 1

Aménagement du bien

Extérieur

  • Terrasse : Non
  • Balcon : Oui

Partie Commune

  • Ascenseur : Oui
  • Surface habitable : 63 m²
  • Parking : Oui

Informations sur la copropriété

  • Bien soumis au statut de la copropriété
  • Nombre de lots : 97
  • Procédure en cours : Non

Localisation du bien

NOTRE DAME DE BONDEVILLE (76960) , SEINE-MARITIME (76) - NORMANDIE

Ce bien n'est pas géolocalisé, pour connaitre sa géolocalisation, merci de contacter l'agence.

Consommation énergétique

  • C (65 kWh/m² an)
    C (13 kgCO2/m².an)
    Plus d'info
    65
    13
    13
  • DPE réalisé après le 1er juillet 2021.
  • Entre 432 € TTC / an et 585 € TTC / an
    01/01/2021

Nos professionnels vous accompagnent

Contactez notre agence !

55, route de Dieppe 76960 NOTRE DAME DE BONDEVILLE

Appeler l’agence Tél : 0611831489

* Champs obligatoires

Nous vous informons de l’existence de la liste d’opposition au démarchage téléphonique « BLOCTEL » sur laquelle vous pouvez vous inscrire (https://www.bloctel.gouv.fr).

En complétant le formulaire «CONTACTEZ NOTRE AGENCE », je reconnais expressément que je consens au traitement de mes données personnelles et que je dispose du droit de retirer mon consentement à tout moment en m'adressant à support@fnaim.fr.
En savoir plus sur la gestion de vos données et droits : consulter nos mentions légales, « article 5/ Données à caractère personnel ».

En envoyant ce message, vous acceptez les conditions d'utilisation du site. Plus d'infos