Fnaim.fr
Menu

Acheter

Exclusivité
Réf. 49_017198

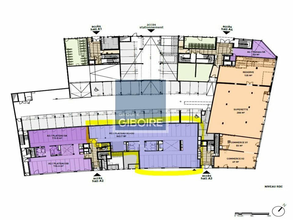
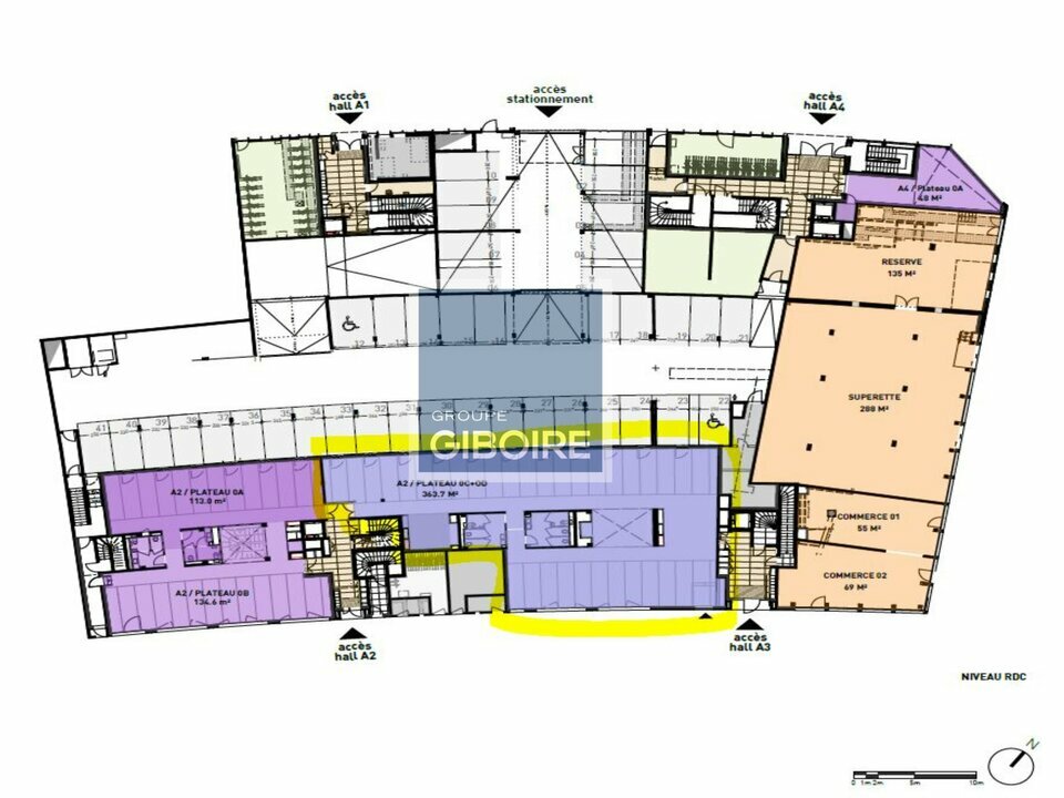
Achat Local Professionnel 364m² ANGERS 49000

916 524 Honoraires charge acquéreur inclus

Description du bien

À VENDRE / À LOUER - GIBOIRE ENTREPRISE ET COMMERCE - BUREAUX de 364 m² - ANGERS / Gare Saint-LaudSitués dans le nouveau quartier Cours Saint-Laud, à 5 min à pied de la gare, à 30 min de NANTES et à 1h30 de PARIS en TGV, et 10 min en voiture de la rocade. Desservi par les transports en commun : arrêt de bus au pied du bâtiment avec passage de 5 lignes, station de Tramway "La Fayette" et "Les Gares" à 10 minutes à pied. Relié au centre-ville par la passerelle piétonne sur la voie ferrée.L'ensemble immobilier KONCEPT est composé de logements, bureaux et commerces. Programme majeur de ce nouveau quartier aux usages mixtes, prolongeant le centre-ville vers le pôle gare.Plateau de bureaux de 364 m², divisibles et livrés aménagés en open-space (revêtement de sol, faux plafonds, luminaires, courant fort et sanitaires). Air rafraichi installé.6 Stationnement en sous-sol, et parkings publics à proximité.

Etat des risques et pollutions

Les informations sur les risques auxquels ce bien est exposé sont disponibles sur le site Géorisques : www.georisques.gouv.fr.

Caractéristiques du bien

Composition du bien

  • Surface totale : 364 m²
  • Surface utile : 364 m²

Consommation énergétique

Absence de DPE

Nos professionnels vous accompagnent

Contactez notre agence !

34 RUE DE STRASBOURG IMMEUBLE ARNOUS RIVIÈRE 44000 NANTES

Appeler l’agence Tél : 02.40.35.41.41

* Champs obligatoires

Nous vous informons de l’existence de la liste d’opposition au démarchage téléphonique « BLOCTEL » sur laquelle vous pouvez vous inscrire (https://www.bloctel.gouv.fr).

En complétant le formulaire «CONTACTEZ NOTRE AGENCE », je reconnais expressément que je consens au traitement de mes données personnelles et que je dispose du droit de retirer mon consentement à tout moment en m'adressant à support@fnaim.fr.
En savoir plus sur la gestion de vos données et droits : consulter nos mentions légales, « article 5/ Données à caractère personnel ».

En envoyant ce message, vous acceptez les conditions d'utilisation du site. Plus d'infos