Fnaim.fr
Menu

Réf. 3BK1-1NS-PXO

Achat Appartement 2 pièces 54m² LA ROCHELLE 17000

194 250 Honoraires charge acquéreur inclus : 5% TTC (184538 € hors honoraires)

1 chambre Ascenseur Parking / Garage

Description du bien

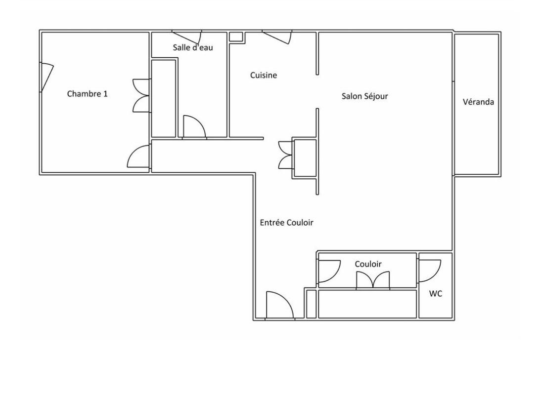
Situé dans la résidence du Bois Doré, quartier Saint-Maurice à La Rochelle, à deux pas des commerces de proximité et des transports.
Ce bel appartement de 54m2 au 1ere étage avec ascenseur se compose d'un salon de 20m2 orienté Nord-Est avec un accès direct à une véranda de 5m2 sans vis-à-vis, une cuisine aménagée, une chambre avec placard, une salle d'eau et des WC indépendants. L'appartement dispose également de nombreux rangements.
Une cave et un emplacement de parking complètent ce bien.
Vous trouverez également des services comme un accueil 7j/7j, mise en place d'ateliers et d'activités, possibilité d'accueillir des amis grâce aux chambres d'hôtes, etc...).
A visiter sans tarder.
Référence agence : 7799

Etat des risques et pollutions

Les informations sur les risques auxquels ce bien est exposé sont disponibles sur le site Géorisques : www.georisques.gouv.fr.

Caractéristiques du bien

Composition du bien

  • Type d'habitation : Appartement
  • Cuisine : Simple
  • Nombre de pièce(s) : 2
  • Nombre de chambre(s) : 1

Aménagement du bien

Extérieur

  • Terrasse : Non
  • Balcon : Non

Partie Commune

  • Ascenseur : Oui
  • Surface habitable : 54 m²
  • Parking : Oui

Localisation du bien

LA ROCHELLE (17000) , CHARENTE-MARITIME (17) - NOUVELLE-AQUITAINE

Ce bien n'est pas géolocalisé, pour connaitre sa géolocalisation, merci de contacter l'agence.

Consommation énergétique

  • D (240 kWh/m² an)
    B (7 kgCO2/m².an)
    Plus d'info
    240
    7
    7
  • DPE réalisé après le 1er juillet 2021.
  • Entre 810 € TTC / an et 1150 € TTC / an
    Non communiqué

Nos professionnels vous accompagnent

Contactez notre agence !

22 RUE DU MINAGE 17000 LA ROCHELLE

Appeler l’agence Tél : 05 46 41 25 25

* Champs obligatoires

Nous vous informons de l’existence de la liste d’opposition au démarchage téléphonique « BLOCTEL » sur laquelle vous pouvez vous inscrire (https://www.bloctel.gouv.fr).

En complétant le formulaire «CONTACTEZ NOTRE AGENCE », je reconnais expressément que je consens au traitement de mes données personnelles et que je dispose du droit de retirer mon consentement à tout moment en m'adressant à support@fnaim.fr.
En savoir plus sur la gestion de vos données et droits : consulter nos mentions légales, « article 5/ Données à caractère personnel ».

En envoyant ce message, vous acceptez les conditions d'utilisation du site. Plus d'infos