Fnaim.fr
Menu

Acheter

Exclusivité
Réf. VA4715-AGENCEDUCENTRE

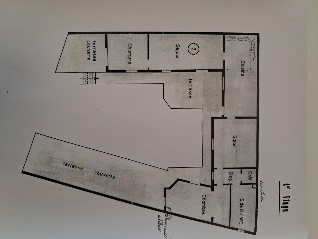
Achat Appartement 4 pièces 93m² CHAMPIGNY SUR MARNE 94500

370 000 Honoraires charge acquéreur inclus : 4,2% TTC (354984 € hors honoraires)

2 chambres

Description du bien

Créteil ? Quartier des Plans

Appartement de 93 m² avec 3 terrasses ? Calme ? Premier et dernier étage d'une maison divisée

Situé dans une rue calme du recherché quartier des Plans à Créteil, cet appartement unique de 93 m² offre un cadre de vie paisible et lumineux, au premier et dernier étage d'une maison divisée en deux lots seulement.

Seul sur le palier, cet appartement se distingue par son indépendance, son calme absolu et ses trois espaces terrasses qui entourent le bien, permettant de profiter de chaque moment de la journée selon l'exposition.

Les volumes généreux et la belle luminosité offrent un très beau potentiel d'aménagement. Le bien peut, selon les besoins, être divisé en deux espaces distincts, idéal pour un investissement locatif, un usage mixte ou une grande famille.

Un bien rare sur le secteur : lumineux, au calme, bien exposé, et situé dans une petite copropriété sans nuisances.

À visiter sans tarder.

Honoraires inclus de 4.23% TTC à la charge de l'acquéreur. Prix hors honoraires 355 000 ?. Dans une copropriété de 3 lots. Quote-part moyenne du budget prévisionnel 1 512 ?/an. Aucune procédure n'est en cours. Classe énergie E, Classe climat E Montant estimé des dépenses annuelles d'énergie pour un usage standard : entre 2610.00 ? et 3650.00 ? sur les années 2021, 2022 et 2023 (abonnements compris). Les informations sur les risques auxquels ce bien est exposé sont disponibles sur le site Géorisques : georisques.gouv.fr.

Etat des risques et pollutions

Les informations sur les risques auxquels ce bien est exposé sont disponibles sur le site Géorisques : www.georisques.gouv.fr.

Caractéristiques du bien

Composition du bien

  • Type d'habitation : Appartement
  • Cuisine : 19
  • Nombre de pièce(s) : 4
  • Nombre de chambre(s) : 2
  • Salles de bain : 1

Aménagement du bien

Extérieur

  • Terrasse : Non
  • Balcon : Non

Partie Commune

  • Ascenseur : Non
  • Surface habitable : 93 m²

Informations sur la copropriété

  • Bien soumis au statut de la copropriété
  • Nombre de lots : 3
  • Quote part charges courantes : 1512 €/an
  • Procédure en cours : Non

Localisation du bien

CHAMPIGNY SUR MARNE (94500) , VAL-DE-MARNE (94) - ILE-DE-FRANCE

Consommation énergétique

  • E (318 kWh/m² an)
    E (68 kgCO2/m².an)
    Plus d'info
    318
    68
    68
  • DPE réalisé après le 1er juillet 2021.
  • Entre 2610 € TTC / an et 3650 € TTC / an
    01/01/2021

Nos professionnels vous accompagnent

Contactez notre agence !

107 RUE DE FONTENAY 94300 VINCENNES

Appeler l’agence Tél : 0143248240

* Champs obligatoires

Nous vous informons de l’existence de la liste d’opposition au démarchage téléphonique « BLOCTEL » sur laquelle vous pouvez vous inscrire (https://www.bloctel.gouv.fr).

En complétant le formulaire «CONTACTEZ NOTRE AGENCE », je reconnais expressément que je consens au traitement de mes données personnelles et que je dispose du droit de retirer mon consentement à tout moment en m'adressant à support@fnaim.fr.
En savoir plus sur la gestion de vos données et droits : consulter nos mentions légales, « article 5/ Données à caractère personnel ».

En envoyant ce message, vous acceptez les conditions d'utilisation du site. Plus d'infos