Fnaim.fr
Menu

Acheter

Achat Appartement 1 pièce 34m² BRUGES 33520

161 500 Honoraires charge vendeur

Balcon Parking / Garage

Description du bien

Investissement Clé en Main en Résidence Sénior à Bruges (33)
Saisissez une opportunité d'investissement immobilier à la fois sécurisée et rentable, sans les contraintes de gestion. Ce studio récent de 2020 est l'investissement serein que vous cherchiez.

Un investissement sans souci
Situé au 1er étage d'une résidence sénior prisée à Bruges, ce studio est un bien 'clé en main'. Un locataire est déjà en place et la gestion est déléguée, vous assurant un revenu locatif immédiat et régulier dès le premier jour.

Un cadre de vie idéal
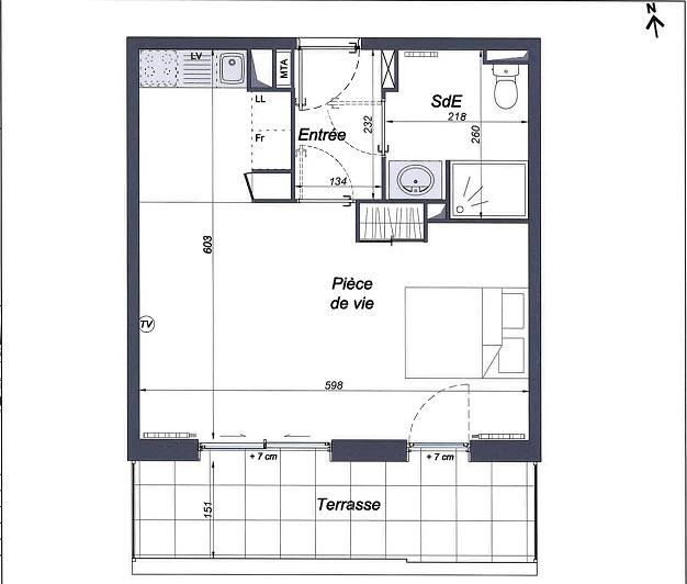
Ce charmant T1 de 34 m2 se trouve au coeur du quartier du Tasta. Il bénéficie d'une situation géographique parfaite, à proximité immédiate du Tram C et des bords du Lac de Bordeaux. L'appartement est conçu pour le confort de ses occupants, avec une pièce à vivre de 21 m2, une cuisine ouverte, une salle d'eau avec douche à l'italienne et un balcon de 9,15 m2.

La résidence est un véritable atout : bien entretenue, elle propose des services de qualité, comme une magnifique piscine, ce qui renforce l'attrait et la pérennité de votre investissement.

Ne manquez pas cette opportunité

C'est une occasion unique d'acquérir un bien immobilier avec des revenus sécurisés et une gestion déléguée.
Contactez-nous pour en savoir plus sur cet investissement

Etat des risques et pollutions

Les informations sur les risques auxquels ce bien est exposé sont disponibles sur le site Géorisques : www.georisques.gouv.fr.

Caractéristiques du bien

Composition du bien

  • Type d'habitation : Appartement
  • Cuisine : 20
  • Nombre de pièce(s) : 1

Aménagement du bien

Extérieur

  • Terrasse : Non
  • Balcon : Oui

Partie Commune

  • Ascenseur : Non
  • Surface habitable : 34 m²
  • Parking : Oui

Localisation du bien

BRUGES (33520) , GIRONDE (33) - NOUVELLE-AQUITAINE

Ce bien n'est pas géolocalisé, pour connaitre sa géolocalisation, merci de contacter l'agence.

Consommation énergétique

  • B (106 kWh/m² an)
    C (20 kgCO2/m².an)
    Plus d'info
    106
    20
    20
  • DPE réalisé après le 1er juillet 2021.
  • Entre 300 € TTC / an et 470 € TTC / an
    01/01/2023

Nos professionnels vous accompagnent

Contactez notre agence !

MGG

4 RUE JEAN POMMIES cs 40256 33520 BRUGES

Appeler l’agence Tél : 0649107079

* Champs obligatoires

Nous vous informons de l’existence de la liste d’opposition au démarchage téléphonique « BLOCTEL » sur laquelle vous pouvez vous inscrire (https://www.bloctel.gouv.fr).

En complétant le formulaire «CONTACTEZ NOTRE AGENCE », je reconnais expressément que je consens au traitement de mes données personnelles et que je dispose du droit de retirer mon consentement à tout moment en m'adressant à support@fnaim.fr.
En savoir plus sur la gestion de vos données et droits : consulter nos mentions légales, « article 5/ Données à caractère personnel ».

En envoyant ce message, vous acceptez les conditions d'utilisation du site. Plus d'infos